In recent years, the concept of converting old barns into stylish living spaces has captured the imagination of homeowners across the country. These unique structures offer an affordable alternative to traditional housing while providing an open, spacious feel that many find appealing. When it comes to designing a 2000 square foot barndominium with three bedrooms, the possibilities are endless. Whether you're planning to build from scratch or renovate an existing structure, understanding how to maximize space and functionality is key to creating your dream home.
The appeal of barndominiums has grown tremendously over the past decade. These homes combine the rustic charm of barn architecture with modern comfort and amenities. With 2000 square feet, you have plenty of room to work with when designing a three-bedroom layout that suits your lifestyle. This guide will walk you through various floor plan options, design considerations, and practical tips to help you visualize and plan your perfect 2000 sq ft barndominium.
Understanding Barndominium Basics
Before diving into floor plans, it's important to understand what makes a barndominium special. These homes typically feature high ceilings, open floor concepts, and often incorporate industrial elements like exposed steel beams and concrete floors. The 2000 square foot size provides enough space for a comfortable living arrangement while remaining manageable to heat and maintain. When designing for three bedrooms, you'll want to consider how to balance private sleeping areas with communal spaces. Many successful designs incorporate a central living area that flows seamlessly into dining and kitchen spaces, while bedrooms are positioned to provide privacy and quiet. Some builders choose to place bedrooms along one side of the structure, allowing the main living areas to span the entire width. Others prefer a more centralized approach where bedrooms are nestled between living spaces, creating natural sound barriers.
Key Layout Considerations

When planning a 2000 sq ft barndominium with three bedrooms, several factors deserve attention:
Consider whether you want the master bedroom suite to be separate from the other two bedrooms. This can create a more peaceful environment for family members. You might also think about including a study or office space within the three-bedroom configuration. Some people prefer a flex space that could serve as a guest room, playroom, or home office depending on their needs.
Popular 3 Bedroom Floor Plan Configurations
There are several proven layouts that work well for 2000 sq ft barndominiums with three bedrooms:
Option 1: Front-to-Back Layout This classic arrangement places the main living areas at the front of the home, with bedrooms toward the back. It creates a natural flow from the entrance to the heart of the house. The master bedroom is usually positioned furthest from the entry, providing maximum privacy.

Option 2: Side-by-Side Bedrooms In this setup, two bedrooms are placed side-by-side, with the third bedroom located elsewhere. This works particularly well when one bedroom is designated as a master suite with an en-suite bathroom. The remaining bedrooms can be used for children or guests.
Option 3: Centralized Design Here, bedrooms are arranged around a central common area. This layout allows for better interaction among family members and can be ideal for active households. The kitchen and dining area often form the heart of this design, with bedrooms surrounding them.
Master Bedroom Suite Design
The master bedroom suite deserves special attention in any 2000 sq ft barndominium. Many people prefer a separate wing or area dedicated to the primary sleeping space. Features to consider include:
The master suite should ideally be positioned away from the other bedrooms to ensure quiet and restful sleep. This separation helps prevent disturbances from family activities or noise from other household members. Consider incorporating large windows that let in natural light and offer views of the surrounding landscape.

Kitchen and Living Spaces Integration
One of the most appealing aspects of barndominiums is the ability to create open, flowing spaces. In a 2000 sq ft design, you'll want to thoughtfully connect your kitchen with living areas. Here are some effective approaches:
The kitchen should be designed to accommodate both daily meals and entertaining guests. Consider having a breakfast nook adjacent to the kitchen, or perhaps a formal dining area that opens into the main living space. This flexibility allows you to adapt the space based on your lifestyle and social needs.
Practical Tips for 2000 Sq Ft Planning
Planning a 2000 sq ft barndominium with three bedrooms requires careful consideration of several practical aspects:

Many people find that the 2000 sq ft size strikes a perfect balance between spaciousness and manageability. It's large enough to include all necessary rooms and amenities, yet not so expansive that it becomes difficult to heat or cool efficiently. This size also tends to fit well within most building codes and zoning requirements, making it an attractive option for many buyers.
Budget Considerations and Cost Factors
While barndominiums can be more affordable than traditional homes, costs can vary significantly based on several factors:
A basic 2000 sq ft barndominium with three bedrooms might cost between $150 and $250 per square foot, depending on location and finishes. However, luxury features such as high-end appliances, premium flooring, or extensive custom cabinetry can push costs upward. Remember that buying an existing barn and converting it often costs less than new construction, though renovation expenses must be factored in.
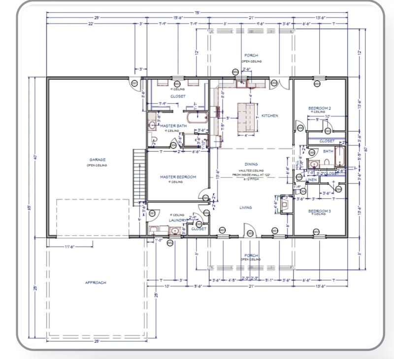
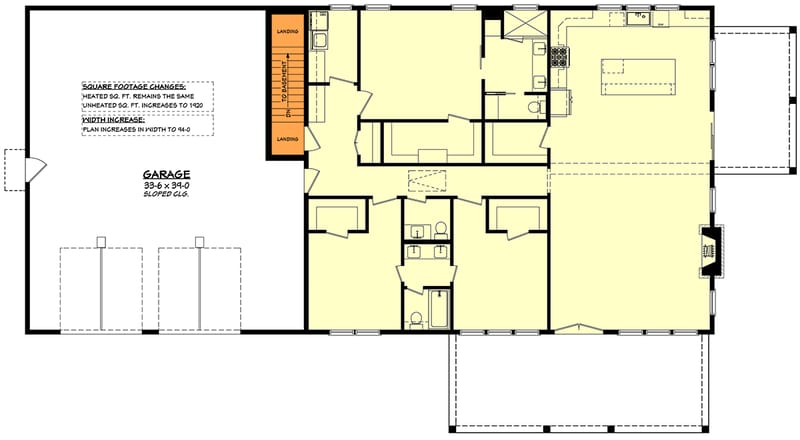
Design Inspiration and Real Examples

Looking at actual examples can help clarify what's possible with 2000 sq ft barndominiums. Several companies specialize in these designs, offering downloadable floor plans and customization options. Some popular styles include:
Real-world examples show that creativity isn't limited by the 2000 sq ft constraint. Many homeowners have successfully created beautiful, functional spaces that meet their specific needs. Some have incorporated outdoor living areas, workshops, or even guest quarters within their barndominiums.
Final Thoughts on Your 2000 Sq Ft Journey
Creating a 2000 square foot barndominium with three bedrooms is an exciting project that combines practicality with personal style. The key lies in thoughtful planning and considering how you want to live in your space. Whether you're drawn to the open concept of modern barndominiums or prefer the more structured layouts, there are countless ways to make your home reflect your personality and lifestyle. Remember to factor in not just current needs but also future changes in your life situation. A well-planned 2000 sq ft barndominium can be a wonderful investment that brings joy for decades to come.
The journey to designing your ideal 2000 square foot barndominium with three bedrooms is filled with exciting possibilities and practical considerations. From understanding basic layout principles to budgeting for your project, every step matters in creating a home that truly works for you. The beauty of barndominiums lies in their flexibility – they can be adapted to suit any lifestyle while maintaining that distinctive charm that makes them so appealing. Whether you're building from scratch or renovating an existing structure, taking time to carefully plan your floor layout will pay dividends in comfort and functionality for years to come. The 2000 sq ft size offers the perfect middle ground between spaciousness and manageability, making it an excellent choice for families, couples, or anyone seeking a unique living experience.