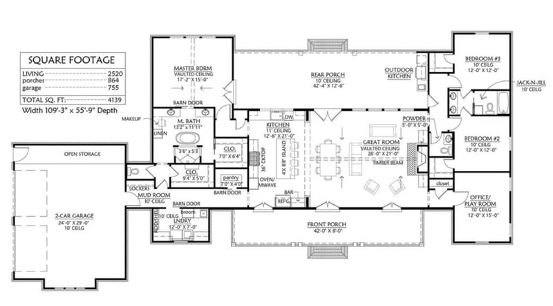
There's something deeply satisfying about stepping into a home where walls seem to disappear and the boundaries between rooms fade away. Open floor plan ranch house plans have captured the hearts of countless homeowners because they offer more than just visual appeal—they create spaces designed for connection, conversation, and community.
In the world of residential architecture, few designs have achieved the enduring popularity of the ranch house style. These homes, with their low-profile profiles and horizontal lines, have been a favorite for generations. But when combined with an open floor plan concept, they become even more appealing. The marriage of these two elements creates living spaces that feel both spacious and intimate—a rare combination that speaks to our fundamental need for both privacy and togetherness. Whether you're considering a new build or looking to renovate your existing space, understanding how open floor plans work within ranch house layouts can transform your entire approach to home design.

What Makes a Ranch House Special
Ranch houses emerged in the mid-20th century as a response to changing lifestyles and architectural preferences. These homes typically feature a single story with long, low profiles that blend seamlessly with their surroundings. The hallmark of a good ranch house isn't just its appearance—it's the way it invites people inside and keeps them engaged with one another. The typical ranch layout often includes a central living area that flows naturally into dining and kitchen spaces. This configuration makes it ideal for families who want to maintain visibility and communication while cooking, eating, or relaxing together. Many ranch houses also incorporate large windows that bring in natural light and create a sense of openness that extends beyond the physical boundaries of the home.

The Magic of Open Floor Planning
Open floor plans aren't just a trend—they represent a fundamental shift in how we think about domestic spaces. Rather than having separate rooms that feel isolated from each other, open layouts create fluid pathways for movement and interaction. In ranch house designs, this approach works exceptionally well because the naturally wide, horizontal nature of the style complements the idea of seamless flow. You might find that the kitchen island becomes a gathering point, or that the living room extends directly into the dining area without any barriers. This kind of design allows for multiple activities to happen simultaneously while maintaining the ability to focus on individual tasks. The result is a home that feels both functional and inviting.

Key Features of Successful Open Ranch Plans
When designing an open floor plan ranch house, several elements stand out as particularly important:

These features help maintain the feeling of unity while still allowing for distinct areas within the larger space. The goal isn't to eliminate all boundaries, but rather to create a sense of openness that encourages interaction and activity.
Practical Benefits Beyond Aesthetics

While the visual appeal of open ranch house plans is undeniable, there are many practical advantages worth considering. For starters, these layouts tend to make homes feel larger than they actually are. This is especially helpful in smaller lots where maximizing every square foot matters. Additionally, open designs often improve natural light distribution throughout the home, reducing the need for artificial illumination during daytime hours. From a family perspective, open floor plans make it easier for parents to keep an eye on children while preparing meals or doing other household tasks. They also facilitate better conversation and social interaction among guests and family members. For those who enjoy entertaining, the open concept provides a natural stage for gatherings, whether small or large.
Common Challenges and Solutions
Of course, open floor plans aren't without their challenges. Noise control can be a concern, especially if you have young children or work from home. Sound tends to travel more freely in open spaces, which means that conversations, music, or even footsteps can echo across the entire area. Another issue relates to temperature regulation—the larger open spaces can sometimes make heating and cooling less efficient. To address these concerns, consider using area rugs, soft furnishings, and strategic acoustic treatments to manage sound levels. For climate control, look into zoning systems or smart thermostats that can maintain comfortable temperatures in different sections of your home. Storage solutions also become more critical in open layouts, as you'll want to keep things organized without cluttering the main living areas.
Design Tips for Maximizing Your Space
Here are some essential strategies for getting the most out of your open ranch house plan:
Remember that the key to successful open floor planning lies in balance. You want to maintain the feeling of openness while creating enough definition to make the space feel comfortable and functional. Think about how you actually live in your home, then design around those needs.
Open floor plan ranch house designs represent more than just a passing architectural fad—they embody a philosophy of living that values connection, flexibility, and comfort. Whether you're building a new home or renovating an existing one, understanding how to effectively combine these two design approaches can lead to a living space that truly serves your lifestyle. The beauty of this combination lies in its adaptability. It can accommodate everything from quiet morning coffee to lively dinner parties, from focused work sessions to spontaneous playtime with kids. As housing trends continue to evolve, the timeless appeal of ranch houses with open floor plans remains strong because they speak to something fundamental about how we want to live and interact with one another. The right design can transform a simple house into a place where memories are made and relationships flourish.