When you're thinking about creating a new home, there's something special about the sweet spot of 1500 square feet. It's big enough to feel spacious and comfortable, yet small enough to manage and maintain. This size offers a perfect balance between functionality and efficiency, making it ideal for families, couples, or even solo homeowners looking for a manageable living space.
Picture this: You've just finished your first home purchase, and you're standing in your new space, looking around with a mixture of excitement and wonder. The walls seem to stretch out before you, promising endless possibilities. But wait—this isn't just about square footage. It's about how that space works for you. A 1500 square feet house plan represents the sweet spot in residential design. It's large enough to accommodate modern living standards and lifestyle needs, but not so vast that it becomes difficult to heat, cool, and maintain. Think of it like finding the perfect pair of jeans—too small and you're cramped, too big and you're dragging. 1500 square feet strikes that perfect balance.
Understanding the Basics of 1500 Square Feet
Before diving into design specifics, let's break down what 1500 square feet actually means. In simple terms, it's roughly the size of a three-bedroom home with a kitchen, living area, and bathroom. But it's more than just numbers. When you're working with this space, you're essentially working with a canvas that needs careful consideration.
A typical 1500 square feet home might include:
This measurement doesn't account for the height of the ceilings or the layout, which can dramatically affect how spacious the home feels. For example, a home with 8-foot ceilings will feel much more open than one with 6-foot ceilings. Understanding these fundamentals helps you appreciate why 1500 square feet is such a popular choice among homebuyers.

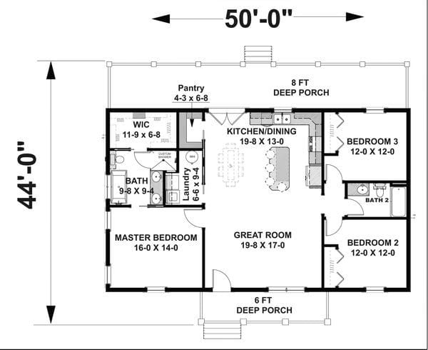
Popular Layouts for 1500 Square Feet Homes
There are several standard layouts that work well within this square footage. Each has its own advantages depending on your lifestyle and preferences.
Open Concept Floor Plan: This style combines the kitchen, dining, and living spaces into one large area. It's great for entertaining and makes the space feel larger. An open concept layout typically features:
Traditional Layout: With defined rooms separated by walls, this approach offers privacy and distinct zones. It's perfect for families with children or those who prefer structured spaces. Key elements include:
Split-Level Design: This layout divides the home into levels, often with bedrooms on one level and living spaces on another. It's particularly effective for homes with sloped lots and offers:
Each layout type brings different benefits. Consider your daily routine, family size, and future plans when choosing the right fit for you.

Key Features That Maximize Space Efficiency
When you're working with 1500 square feet, every inch matters. Smart design choices can make your home feel much larger than its actual measurements suggest.
Multi-functional Rooms: One of the biggest challenges in smaller homes is having enough space for everything you need. Consider rooms that serve multiple purposes. For instance:
Smart Storage Solutions: Storage is crucial in compact homes. Creative storage options can transform cluttered spaces into organized havens:
Light and Air: Natural light and good airflow can instantly make a space feel bigger. Consider:
These strategies aren't just about aesthetics—they're about making your home work better for you.

The Bedroom and Bathroom Considerations
Bedrooms and bathrooms are essential components of any home, especially in a 1500 square feet layout. These spaces require thoughtful planning to ensure they meet your needs while fitting within the overall square footage.
Bedroom Planning: In a 1500 square feet home, you typically have room for two to three bedrooms. Here's how to maximize these spaces:
Bathroom Design: Bathrooms in smaller homes need to be both functional and efficient. With 1500 square feet, you might have one or two bathrooms. Effective strategies include:
Special Considerations: If you're planning for future changes, consider:
Kitchen and Living Areas Optimization

The kitchen and living areas are usually the heart of any home, and in a 1500 square feet space, they deserve special attention. These areas need to be both functional and inviting.
Kitchen Design Tips: A well-designed kitchen can make or break your home experience. With 1500 square feet, consider these approaches:
Living Area Planning: Your living space should encourage relaxation and social interaction. Effective strategies include:
Integration Benefits: When you combine these areas thoughtfully, you create a seamless flow that enhances your home's usability. A kitchen island that doubles as a breakfast bar, or a living area that flows into a dining space, can dramatically improve your daily experience.
Practical Tips for Building or Buying Your 1500 Square Feet Home
Whether you're building from scratch or purchasing an existing home, there are practical considerations that can save you time, money, and stress.

Planning Phase: Start by defining your priorities. What matters most to you? Is it:
Budget Considerations: 1500 square feet homes typically cost less than larger properties, but costs vary significantly based on location and features. Typical budget ranges include:
Professional Help: Consider hiring professionals early in the process:
Future-Proofing: Think beyond today's needs. Consider:
Remember, a 1500 square feet home is not just about the numbers—it's about creating a space that truly supports your life.
A 1500 square feet house plan isn't just about fitting into a box—it's about creating a home that feels right for your lifestyle. Whether you're planning a new build, renovating an existing space, or simply dreaming about your next home, remember that this square footage offers incredible flexibility. The key lies in thoughtful planning, smart design choices, and understanding what matters most to you. You don't need a mansion to have a comfortable, beautiful, and functional home. Sometimes, the best homes are the ones that perfectly match your needs, your space, and your way of life. So take your time, explore your options, and create a space that feels like home—not just a house. The magic happens when you align your vision with your square footage. Your dream 1500 square feet home awaits.