There's something deeply satisfying about a well-designed L-shaped ranch house plan. It's not just about the layout – it's about how the design speaks to our fundamental needs for space, comfort, and connection. These homes offer a unique balance between traditional ranch aesthetics and modern living requirements.

When you think about classic American home designs, the ranch style often comes to mind. But what happens when you add an L-shape element to that familiar layout? You get something truly special – an L-shaped ranch house plan that combines the best of both worlds. This isn't just another architectural trend; it's a thoughtful approach to creating homes that feel both comfortable and contemporary. Whether you're planning a new build or considering a renovation, understanding these plans can transform how you think about your living space.

What Makes an L-Shaped Ranch Different

Unlocking the Potential of L-Shaped Ranch Living 1

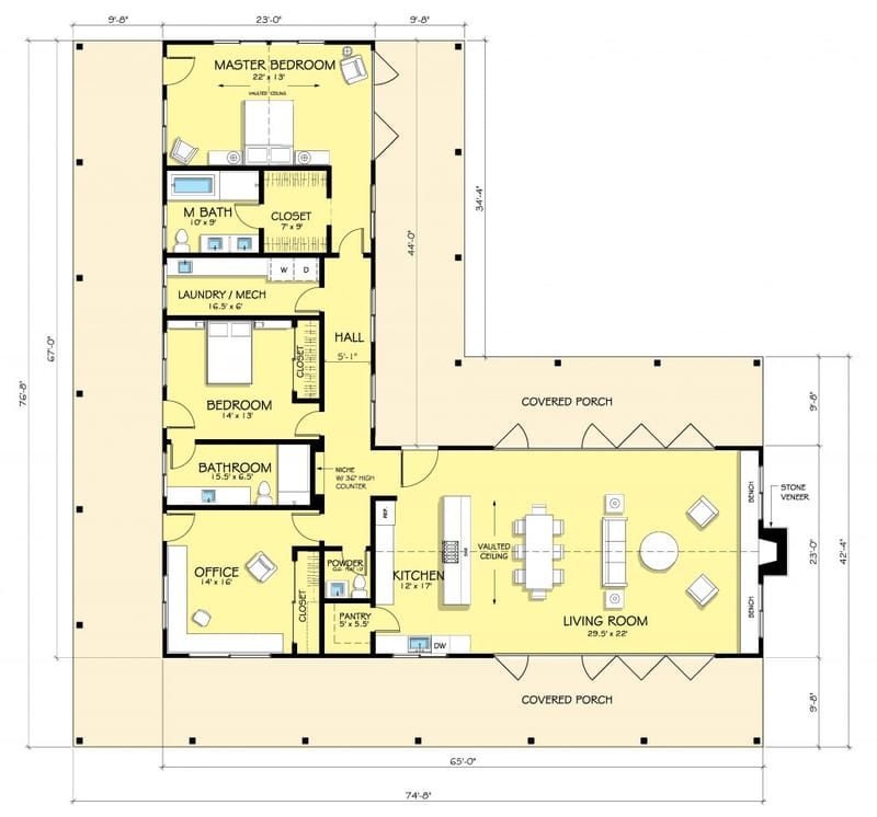
An L-shaped ranch house plan takes the traditional single-story ranch design and introduces a distinctive angular element. Instead of a straight line, the structure forms an L-shape, creating unique spaces and visual interest. This design choice isn't merely aesthetic – it offers practical advantages that many homeowners find appealing.

The L-shape creates natural divisions within the home. Think about it: one wing might house the bedrooms while the other contains the living areas, kitchen, and dining space. This separation allows for quiet zones while maintaining open flow. It's like having two distinct yet connected personalities within one building.

Consider a typical ranch layout – everything flows in one direction. An L-shaped version gives you that same spacious feeling but with more character. The corner where the two wings meet becomes a focal point, whether it's a cozy entryway or a charming breakfast nook. This makes the space feel more intimate and less generic than standard ranch designs.

Unlocking the Potential of L-Shaped Ranch Living 2

Key Features and Layout Options

L-shaped ranch house plans come in various configurations, each offering different benefits:

  • Front wing with bedrooms: The main living areas typically sit at the back, while sleeping quarters extend forward. This arrangement works well for families wanting privacy in their bedroom areas.
  • Back wing with main rooms: Here, the kitchen, dining, and living spaces are at the rear, with bedrooms extending toward the front. This setup can provide better views and natural light access.
  • Balanced L-shape: Both wings are roughly equal in length, creating a symmetrical appearance that many find visually pleasing.
  • Extended L-shape: One wing extends significantly longer than the other, offering additional space for guest rooms, office areas, or recreational spaces.
  • The beauty of these plans lies in their flexibility. They can accommodate everything from small family homes to larger multi-generational dwellings. The L-shape naturally creates different zones without requiring walls or barriers, making it ideal for open-concept living while still allowing for privacy.

    Unlocking the Potential of L-Shaped Ranch Living 3

    Benefits of This Unique Design

    There are several compelling reasons why L-shaped ranch plans have gained popularity among homeowners and builders alike:

  • Enhanced natural light: The L-shape often allows for windows on multiple sides, maximizing sunlight throughout the day. This means brighter, more cheerful interiors that feel less confined.
  • Improved flow and functionality: Unlike straight ranch designs, the L-shape provides logical pathways through the home. You can walk from the kitchen to the living room without crossing through bedrooms, creating more efficient daily routines.
  • Better outdoor integration: Many L-shaped ranch plans include covered porches or decks that align with the angular design, making it easier to connect indoor and outdoor living spaces.
  • Increased storage potential: The angled walls and corners provide unique opportunities for built-in storage solutions that maximize every inch of available space.
  • Energy efficiency: With better window placement and natural airflow options, these homes often require less artificial lighting and heating/cooling, leading to lower utility bills.
  • Practical Considerations for Building

    Unlocking the Potential of L-Shaped Ranch Living 4

    Building an L-shaped ranch house requires some additional planning compared to standard designs, but the results are worth the effort:

  • Foundation considerations: The L-shape may require more complex foundation work, especially if there are significant changes in elevation between the two wings. This is particularly important if you're building on sloped terrain.
  • Utility placement: Electrical and plumbing lines must account for the L-shape's geometry. This means working closely with contractors to ensure proper routing without compromising structural integrity.
  • Roof design complexity: The roof must be designed to handle the angular transition between the wings. This could involve more complex trusses or specialized roofing materials.
  • Cost implications: While the overall cost might be slightly higher due to the increased complexity, the added value and functionality often justify the investment. Many homeowners report that their L-shaped ranch pays for itself through increased resale value and improved lifestyle benefits.
  • Permitting challenges: Local building codes may have specific requirements for L-shaped structures. Be prepared to provide detailed plans and possibly undergo additional review processes.
  • Design Flexibility and Customization

    One of the most exciting aspects of L-shaped ranch plans is their adaptability to individual preferences and lifestyles:

  • Interior customization: The layout allows for creative interior design choices. You might choose to open up the space between the wings for a grander feeling, or keep them separate for distinct character.
  • Exterior styling: The L-shape creates opportunities for interesting exterior features like wraparound porches, unique garage designs, or decorative elements that highlight the angular nature of the home.
  • Multi-generational living: The design easily accommodates extended family living arrangements. One wing can serve as independent living quarters for parents or grandparents, while the main area houses younger family members.
  • Outdoor living spaces: The L-shape naturally lends itself to outdoor entertaining areas. A covered patio can span across the corner where the wings meet, creating a seamless transition between indoor and outdoor living.
  • Future expansion possibilities: If your family grows or your needs change, the L-shape provides natural expansion points. Additional wings can be added to extend the existing design seamlessly.
  • Unlocking the Potential of L-Shaped Ranch Living 5

    Popular Variations and Modern Interpretations

    Contemporary architects and designers continue to evolve L-shaped ranch concepts, bringing fresh perspectives to this classic design:

  • Modern L-ranch hybrids: These incorporate clean lines, large glass panels, and minimalist design elements while maintaining the essential L-shape. They often feature flat roofs, exposed beams, and open floor plans.
  • Sustainable L-ranch designs: Many modern versions focus on eco-friendly construction methods, solar panel integration, and energy-efficient systems. These homes often include rainwater collection, green roofs, and sustainable materials.
  • Luxury L-ranch editions: High-end versions feature premium finishes, smart home technology, master suites with private balconies, and gourmet kitchens. These homes often include wine cellars, home theaters, and spa-like bathrooms.
  • Compact L-ranch solutions: For smaller lots or budget-conscious buyers, scaled-down versions maintain the essential L-shape while optimizing space usage. These often include multi-functional rooms and clever storage solutions.
  • Regional adaptations: Different climates and locations influence how L-shaped ranches are designed. Coastal versions might include weather-resistant materials and hurricane-resistant features, while mountain versions could incorporate stone exteriors and heated floors.
  • Choosing the Right Plan for Your Needs

    Selecting the perfect L-shaped ranch house plan involves careful consideration of several factors:

  • Family size and lifestyle: Consider how many people will live in the home and what their daily routines look like. Do you need separate spaces for children and adults? Will you entertain frequently?
  • Lot characteristics: The shape and size of your property affect which L-shape configuration will work best. Sloped lots might benefit from a design that follows the terrain.
  • Budget constraints: While L-shaped ranches can be more expensive to build, they often offer better long-term value. Factor in both construction costs and potential resale value.
  • Local climate conditions: Your region's weather impacts everything from foundation requirements to window placement. Consider snow loads, wind exposure, and temperature variations.
  • Future plans: Think about whether you might want to expand or modify the home later. Some L-shape configurations allow for easier future additions.
  • Professional consultation: Working with experienced architects or builders who specialize in L-shaped designs ensures you get the most out of your investment. They can help navigate complexities and suggest improvements based on local conditions.
  • Real-World Examples and Inspiration

    Looking at actual L-shaped ranch homes helps illustrate how these designs work in practice:

  • The classic suburban example: A family home where the main living area faces the street while bedrooms extend toward the backyard. This setup provides privacy for sleeping areas while keeping social spaces visible and accessible.
  • The waterfront version: A coastal L-ranch where one wing overlooks water while the other faces the land. The corner area often becomes a beautiful outdoor living space with panoramic views.
  • The urban adaptation: In city settings, these homes might feature smaller footprints but maximize vertical space. The L-shape can create interesting rooftop terraces or basement levels that extend the usable space.
  • The renovation case study: A homeowner who converted their existing single-story ranch into an L-shape by adding a new wing. The result was a home that felt completely transformed while maintaining its original charm.
  • These examples show how adaptable and practical L-shaped ranch designs can be across different contexts and needs.

    The L-shaped ranch house plan represents more than just a design choice – it's a thoughtful approach to creating homes that work for real people in real situations. Whether you're drawn to the classic appeal of traditional ranch homes or looking for something more innovative, the L-shape offers a compelling middle ground. It brings together the comfort and familiarity of ranch design with the functionality and visual interest that modern living demands. The key is finding the right balance between form and function, ensuring that every corner of your L-shaped home serves a purpose while providing the warmth and character that make a house feel like a true home. As you consider your next home project, remember that the L-shape isn't just about looks – it's about creating spaces where life happens naturally and beautifully.