Picture this: you wake up, grab your coffee, and head straight to your kitchen without having to climb stairs. Your three bedrooms are within easy reach, each with its own character and purpose. That's the magic of a well-designed 1 story 3 bedroom house plan. These homes offer practicality, accessibility, and comfort all rolled into one.
When it comes to home planning, few designs capture the balance between simplicity and functionality quite like a 1 story 3 bedroom house plan. These layouts have become increasingly popular because they offer something special – easy living without sacrificing space or style. Whether you're planning a new build or renovating your current home, understanding what makes these floor plans work so well can save you time, money, and stress. Let's dive into why these designs are so appealing and how you can make them work for your family.
Why Choose a 1 Story Home?
There are several compelling reasons why 1 story homes have gained such popularity. First, they're incredibly practical for families with young children or elderly members. No more climbing stairs to get to the bathroom or bedroom during the night. The ground floor becomes a seamless flow of living spaces. Consider a family with kids who need to get up early for school, or grandparents who might find stairs challenging. A single-level design removes those obstacles entirely.
Additionally, 1 story homes often feel more spacious than their multi-story counterparts. With ceilings that don't require additional support structures, the open concept design allows for larger rooms and better light flow. You can have a kitchen that opens directly to the living room, creating a social hub for your family. It's not just about convenience – it's about creating a lifestyle that works for everyone in your household.
Key Layout Considerations

Creating a successful 1 story 3 bedroom house plan requires careful attention to several key factors:
The beauty of these plans lies in their flexibility. You can arrange the bedrooms in various configurations – side-by-side, with the master bedroom separated from the others, or even with a study or office tucked away. The key is thinking ahead about how you want to live in your space.
Popular Floor Plan Configurations
While there's no one-size-fits-all approach, certain configurations tend to work particularly well in 1 story 3 bedroom house plans:
The Traditional Layout This classic arrangement places the master bedroom at one end of the house, with two smaller bedrooms on the opposite side. The living area and kitchen are typically centralized. It offers good separation of private and public spaces.
The Open Concept Design Here, the kitchen, dining, and living areas blend together into one large space. Bedrooms are positioned along the sides, creating a sense of openness and flow. This works especially well in homes with high ceilings or large windows.

The Split Bedroom Plan In this design, the master bedroom is separated from the other bedrooms, usually by a hallway or shared bathroom. This provides extra privacy for the primary bedroom and reduces noise transfer between sleeping areas.
Each configuration has its own charm and benefits. The traditional layout feels familiar and comfortable, while the open concept brings energy and connection to the home. The split bedroom design offers peace and quiet for those who need it most.
Practical Space Optimization Tips
Maximizing every square foot in a 1 story 3 bedroom house requires some smart thinking:
Remember, the goal isn't to cram everything in, but to make the most of the available space in a way that supports your daily routine. Think about how you actually use your home and design accordingly.
Cost Considerations and Budget Planning

Building or remodeling a 1 story 3 bedroom house can vary widely in cost depending on several factors. Generally speaking, these homes tend to be less expensive to construct than multi-story alternatives because they require fewer materials and simpler construction techniques. However, the actual price depends on:
On average, expect to pay between $150-$300 per square foot for a new 1 story 3 bedroom house. That translates to roughly $150,000-$300,000 for a typical 1,000-2,000 square foot home. But don't let the numbers discourage you – with proper planning and realistic expectations, you can build a beautiful, functional home that fits your budget.
Accessibility and Future-Proofing Features
One of the standout advantages of 1 story homes is their inherent accessibility. They're ideal for aging in place, making them a wise investment for families who want to stay in their home long-term. Here are some features to consider:
These modifications don't have to be dramatic – small changes can make a big difference. Installing grab bars in bathrooms, adding lever-style door handles, and ensuring adequate lighting throughout the home are simple steps toward creating a space that works for everyone, regardless of age or ability. Many of these features also enhance safety for all family members.
Choosing the Right Contractor and Designer

Selecting the right professionals can make or break your 1 story 3 bedroom house project. Look for someone who understands both the technical aspects of construction and the human element of home design. Here's what to look for:
Don't overlook the importance of working with someone who can help you navigate local building codes and zoning requirements. A skilled designer will help you maximize your lot's potential while ensuring compliance with all regulations. They can also advise on energy-efficient choices that will save you money over time.
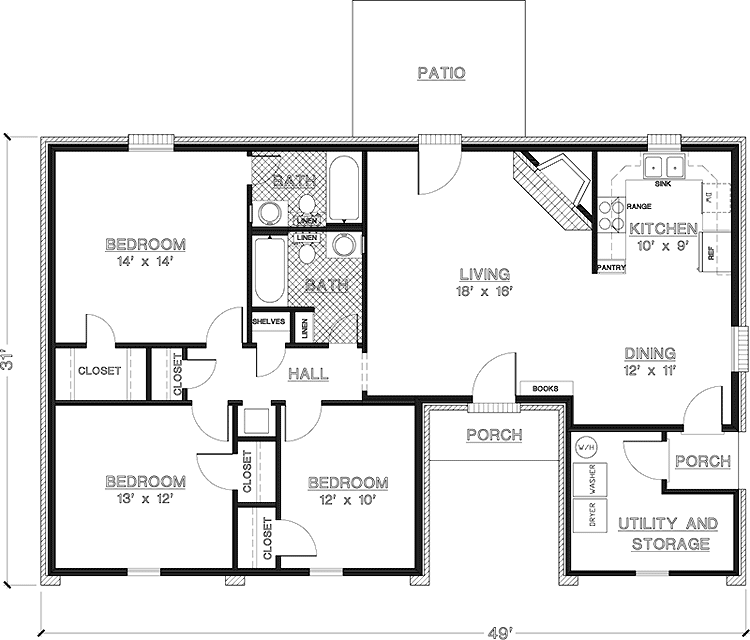
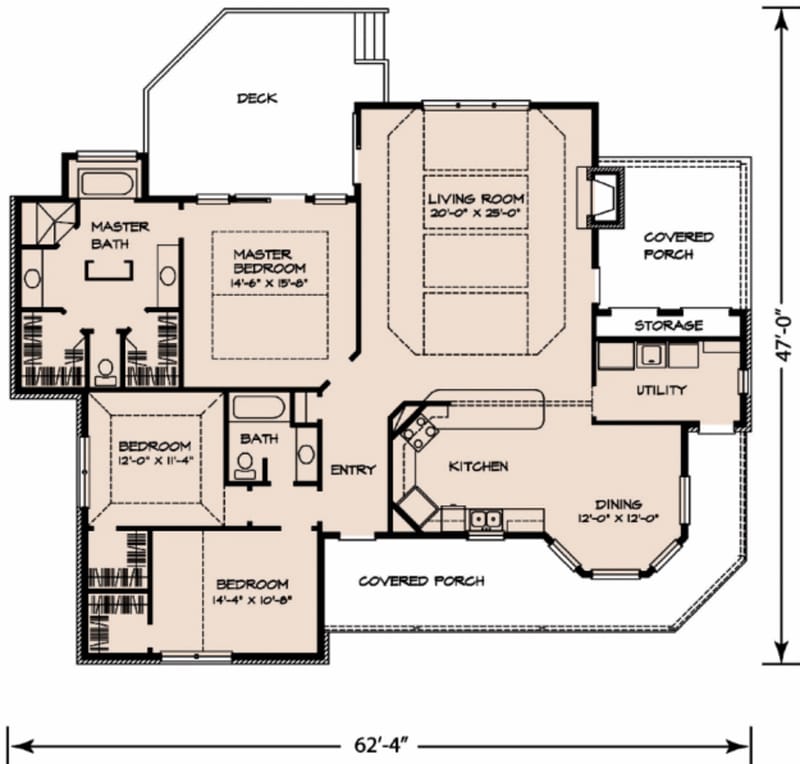
Real-Life Examples and Inspiration
Looking at actual examples can provide inspiration and clarity for your own project. Here are some real-world scenarios that demonstrate different approaches:
Each example shows how the same basic concept can be adapted to meet different needs and preferences. What matters most is finding a plan that aligns with your lifestyle and future goals.
Maintenance and Long-Term Care

Once you've settled into your new 1 story 3 bedroom home, keeping it in great shape requires some thoughtful maintenance strategies:
These homes tend to be easier to maintain than multi-story alternatives because of their simpler structure and accessible spaces. You won't have to worry about reaching high ceilings or navigating tricky staircases when doing routine tasks like changing light bulbs or cleaning vents.
Final Thoughts on Building Your Ideal Home
A 1 story 3 bedroom house plan represents more than just a collection of rooms – it's a foundation for your daily life. It's about creating a space where memories are made, where family traditions are born, and where comfort meets practicality. Whether you're starting from scratch or updating an existing home, these designs offer a path to a more manageable, more enjoyable living situation.
The key is to think beyond the walls and consider how your home will support your lifestyle today and tomorrow. With careful planning, the right team, and a clear vision, you can build or renovate a space that truly feels like home.
The appeal of a 1 story 3 bedroom house plan lies in its ability to combine practicality with comfort in a way that few other designs can match. From the simple joy of waking up without climbing stairs to the satisfaction of maximizing every inch of space, these homes offer real benefits for modern families. Whether you're drawn to the traditional layout, the open concept, or something completely unique, the possibilities are endless. The most important thing is to start with a clear vision of how you want to live and build from there. Your dream home isn't just about the design – it's about creating a place where you and your family can thrive.