Picture this: you're walking into your home and immediately feel relaxed, organized, and at ease. That's what a well-designed 4 bedroom 1 story floor plan can do for you. These layouts aren't just about having four bedrooms – they're about creating a living space that flows naturally, supports your lifestyle, and feels like home.
When it comes to home design, few layouts capture the perfect balance of space and simplicity quite like the 4 bedroom 1 story floor plan. These homes offer something special – they're practical, easy to navigate, and incredibly versatile. Whether you're planning your first house, renovating your current space, or simply dreaming about your future home, understanding how these layouts work can transform your entire approach to residential design. Think of it as the foundation upon which your daily life will be built.
Why Choose a 1 Story Home?
There's something deeply appealing about a single-level home. No stairs means easier mobility for everyone, especially aging parents or young children. Imagine coming home after a long day and not having to think about climbing steps. This is one of the biggest advantages of 1 story floor plans.
These homes also tend to have better natural lighting since there's no upper level blocking the sun. Plus, they often feel more spacious because there's less vertical space to fill. You get more square footage for your money, and the open concept design allows for better flow between rooms.
Consider a family with elderly relatives or small kids – they'll appreciate the lack of stairs. It's not just convenience; it's safety and accessibility. These homes are particularly popular among growing families who want to keep their living spaces simple and functional.

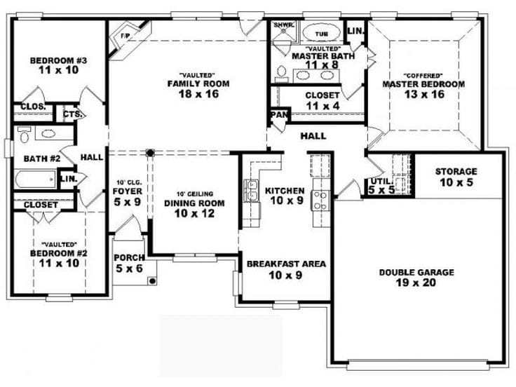
Key Features of Effective 4 Bedroom Plans
Good 4 bedroom 1 story floor plans share several common elements that make them work well in real life:
A well-designed layout might place the master suite away from the other bedrooms, ensuring privacy for parents. The kitchen often sits centrally, acting as a gathering point for the whole family. Some designs feature a separate dining area, while others blend it into the living space. What matters most is that everything serves a purpose and flows naturally.
Popular Layout Variations
Not all 4 bedroom 1 story homes look alike, and that's exactly what makes them so appealing. Here are some common configurations that work exceptionally well:
Each variation offers different benefits. The traditional layout provides clear separation between private and public spaces. Open concept homes encourage interaction and make entertaining easier. Flexible layouts adapt to changing family needs over time. The split bedroom design gives maximum privacy, while minimalist approaches focus on comfort and simplicity.

Essential Room Arrangements
The way you arrange rooms makes all the difference in how your home functions. Here's what works best:
Master Suite Placement - Usually located at the far end of the house or in a quiet corner, this ensures privacy and tranquility. Many plans position it away from the main living areas to provide a peaceful retreat.
Guest Bedrooms - These typically go near the front of the home or in a quieter section. They should be easily accessible but not too close to the main living areas.
Kitchen and Dining - Central location is key. This allows family members to interact while cooking or eating, and makes it easy to move between these spaces.
Utility Areas - Laundry rooms, mudrooms, and storage spaces should be convenient but not in high-traffic zones. They often sit near the garage or entrance.

Living Spaces - These should flow naturally from one to another. A great room concept combines multiple areas into one large, comfortable space that works for both quiet moments and lively gatherings.
Space Optimization Tips
Making the most of every square foot is crucial in 4 bedroom 1 story homes. Here are smart strategies:
Think about your daily routine when planning your layout. Where do you spend most of your time? How does your family move through the house? These answers will guide your decisions about room placement and size. Sometimes a small change in layout can dramatically improve how a home works for you.
Cost Considerations and Design Choices
Building or renovating a 4 bedroom 1 story home involves several financial factors to consider:

When designing, consider materials and finishes carefully. High-quality hardwood floors, energy-efficient appliances, and good insulation pay off in the long run. Smart choices in flooring and cabinetry can significantly impact your budget while affecting the overall look and feel of your home. Don't forget about outdoor spaces – a well-designed deck or patio adds value and enjoyment to your home.
Real-Life Examples and Inspiration
Let's look at some actual examples that demonstrate successful 4 bedroom 1 story designs:
Example 1: A modern ranch-style home with large windows, an open kitchen, and a covered porch. The master suite features a walk-in closet and ensuite bathroom, while the other three bedrooms are evenly spaced for easy access.
Example 2: A traditional layout featuring a central hallway connecting all rooms. The kitchen sits at one end, the master suite at the other, with two guest bedrooms and a study in between.
Example 3: A flexible design that allows for different room arrangements. The main living area can be used for various purposes depending on the season or family needs.

These examples show how different families approach similar challenges. One might prioritize outdoor living spaces, another might focus on maximizing privacy, and a third might emphasize flexibility for changing needs. Each solution reflects the unique lifestyle and priorities of its inhabitants.
Planning Your Perfect Layout
Creating your ideal 4 bedroom 1 story floor plan starts with understanding your needs. Ask yourself these questions:
Start with sketches or use online tools to visualize your ideas. Consider hiring a professional designer if you want to ensure everything works perfectly. Remember that the best floor plans are those that reflect your lifestyle rather than following trends. You'll live with this design for years, so make sure it feels right for your family.
A 4 bedroom 1 story floor plan isn't just about having four bedrooms – it's about creating a home that fits your life perfectly. These layouts offer simplicity, accessibility, and flexibility that many families find invaluable. Whether you prefer the classic arrangement with clearly defined spaces or the modern open-concept design, the key is finding what works for your lifestyle.
The beauty of these homes lies in their adaptability. They can grow with your family, adjust to changing needs, and provide the comfort and functionality that make a house feel like a true home. With thoughtful planning and attention to detail, your 4 bedroom 1 story floor plan can become the foundation for countless happy memories and a lifetime of comfortable living.