Imagine walking into your dream home, where every room flows seamlessly into the next. A 2000 square foot ranch house plan offers the perfect balance between spacious comfort and manageable maintenance. These homes have been popular for decades because they offer practical living spaces that work well for families and individuals alike.
When it comes to home design, few layouts capture the essence of comfortable living quite like the ranch style. These homes, typically spanning around 2000 square feet, represent a sweet spot in residential architecture. They're big enough to provide plenty of space for modern living needs, yet small enough to manage efficiently. Whether you're planning your first home purchase or considering a renovation, understanding what makes a great 2000 square foot ranch house plan is essential. The beauty of this design lies in its simplicity and functionality – it's all about creating a space where life happens naturally.

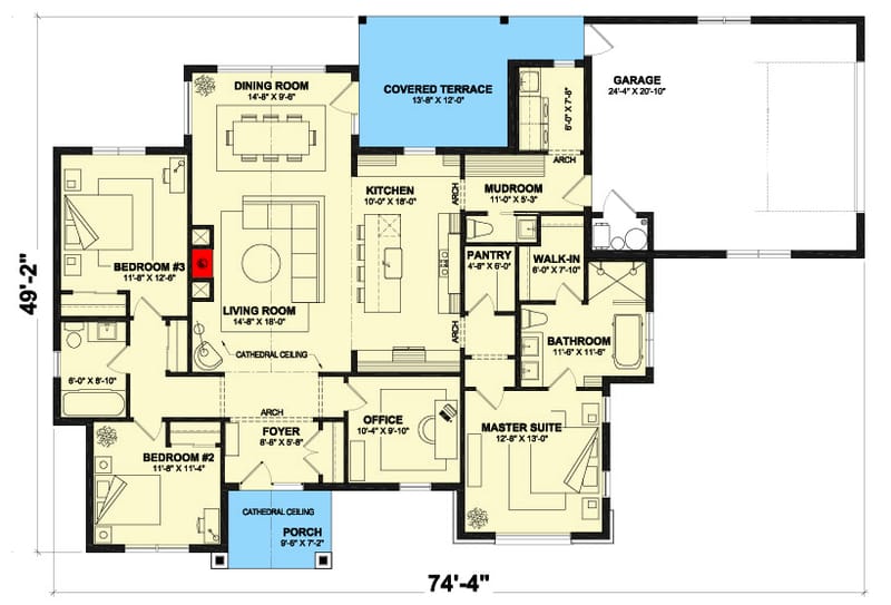
The Classic Ranch Layout
The traditional ranch house layout focuses on horizontal expansion rather than vertical growth. This means you'll typically see one main floor with rooms arranged side-by-side rather than stacked upstairs and downstairs. Think of it as a long, flat rectangle that might be 40 feet wide and 50 feet deep. The kitchen often sits at the heart of the home, connecting to the dining area and living room. This open concept design allows for easy movement and conversation between family members. Many ranch houses feature large windows that bring in natural light and create a sense of openness. The garage usually sits at the back of the house, separate from the main living areas, providing a clean separation between work and play zones. You might find that these homes offer excellent flow for entertaining guests while maintaining privacy for daily activities.

Essential Room Arrangements
A well-designed 2000 square foot ranch plan typically includes:

The kitchen is usually the most important part of the layout since it's where families gather. A good ranch plan will position the stove near the dining area, making meal preparation and cleanup easier. Bedrooms are typically placed on the opposite side of the house from the main living areas, ensuring privacy. The master bedroom often features a private bathroom and walk-in closet, giving homeowners a retreat within their home. Having multiple bathrooms helps reduce morning chaos during busy weekdays. Smart storage solutions in hallways, closets, and under stairs can maximize the available space without feeling cramped.
Popular Design Features

Modern 2000 square foot ranch houses incorporate several design trends that appeal to today's homeowners. Vaulted ceilings add drama and height to living spaces, making them feel more expansive. Large sliding glass doors create seamless transitions between indoor and outdoor spaces, perfect for entertaining. Many designs now feature smart home technology integration right from the start. Outdoor living areas like covered porches or decks are becoming standard additions. Energy-efficient windows and insulation help keep utility bills reasonable. Some homeowners opt for open floor plans that eliminate traditional walls between the kitchen, dining, and living areas. This creates a more fluid environment for both daily routines and special occasions. Built-in shelving and custom cabinetry help maximize storage while adding visual interest to walls.
Cost Considerations

Building or buying a 2000 square foot ranch house involves several financial factors to consider. Construction costs vary significantly based on location, materials, and finishes chosen. On average, expect to pay between $150 and $300 per square foot for new construction, though prices can go higher in desirable areas. Materials like granite countertops, hardwood floors, and energy-efficient appliances will impact the final cost. Labor costs also vary greatly depending on local market conditions. For existing homes, the price range might be between $200,000 and $600,000 depending on condition and location. Financing options include conventional loans, FHA loans, or VA loans if you qualify. It's worth noting that some areas may require permits for certain modifications, adding to overall project costs. Consider budgeting extra for unexpected expenses that often arise during construction or renovation projects.
Practical Benefits and Limitations
Ranch houses offer many advantages that make them appealing to buyers and builders alike. They're generally easier to maintain than multi-story homes since there's no need for ladders or staircases. Cleaning becomes simpler when everything is on one level. These homes also tend to age better over time, with fewer structural issues related to weight distribution. The open floor plans make it easier to accommodate aging family members or pets. However, there are some downsides to consider. Limited space means less room for future expansion compared to larger homes. The single-level design might not suit everyone's lifestyle preferences. Storage space can become challenging in smaller homes, requiring creative solutions. Parking may be limited if the lot size is modest. The layout can sometimes make it difficult to separate quiet areas from active zones.
Customization Options
One of the biggest draws of 2000 square foot ranch house plans is the flexibility to customize according to personal needs. You can choose between different exterior styles, from traditional brick to modern siding. Interior layouts can be adjusted to accommodate various family sizes and lifestyles. Some homeowners prefer three bedrooms while others might want four. The garage configuration can vary from single to double car capacity. Adding a basement or attic conversion provides additional usable space. Outdoor spaces can be tailored from simple patios to elaborate landscaping projects. Kitchen layouts can range from traditional to ultra-modern with high-end appliances. Bathroom configurations can include ensuite master baths or shared family bathrooms. Smart home features can be incorporated during the building phase or added later as technology improves.
A 2000 square foot ranch house plan represents more than just a set of blueprints – it's a foundation for creating a comfortable, functional living space. These homes strike an ideal balance between spaciousness and manageability, making them suitable for many different types of families and lifestyles. Whether you're starting fresh with a new build or renovating an existing home, understanding the core principles of ranch design can guide your decisions toward a successful outcome. The key is finding a layout that supports how you actually live, not just how you think you should live. Remember that the best house plan isn't necessarily the most expensive or the most trendy – it's the one that fits your family's unique needs and your personal vision for home life. With careful planning and thoughtful design choices, your 2000 square foot ranch house can become exactly what you've always dreamed of.