Picture this: You've finally saved enough money, found the perfect lot, and now you're ready to design your dream home. But where do you start when it comes to 2000 square foot one story house plans? This isn't just about square footage – it's about creating a space that feels right for your lifestyle, your family, and your future.
When you think about building or buying a home, size matters. For many families, 2000 square feet strikes that perfect balance between spaciousness and manageability. It's large enough to feel comfortable, yet small enough to maintain. A one-story layout adds another layer of appeal – no stairs means easier navigation for everyone, especially seniors or young children. These homes offer something special: simplicity wrapped in functionality. Whether you're planning a new construction project or renovating an existing space, understanding what makes a great 2000 sq ft one story house plan is crucial. Let's explore what makes these designs so popular and how to make them work for your unique needs.
Why Choose a 2000 Square Foot One Story Home?
There's something appealing about a single-level home that goes beyond just the numbers. These designs offer accessibility, practicality, and often better value than multi-story alternatives. Imagine having your bedroom, bathroom, and living areas all on one floor. No more worrying about kids climbing stairs or elderly relatives navigating steps. Plus, they tend to have better natural light because there's less obstruction from upper levels.
The 2000 sq ft range gives you room for:

This size works well for families with children, empty nesters, or anyone wanting to minimize maintenance while maximizing comfort. It's also more affordable to build compared to larger homes, and easier to heat and cool efficiently. Many people find that 2000 sq ft offers the perfect compromise between spaciousness and manageable upkeep.
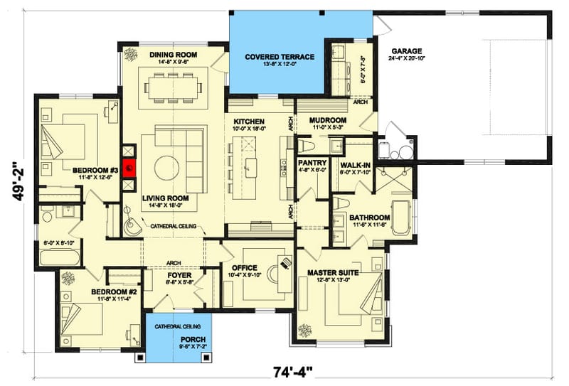
Popular Layout Configurations
Every home is different, but some layouts seem to pop up again and again in 2000 sq ft one story house plans. The key is finding what works best for your family's lifestyle. Here are some common approaches:
Open Concept Design: This is where the kitchen, dining area, and living room flow together seamlessly. You'll see this layout in many modern homes because it creates a sense of spaciousness and makes entertaining easier. Think about how much easier it is to chat with guests while cooking dinner.
Traditional Layout: Bedrooms on one side of the house, living spaces on the other. This is the classic approach that many people find comforting and familiar. It keeps private areas separate from public ones.

Master Suite Design: Having your primary bedroom suite on the main level with its own bathroom is increasingly popular. It provides privacy and convenience for both partners and makes the home more adaptable as needs change.
Flex Spaces: Many modern plans incorporate flexible rooms that can serve multiple purposes. A home office might double as a guest room, or a sunroom could function as a library during the day and play area in the evening.
Essential Features to Consider
When designing or choosing a 2000 sq ft one story house plan, certain features become must-haves rather than nice-to-haves. These elements can transform a good house into a great one:
Cost Considerations and Budget Planning

Budgeting for a 2000 sq ft one story house requires careful planning. While this size is generally more affordable than larger homes, costs can still add up quickly. Construction costs vary widely depending on location, materials, and finishes.
Typical expenses include:
On average, expect to pay between $150-$300 per square foot for construction, though prices can go higher in expensive markets. It's wise to build in a buffer for unexpected costs. Also, remember that some features like custom cabinetry or high-end appliances can significantly impact your final budget. Planning ahead and prioritizing what matters most to you will help keep your project on track financially.
Practical Tips for Maximizing Space
One of the biggest challenges with any home design is making the most of every square foot. In a 2000 sq ft one story house, that becomes even more important. Here are some strategies to maximize your space effectively:

Design Trends for 2000 Sq Ft Homes
Home design trends shift constantly, but some elements consistently appear in successful 2000 sq ft one story house plans. Staying current with these trends can help ensure your home feels fresh and modern for years to come:
Biophilic Design: Bringing nature indoors through plants, natural materials, and large windows creates a calming environment. This trend focuses on connecting with the outdoors even when you're inside.
Smart Home Integration: From thermostats to lighting systems, technology plays a bigger role in modern homes. Automated systems can improve energy efficiency and add convenience.
Sustainable Materials: Eco-conscious buyers are looking for homes built with sustainable materials and designed for energy efficiency. Solar panels, low-flow fixtures, and recycled materials are becoming standard features.

Flexible Living Spaces: As work-from-home arrangements continue, homes need spaces that can adapt to changing needs. Home offices, multipurpose rooms, and mobile workstations are increasingly common.
Minimalist Aesthetics: Clean lines, simple shapes, and fewer decorative elements create a timeless look that won't date quickly. This approach emphasizes quality over quantity.
Final Thoughts on 2000 Sq Ft One Story Homes
A 2000 square foot one story house plan represents more than just measurements on paper. It's a canvas for your life, a reflection of your priorities, and a foundation for your future. These homes offer the perfect balance of comfort, functionality, and practicality. Whether you're planning to build from scratch or renovate an existing structure, the key is to think about what matters most to you and your family.
Remember, every house is unique, and what works for someone else may not work for you. Consider your lifestyle, your budget, and your long-term goals when selecting or designing your ideal 2000 sq ft one story home. The right plan will make daily life easier, bring joy to your family, and stand the test of time. It's not just about the size of your home – it's about how well it fits your heart and your life.
Building or buying a 2000 square foot one story house plan is a significant decision that deserves thoughtful consideration. These homes offer a wonderful middle ground between spaciousness and manageability, with the added benefits of accessibility and ease of maintenance. By understanding the different layout options, essential features, and current design trends, you can make informed choices that align with your lifestyle and budget. Whether you're dreaming of a cozy family home or a functional workspace, the right 2000 sq ft one story plan can provide exactly what you need. The key is to focus on what makes your life easier and happier, rather than simply chasing square footage. Your dream home is out there waiting to be designed or discovered, and it might just be the perfect 2000 square feet you've been looking for.