There's something deeply comforting about the simple, straightforward beauty of a ranch-style home. When you think about it, these homes have been quietly dominating neighborhoods for decades because they work. They're practical, they're efficient, and most importantly, they feel like a place where you can truly settle down. For families looking to build or buy their first home, or for anyone seeking a low-maintenance lifestyle, a 2 bedroom ranch style floor plan might just be exactly what you've been searching for.
Ranch homes have been around since the mid-1900s, and for good reason. These single-story dwellings offer an open, spacious feel that's perfect for modern living. The 2 bedroom ranch style floor plan takes that classic appeal and adds just enough space to accommodate a growing family or provide a quiet retreat. Whether you're planning to build from scratch or simply want to understand what makes these layouts work so well, this guide will walk you through everything you need to know. Think of it as your roadmap to finding or creating the perfect ranch-style home.

What Makes a Ranch Home Special?
Ranch homes aren't just about their appearance – they're built on principles that make them incredibly functional. The single-story design means no stairs to navigate, which is great for aging in place. They typically feature a long, low profile that hugs the landscape rather than towering above it. The layout usually includes a central living area that flows naturally between the kitchen, dining, and family spaces. This creates an open concept that feels both cozy and expansive. The 2 bedroom ranch style specifically balances privacy with accessibility. It gives you two private sleeping areas while keeping the common spaces open and inviting. Many people find that these homes feel like they were designed with daily life in mind. The kitchen often sits right in the middle of the house, making meal prep and family gatherings easy. You can imagine the morning chaos of breakfast, homework, and getting ready for work happening all within the same area, which makes sense for busy families. What's really appealing about ranch homes is how they encourage togetherness while still providing personal space. The layout naturally promotes conversation and connection between family members. The open floor plan also allows for better natural light throughout the day. Every room can benefit from the sun streaming in, which makes the whole house feel brighter and more welcoming.

Key Features of 2 Bedroom Ranch Plans
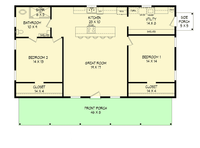
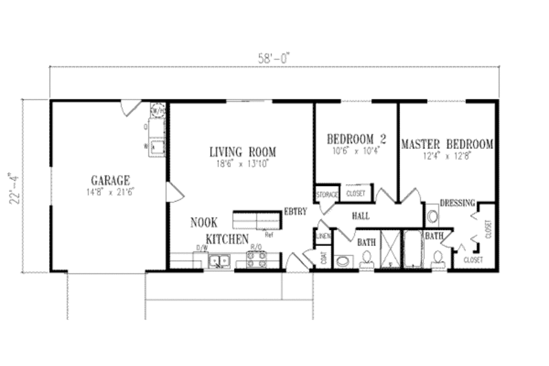
A typical 2 bedroom ranch floor plan usually includes several core elements that make it so popular. The living room is typically the heart of the home, positioned to take advantage of windows and views. It's designed to be the main gathering spot where everyone naturally gravitates. The kitchen is often located near the living area, sometimes with an island or breakfast bar that brings people together. Two bedrooms give you the flexibility to accommodate children, guests, or even a home office. Many plans include a small hallway connecting the bedrooms to the main living areas. This hallway can serve as a transition space or provide additional storage. The bathroom is usually placed near the bedrooms for convenience. Some designs incorporate a half bath for guests or a powder room for entertaining. Another common feature is a large front porch or covered entryway that welcomes visitors. The garage is typically attached or nearby, giving easy access to the home. The overall footprint is designed to maximize usable space while keeping the construction costs reasonable. The standard size ranges from about 1,200 to 1,800 square feet, depending on the number of features included. These homes often include a mudroom or entryway area where coats, shoes, and bags can be stored. Many ranch homes also have a den or study that can double as a third bedroom or a quiet space for reading and working.

Popular Layout Variations
Not every 2 bedroom ranch looks the same, and that's part of what makes them so versatile. One common variation places the bedrooms side-by-side, which provides easy access to shared bathrooms and creates a more centralized living experience. This works especially well when one bedroom is for children and the other for parents. Another popular setup puts one bedroom at the front of the house and the other at the back. This arrangement offers more privacy for each sleeping area and can create distinct zones within the home. The master suite approach puts the primary bedroom at the rear of the house, often with its own private bathroom and closet space. This creates a more elegant feeling while still maintaining the open flow of the ranch style. Some plans feature a split-bedroom design where the master bedroom is separated from the other bedroom. This arrangement gives you the best of both worlds – the privacy of separate sleeping areas and the convenience of shared common spaces. The kitchen placement varies too, with some designs featuring it in the center while others position it along one wall. The dining area might be integrated into the kitchen or separate, depending on how much space is available. Consider how your family will actually use the space. If you entertain frequently, you might prefer a more open layout. If you need quiet spaces for work or relaxation, a more defined layout may be better.

Practical Benefits of This Design
When you look at a 2 bedroom ranch style floor plan, you start to see how thoughtful the design really is. There's minimal maintenance involved, which appeals to many homeowners. No stairs mean easier mobility for elderly family members or young children. The single-level design also makes it easier to clean and organize the entire home. The open concept makes it simpler to keep an eye on children during playtime or meals. You won't have to worry about noise traveling between floors or having to carry items up and down stairs. The design also allows for more natural light to enter the home, which affects mood and energy levels. The layout supports a variety of lifestyles, whether you're a young couple starting out, a growing family, or someone looking for a simpler way of life. Many ranch homes are also more affordable to build or purchase compared to multi-story alternatives. The construction process is generally less complex, which can save money and time. The simple design means fewer potential problems with plumbing, electrical systems, and structural elements. The floor plan also allows for easier modifications later if your needs change. You can add rooms, reconfigure spaces, or update features without major structural changes. This adaptability is one of the biggest advantages of the ranch style.

Considerations for Buying or Building
Before choosing a 2 bedroom ranch style floor plan, there are several important factors to consider. First, check local building codes and zoning requirements, especially if you're planning to build. Some areas have restrictions on home sizes or architectural styles. Consider the lot size and orientation. A ranch home works best when the lot allows for a long, low footprint. Look for properties that have good natural lighting and views. The location matters too – are you near schools, shopping, or employment? These homes often sell quickly because of their appeal to families. If buying, research the neighborhood's history and future development plans. Think about your long-term needs. Will this layout work for your family in five or ten years? Consider the resale value. Ranch homes tend to hold their value well because they're familiar and practical. Check if utilities are easily accessible and if the property can handle any upgrades you might want. Look for homes with good insulation and energy efficiency features. The age of the home can impact everything from foundation stability to modern amenities. Ask about recent renovations and any necessary updates. Don't overlook the importance of the surrounding environment. Is the home set back enough from neighbors? Are there adequate parking spaces? Consider how the layout fits your lifestyle and daily routine. Do you need privacy? Will the kitchen work for your cooking habits? These questions help determine if a particular floor plan is right for you.
Making Your Space Work for You
Once you've settled on a 2 bedroom ranch style floor plan, the real fun begins – making it your own. Start with the basics: how do you want to use each space? The kitchen might become your heart of the home, so invest in good appliances and storage solutions. Consider adding a breakfast nook or island to create conversation areas. The living room should reflect your family's activities – whether that's movie nights, board games, or reading corners. Think about how you want to balance privacy and openness. Maybe you want a cozy family room with built-in bookshelves and a fireplace. Or perhaps you'd prefer a more casual space with comfortable seating and a view. The bedrooms should feel like retreats. Consider how much storage you need and what kind of lighting works best for each space. The bathroom can be a place to relax and recharge after a long day. Don't forget outdoor spaces – the front porch or backyard can extend your living area and provide extra entertainment space. Lighting plays a huge role in setting the mood. Layer different types of lights – ambient, task, and accent – to create flexibility. Consider smart home features that can make daily routines easier. The layout gives you lots of options for customization. You might want to add a sunroom or convert a spare room into a home gym. The beauty of ranch homes is that they can evolve with your changing needs. Think about what makes your family happy and then design around those priorities. Remember, a good floor plan isn't just about the numbers – it's about creating a space where you can live comfortably and enjoyably.
The 2 bedroom ranch style floor plan represents more than just a house – it's a lifestyle choice. It's the kind of home that welcomes you in after a long day and provides the stability and comfort that so many people crave. Whether you're building from scratch or buying an existing home, these layouts offer practicality, charm, and timeless appeal. The key is understanding what makes them work so well and then tailoring them to fit your specific needs. Remember, a great floor plan is one that serves your family's lifestyle today and adapts to your needs tomorrow. Don't let the simplicity of the ranch style fool you – it's actually quite sophisticated in its design choices. The careful balance of open spaces and private areas, of functionality and comfort, makes these homes so enduringly popular. Take your time with the selection process, and trust that a well-thought-out 2 bedroom ranch floor plan will provide years of satisfaction. After all, you'll spend a lot of time in this space, so it's worth investing the thought and effort into getting it right. The result is a home that not only looks good but also feels right – a place where memories are made and lives are lived.