Imagine walking into a home that feels spacious yet cozy, functional yet beautiful. A 1500 square foot house isn't just about size—it's about maximizing every inch for comfort and style. Whether you're planning your first home or upgrading your current space, understanding how to effectively utilize this square footage can transform your living experience.
When it comes to home construction, 1500 square feet represents the sweet spot between manageable size and adequate space. This amount of floor area offers enough room for all essential living areas while remaining cost-effective and energy-efficient. Think of it as the perfect canvas for your lifestyle needs. Whether you're a young couple, a growing family, or someone looking for a cozy retreat, this square footage allows for thoughtful design choices that enhance daily life. The key lies in smart planning and strategic layout decisions that make the most of available space without feeling cramped or wasteful.
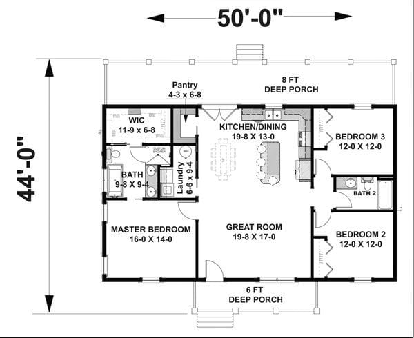
Understanding 1500 Square Feet Layout Possibilities

A 1500 square foot home typically provides room for 2-4 bedrooms, depending on your needs and preferences. This space allows for creative thinking when designing your layout. For instance, you might consider an open-concept living area that flows seamlessly into dining and kitchen spaces. Alternatively, a more traditional approach could feature distinct rooms with defined boundaries. The key is matching the layout to your lifestyle. Do you entertain often? Then a larger living area might be priority. Are you more of a private person? Perhaps a quiet study or meditation space would serve you better. Consider your daily routines and how you want to move through your home.
Essential Room Size Guidelines
Breaking down the ideal dimensions for each room helps ensure functionality and comfort:

These measurements provide comfortable breathing room for furniture placement and movement. Remember, even with standard dimensions, the actual usable space depends heavily on layout efficiency. For example, a kitchen with a breakfast nook can feel much larger than one with traditional cabinetry alone. Think about how you'll actually use each space rather than just focusing on square footage numbers.
Popular Floor Plan Configurations
Several classic layouts work well within 1500 square feet:

Each configuration has advantages and drawbacks. Open concepts offer flexibility and visual flow, but may lack privacy. Traditional setups provide clear boundaries but can feel compartmentalized. Choose based on your lifestyle habits and what makes you happiest in your daily routine.
Key Design Elements for Maximum Efficiency
Smart design choices can make a significant difference in how your 1500 square feet feels. Here are crucial elements to consider:

Consider how you move through your home. Does your path from the kitchen to the living room require walking through a narrow hallway? These small inefficiencies add up to big frustrations over time. The goal is to make every step purposeful and comfortable.
Cost-Effective Planning Strategies
Building or renovating a 1500 square foot home requires budget awareness. Here are ways to manage costs without sacrificing quality:

Budget constraints shouldn't limit your vision. Sometimes the best approach is to start with core elements and add features gradually. This way, you get your most important spaces right while maintaining financial flexibility for improvements down the road.
Practical Tips for Customization
Making your 1500 square foot space truly yours involves thoughtful customization:
Think about how you want to age in your home. Will you need wheelchair accessibility? How will your space evolve as children grow? Planning for these scenarios ensures your investment remains valuable and functional for years to come.
Designing a 1500 square foot home is both an art and science. It requires balancing practicality with personal taste, efficiency with comfort, and current needs with future possibilities. The beauty of this space size is that it encourages intentional design choices rather than overwhelming decisions. Every room should have a purpose, every corner should contribute to your lifestyle, and every element should feel like it belongs. Remember, the best building plans aren't just about square footage—they're about creating spaces where you genuinely want to spend your time. Whether you're building from scratch or renovating existing space, focus on what matters most to you. Your home should reflect not just your style, but your soul. The key is starting with a clear vision and allowing flexibility to adjust as you learn what truly works for your unique situation. With careful planning and thoughtful execution, your 1500 square feet can become the perfect sanctuary for everything you love.