There's something deeply satisfying about the idea of a cozy farmhouse with two bedrooms and two baths. These layouts blend rustic charm with modern comfort in ways that speak to our love of both tradition and convenience. Whether you're planning your first home or adding onto your existing space, understanding how to design and build a 2 bedroom 2 bath farmhouse can transform your vision into reality.
Farmhouses have captured hearts across America for their timeless appeal. The combination of open spaces, natural materials, and functional layouts makes them ideal for families seeking both comfort and character. When you narrow it down to a 2 bedroom 2 bath configuration, you're creating a perfect balance between intimacy and functionality. These homes often feature large windows that let in natural light, exposed beams that add warmth, and spacious areas that encourage family gatherings. The beauty of farmhouse design lies in its ability to make every room feel welcoming, even when space is limited.
Understanding Farmhouse Design Principles

Farmhouse architecture isn't just about looks – it's about creating spaces that work for real life. Traditional farmhouse elements like shiplap walls, wooden beams, and wide plank floors bring warmth and character to every room. But what really sets these designs apart is their emphasis on function. You'll notice how the layout encourages movement and interaction between spaces. The kitchen often becomes the heart of the home, designed to be both practical and social. This is especially important in a 2 bedroom 2 bath setup where every square foot needs to serve multiple purposes.
Essential Features of 2 Bedroom 2 Bath Layouts
When designing a 2 bedroom 2 bath farmhouse, several key features tend to appear consistently:

These elements work together to create a home that feels both spacious and intimate. The challenge lies in balancing these features while staying within the constraints of a smaller footprint.
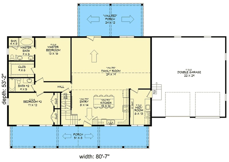
Room Layout Considerations
Planning the exact arrangement of rooms can make or break your farmhouse dream. Many successful 2 bedroom 2 bath designs place the master bedroom on one side of the house with its private bathroom, while the second bedroom sits on the opposite side with access to the shared bath. This setup provides privacy for the primary sleeping area while keeping common spaces centralized. Some designers prefer a more traditional approach with bedrooms positioned at the back of the house and living areas toward the front. The key is ensuring that traffic flows smoothly and that each room has adequate natural light and ventilation.

Popular Design Styles Within Farmhouse Frameworks
Farmhouse design has evolved significantly over the past decade, offering various interpretations to suit different tastes:
Each style brings its own flavor to the 2 bedroom 2 bath layout. The beauty of these plans is their versatility – they can accommodate almost any aesthetic preference while maintaining the essential farmhouse characteristics.

Practical Tips for Homeowners
Creating your ideal 2 bedroom 2 bath farmhouse involves more than just choosing beautiful finishes. Here are some key considerations:
Many homeowners find that the most successful farmhouse designs are those that anticipate lifestyle changes rather than just focusing on current needs. This forward-thinking approach helps ensure your investment remains valuable over time.

Budget-Friendly Approaches to Farmhouse Construction
Building or renovating a farmhouse doesn't have to break the bank. Smart budgeting strategies can help you achieve that farmhouse look without overspending:
The farmhouse aesthetic often relies on the quality of materials and craftsmanship rather than price tags. By focusing on key areas and making smart choices, you can create a beautiful space that feels both affordable and luxurious.
A 2 bedroom 2 bath farmhouse represents more than just a house – it's a lifestyle choice that combines practicality with charm. Whether you're starting from scratch or updating an existing home, these plans offer a solid foundation for creating a space that feels both comfortable and uniquely yours. The key is to think beyond simple square footage and consider how each element contributes to your daily life. With careful planning and attention to detail, your farmhouse can become a true sanctuary that brings joy to everyone who enters. Remember, the best farmhouse designs are those that reflect your personality and meet your actual needs rather than following trends blindly. Let your personal preferences guide your decisions, and you'll end up with a home that truly works for you.