There's something deeply satisfying about a well-designed ranch home. The open concept, the easy flow, the way everything seems to work together perfectly. For families looking to build or renovate, 3-bedroom ranch floor plans offer the ideal balance of space and functionality. Whether you're planning a new construction project or simply trying to visualize your dream home, understanding these layouts can make all the difference.
When it comes to home design, few layouts capture the essence of comfortable living quite like the ranch house style. These homes, with their single-story design and horizontal emphasis, have been beloved by families for decades. A 3-bedroom ranch floor plan isn't just about having three bedrooms - it's about creating a space where life happens naturally. Think of it as the foundation for your family's daily adventures, from morning coffee to evening movies. The beauty of these plans lies in their simplicity and versatility. They're designed to accommodate modern lifestyles while maintaining that classic charm that makes ranch homes so appealing.
What Makes a Great 3-Bedroom Ranch Layout
The secret to a successful 3-bedroom ranch floor plan isn't just about the number of rooms, but how they work together. A well-thought-out layout considers traffic flow, privacy needs, and family dynamics. Let's break down the essential elements that make these homes special.
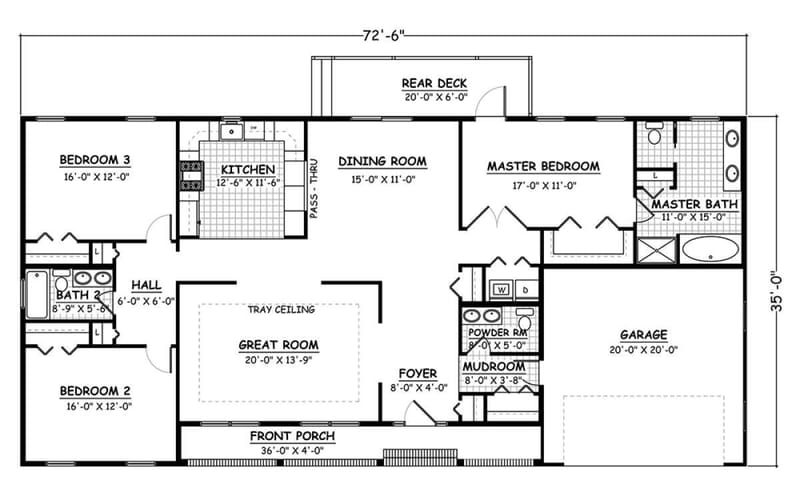
Consider a typical 3-bedroom ranch layout where two bedrooms face the front of the house for easy access to a shared bathroom, while the master suite sits at the back with its own private bathroom and perhaps a walk-in closet. This arrangement creates a natural separation between family areas and private retreats.
Key Features of Popular 3-Bedroom Ranch Designs
Not all 3-bedroom ranch floor plans are created equal. Different families have different needs, and designers have crafted various approaches to meet those needs. Here are some common design styles that stand out:

Traditional Ranch Style This is the classic approach featuring a long, low profile with wide eaves and large windows. The layout usually includes a central hallway connecting the main living areas to the bedrooms. You'll find this style particularly appealing for families who want a timeless look with lots of natural light.
Modern Ranch Variation These designs incorporate contemporary elements like large glass panels, flat roofs, and minimalist aesthetics. The emphasis is on clean lines and uncluttered spaces. These homes often feature open floor plans with minimal interior walls.
Family-Friendly Ranch Designed with busy households in mind, these layouts include features like mudrooms, extra storage, and flexible spaces that can adapt to changing family needs. Think of it as a home that grows with your family over time.
Each style offers unique advantages, but they all share the fundamental goal of creating a comfortable, functional living environment.
Essential Room Arrangements and Flow
One of the most important aspects of any ranch floor plan is how the rooms relate to each other. Good flow means moving through the house feels natural, not forced. Here's how to think about room relationships:
The Heart of the Home In most 3-bedroom ranch plans, the kitchen and dining area are positioned to serve as the gathering point for the family. This location allows parents to supervise children while cooking, and it keeps everyone connected during meals.

Bedroom Considerations With three bedrooms, there's flexibility in how you arrange sleeping spaces. Some families prefer all bedrooms on one side of the house for privacy, while others might place the master bedroom at the back with access to a private bathroom.
Storage and Utility Areas A good ranch floor plan accounts for laundry rooms, pantries, and storage areas that are easily accessible but don't disrupt the main living spaces. These areas should be positioned strategically to support daily routines.
Outdoor Connection Many ranch homes feature sliding glass doors that open directly to patios or decks. This connection between indoor and outdoor spaces is crucial for families who enjoy entertaining or spending time outdoors.
Space Optimization Tips for Smaller Ranch Homes
Even smaller 3-bedroom ranch floor plans can feel spacious and functional when designed thoughtfully. Here are some strategies for maximizing every square foot:
Multi-functional Rooms Consider a room that can serve multiple purposes. A study or office might double as a guest room, or a breakfast nook could become a casual dining area when needed.
Vertical Storage Solutions Take advantage of wall space with tall bookcases, shelving units, and built-in storage. This approach keeps the floor space open while providing plenty of organization options.

Creative Entryway Design The entry area can be both practical and stylish. A small hall with built-in hooks, a console table, and a bench can handle daily necessities while setting the tone for the rest of the home.
Efficient Kitchen Planning In compact ranch homes, the kitchen is often the most important space. Focus on efficient workflow, smart appliances, and storage solutions that make meal preparation easier and more enjoyable.
These design choices can transform a modest-sized ranch home into a comfortable and practical living space.
Budget Considerations and Cost Factors
Building or remodeling a 3-bedroom ranch home involves several financial considerations that vary based on location, materials, and complexity. Understanding these costs helps in making informed decisions:
Construction Costs On average, building a 3-bedroom ranch home ranges from $150 to $300 per square foot depending on your region and desired finishes. The price can increase significantly if you choose premium materials or custom features.
Foundation and Structural Elements The foundation and basic structure form the backbone of any home. These elements require careful attention and proper engineering, especially if you're building on challenging terrain.

Interior Finishes The choice of flooring, cabinetry, countertops, and fixtures can dramatically impact your budget. Some families opt for standard finishes and upgrade later, while others prefer to complete everything upfront.
Permits and Utilities Don't forget to factor in permit fees, utility connections, and potential site preparation costs. These expenses can add several thousand dollars to your overall project cost.
Planning ahead and getting detailed quotes from contractors will give you a clearer picture of what to expect financially.
Design Trends and Modern Adaptations
While traditional ranch homes have enduring appeal, modern homeowners are finding ways to update these classic layouts for today's lifestyle needs. Current trends include:
Technology Integration Smart home features like programmable thermostats, security systems, and automated lighting are becoming standard. These additions enhance convenience and energy efficiency.
Sustainable Building Practices Many new ranch homes incorporate eco-friendly features such as solar panels, energy-efficient windows, and sustainable building materials. These choices can reduce long-term costs and environmental impact.

Flexible Living Spaces Today's families often need adaptable spaces. Convertible rooms, movable walls, and modular furniture allow homes to evolve with changing needs.
Outdoor Living Connections More ranch homes feature expanded outdoor living areas including covered patios, fire pits, and garden spaces. These additions blur the line between inside and outside living.
These modern adaptations show how classic ranch design principles can be updated to meet contemporary expectations while maintaining the comfort and familiarity that makes these homes so appealing.
Practical Planning and Decision Making
When working with 3-bedroom ranch floor plans, several practical factors influence your final decision:
Family Size and Needs Consider how many people will live in the home and what their daily routines involve. Will you need a home office? Do you want a separate space for guests?
Future Expansion Potential Think about whether you might want to add more space later. Some ranch layouts are more easily expandable than others.
Local Building Codes Different regions have varying requirements for construction, zoning, and safety standards. Research these early in the planning process.
Professional Guidance Working with architects, builders, and designers can help translate your vision into reality. These professionals can suggest improvements and identify potential issues before construction begins.
Making thoughtful decisions at the beginning of the process saves time, money, and stress later on. Take time to consider all aspects of your chosen layout.
A 3-bedroom ranch floor plan represents more than just architectural blueprints - it embodies the way families live, grow, and create memories together. Whether you're drawn to the classic charm of traditional layouts or the contemporary flair of modern adaptations, these designs offer the perfect canvas for your personal story. The key is understanding what works best for your specific situation and lifestyle. Remember, a great floor plan isn't about following trends - it's about creating a space that feels right for you and your family. With careful consideration of space, flow, and practical needs, your 3-bedroom ranch home can become the foundation for countless happy moments and lasting memories. The journey from concept to completion may seem daunting, but with the right approach, your dream ranch home is well within reach.