When you're planning your dream home, size matters. A 2600 square feet house plan strikes the perfect balance between spaciousness and manageability. It's large enough to accommodate family needs while remaining practical and affordable. Whether you're building from scratch or remodeling, understanding what makes a 2600 sq ft plan work is essential.
A 2600 square feet house plan isn't just about numbers on paper. It represents the sweet spot where comfort meets functionality. This size allows for generous living spaces without the overwhelming costs of larger homes. Think of it as creating the perfect canvas for your lifestyle. What does this space really mean for your daily life? Let's explore how to make the most of every square foot.
Understanding the 2600 Square Feet Advantage

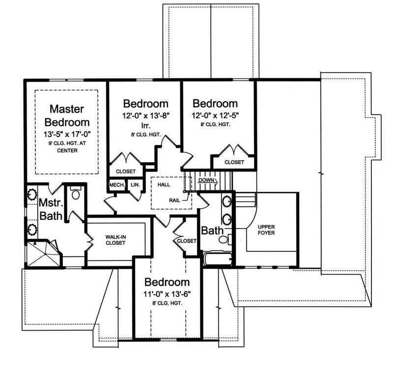
The 2600 square feet range offers something special – it's big enough to feel spacious but small enough to manage. Imagine having a main floor with a kitchen, dining area, and living room that flows together seamlessly. You might have three bedrooms, two bathrooms, and even a home office or guest room. This size accommodates growing families while staying within reasonable budgets. Many people find this size ideal for their lifestyle needs.
Popular Layout Options
There are several ways to arrange 2600 square feet to suit different preferences:

Each option brings its own benefits. Which style matches your family's needs better?
Essential Rooms and Features
A well-designed 2600 sq ft home typically includes:

The key is balancing each element so nothing feels cramped or wasted. What features matter most to you in your daily routine?
Cost Considerations
Building or buying a 2600 sq ft home involves various expenses:

Total costs often range from $375,000 to $780,000 for construction. Remember that quality finishes and custom features increase overall expenses. Are you ready to budget accordingly?
Space Optimization Tips
Maximizing every square foot becomes crucial when working with 2600 sq ft:

Think about how you actually live rather than how you imagine you should. What changes could make your current space more efficient?
Design Trends for 2600 Square Feet
Current trends shape how people want to live in their homes today:
These elements help ensure your home stays relevant and comfortable for years to come. How do these trends align with your vision for your future home?
A 2600 square feet house plan represents more than just measurements on a blueprint. It's about creating a space that supports your lifestyle while remaining manageable and cost-effective. Whether you choose an open concept design or traditional layout, the key is thoughtful planning. Every room should serve a purpose, and every square foot should contribute to your happiness. Remember, the best house plan is one that fits your life perfectly. What aspects of 2600 sq ft living appeal to you most? Start thinking about how you want to make this space uniquely yours.