Imagine walking into a home that feels just right – spacious enough for family life, cozy enough for intimate moments, and thoughtfully designed to meet every need. That's exactly what 2600 square foot house plans offer. This size strikes a sweet spot between manageable maintenance and generous living space. Whether you're planning your first home or upgrading to something larger, understanding how to maximize this square footage can transform your housing dreams into reality.
When it comes to residential architecture, few sizes capture the balance between comfort and efficiency quite like 2600 square feet. It's big enough to provide plenty of room for modern living while remaining practical for maintenance and energy costs. This article explores the art and science behind designing a home that fits perfectly within this footprint, examining everything from floor plan layouts to smart storage solutions. Think of this as your roadmap to creating a space that truly works for you and your lifestyle.

Understanding the Right Size
Why does 2600 square feet matter? For starters, it represents a sweet spot in the housing market. Most families find this size comfortable for their needs without being overwhelming. It allows for three or four bedrooms, a spacious kitchen, and plenty of living areas. The average American home has grown over the decades, and 2600 sq ft offers a middle ground between modest homes and sprawling estates. This size accommodates growing families while keeping utility bills reasonable. Plus, it's often easier to sell and finance than larger properties.

Popular Layout Options
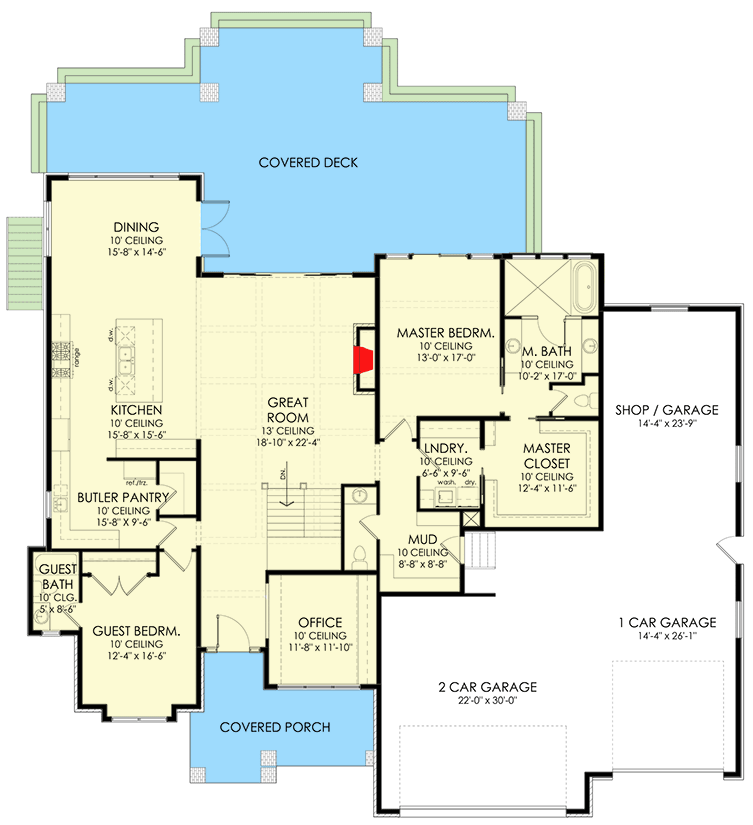
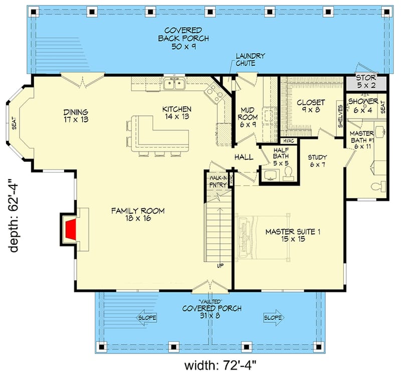
There are several tried-and-true layouts that work exceptionally well within 2600 square feet. Open concept designs are particularly popular because they create a sense of spaciousness and allow for easy movement between rooms. Consider a main level with a kitchen, dining area, and living room flowing together. A split-bedroom layout can be effective too, offering privacy for sleeping areas while keeping common spaces central. Two-story designs maximize vertical space, giving you more room without increasing the footprint. Some architects prefer a ranch-style approach with all living areas on one level, perfect for accessibility and ease of movement.

Key Rooms and Their Ideal Placement
The kitchen, living room, and bedrooms form the heart of most 2600 square foot plans. Kitchens benefit from being centrally located to connect with dining and living areas. The living room often becomes the focal point, serving as a gathering place for family and guests. Bedrooms typically get the most attention in terms of placement, with master suites often positioned away from other sleeping areas for privacy. Bathrooms should be strategically placed near bedrooms for convenience. Consider having at least one bathroom on each level to avoid long hallways and unnecessary walking distances.

Maximizing Storage Solutions
Storage is where 2600 square feet really shines. This space allows for thoughtful organization that keeps homes clutter-free. Built-in storage solutions in hallways, under stairs, and in closet spaces can dramatically increase usable storage. Consider walk-in closets for bedrooms, pantry spaces in kitchens, and storage areas in mudrooms or entryways. Smart storage choices can make even small spaces feel spacious. Many designers recommend incorporating storage into architectural features rather than treating it as an afterthought. This approach creates a seamless look while maximizing functionality.

Design Trends and Features
Modern 2600 square foot plans often incorporate features that enhance both style and function. Large windows bring in natural light and create visual connections between indoor and outdoor spaces. Smart home technology integration helps manage lighting, temperature, and security efficiently. Open floor plans continue to be popular, allowing for flexible living arrangements. Multi-functional rooms like home offices that double as guest rooms offer great versatility. Outdoor living spaces such as decks or patios extend the living area naturally, especially important in climates with good weather year-round.
Budget Considerations and Cost Factors
Building a 2600 square foot home requires careful budget planning. Costs vary significantly based on location, materials, and complexity of design. Foundation work, electrical systems, and plumbing represent major expenses. High-end finishes and custom features can quickly add to the total cost. However, there are ways to optimize costs without sacrificing quality. Choosing standard fixtures and materials early in the process helps control spending. Working with experienced contractors who understand local building codes and practices can prevent costly mistakes during construction. Remember that efficient floor planning can reduce overall costs by minimizing material waste and structural complexity.
A 2600 square foot house plan isn't just about numbers on paper – it's about creating a space that reflects your values and supports your daily life. Whether you're starting fresh or renovating existing space, understanding how to best utilize this square footage makes all the difference. The key lies in thoughtful planning that considers not just what you want to do, but how you want to live. With the right approach, 2600 square feet can become the perfect canvas for your ideal home. Remember, the most successful designs aren't necessarily the most expensive – they're the ones that truly serve their inhabitants.