Picture this: a cozy home that feels spacious, functional, and perfectly suited to your lifestyle. What if we told you that size matters less than how you use every inch? That's exactly what 1800 square feet offers – enough room for comfort without the overwhelm of maintenance or cost. This guide will walk you through everything from layout considerations to design trends that make 1800 sq ft feel just right.
When it comes to home planning, there's something magical about 1800 square feet. It's not too small to feel cramped, nor too large to feel empty. This size strikes the perfect balance between practicality and comfort. Whether you're a young couple starting out, a growing family, or someone looking for a manageable space to call home, understanding how to maximize this area can transform your living experience. We'll explore how thoughtful design choices can make all the difference in creating a home that truly works for you.
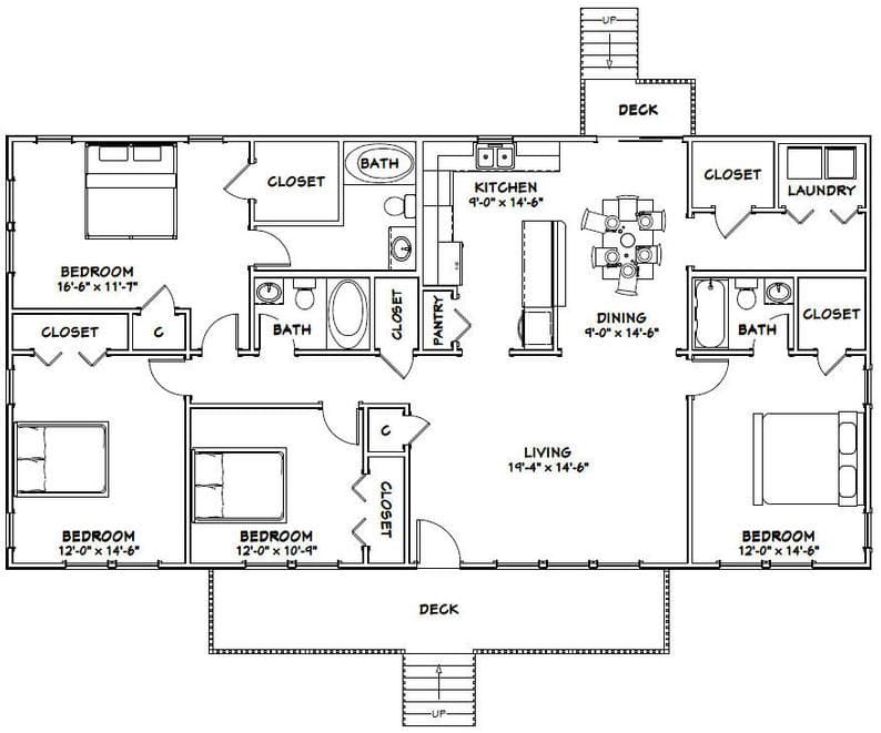
Understanding the 1800 Square Foot Advantage
Why choose 1800 sq ft over other sizes? This measurement gives you room for a master suite, two additional bedrooms, a kitchen that feeds the family, and even a bonus space like a home office or den. Think about it – you're not just buying square footage, you're investing in quality time with family, quiet moments alone, and spaces designed for your daily life. Many people find that 1800 sq ft provides enough flexibility for future changes without requiring a complete overhaul. It's a sweet spot where you can afford to be intentional with every room and still maintain manageable costs.

Essential Layout Considerations
The foundation of any great home plan lies in its layout. For 1800 sq ft, consider these key elements:
A well-thought-out layout can make a 1800 sq ft home feel much larger. The trick is to avoid cluttering every corner and instead focus on creating flow between spaces. Think of your home as a story – each room should naturally lead to the next.
Popular Design Styles for 1800 Sq Ft Homes

Design style matters because it shapes how you live and feel in your space. Here are some trending approaches:
Each style brings different benefits. A modern farmhouse might appeal to those who want both comfort and visual interest, while a minimalist approach suits people who prefer clean lines and fewer distractions. Your choice should reflect your lifestyle and how you want to spend time in your home.
Smart Room Placement Strategies
Where you place rooms makes a huge difference in daily life. Here's how to think about it:

The kitchen often becomes the heart of the home, so make sure it flows naturally with other common areas. Bedrooms should provide privacy and quiet. When you think about how you move through your day, you'll start to see where certain rooms belong.
Maximizing Space Efficiency
In 1800 sq ft, every square foot counts. Here are ways to get the most out of your space:
These strategies aren't just about looking good – they're about living better. You want to feel comfortable and organized, not overwhelmed by clutter or cramped quarters. A well-designed home should support your lifestyle, not hinder it.

Cost Considerations and Budget Planning
Budgeting for a 1800 sq ft home involves more than just construction costs. Here's what to expect:
Keep in mind that 1800 sq ft is generally affordable compared to larger homes, but costs can vary significantly based on location, materials chosen, and design complexity. Start with a realistic budget and build flexibility into your plan. Sometimes, the best decisions come from knowing what you can't afford upfront.
Future-Proofing Your Home Design

Planning ahead helps ensure your home stays useful as your needs change. Consider these future-proofing elements:
Think about your life five or ten years from now. Will you need a home office? Do you want to age in place? These questions help shape how you approach your home's design today.
Real-Life Examples and Inspiration
Here are some real-world examples that showcase what 1800 sq ft can accomplish:
These homes demonstrate that size isn't everything. With careful planning and creative thinking, you can have everything you need in a space that feels comfortable and personal.
Designing a 1800 sq ft home isn't about fitting everything into a small space – it's about choosing what matters most and making every part work together. From layout decisions to design choices, every element should support how you want to live. Remember, the best house plans are those that reflect your personality and meet your real-life needs. Whether you're dreaming of a cozy family home or a stylish retreat, 1800 sq ft offers the perfect canvas for your unique vision. Take your time with the process, and trust that thoughtful planning leads to a home that truly feels like yours.