When it comes to housing, 1500 square feet strikes that perfect balance between spacious comfort and manageable maintenance. It's not too small to feel cramped, nor too large to feel overwhelming. This size offers homeowners the chance to create a functional, beautiful living space without breaking the bank.
Picture this: you've just moved into your dream home, and it's exactly 1500 square feet. That's right - not 1200, not 1800, but precisely 1500 square feet. You might be thinking, 'That's not much space!' But hear us out. This size category has become incredibly popular among modern families and young professionals. Why? Because it's just enough to live comfortably while being affordable to maintain. Whether you're planning a new build or redesigning your existing space, understanding how to work with 1500 square feet can transform your daily life. It's the sweet spot that allows for thoughtful design choices and smart storage solutions.

Why 1500 Square Feet Works So Well
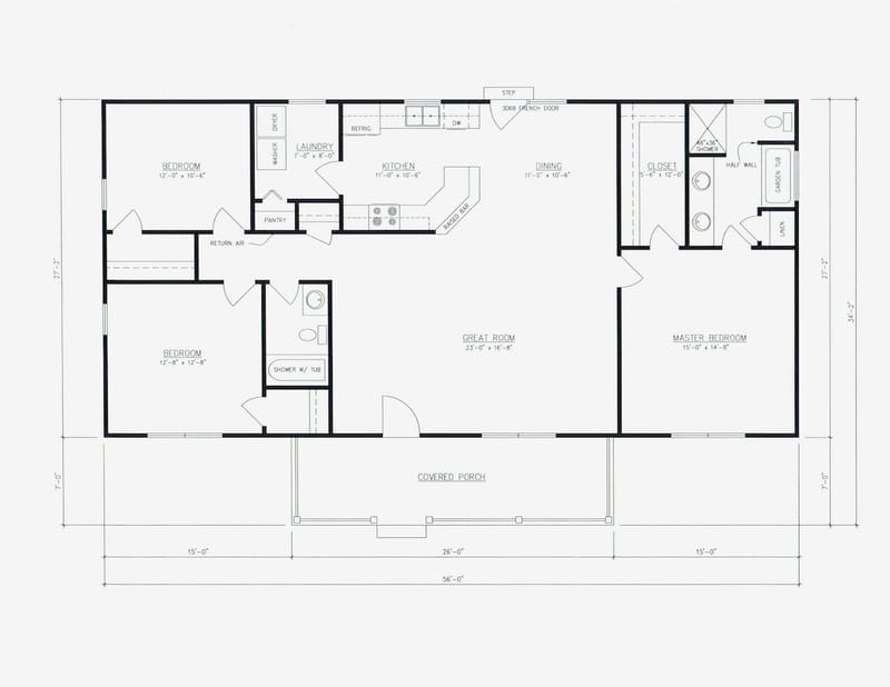
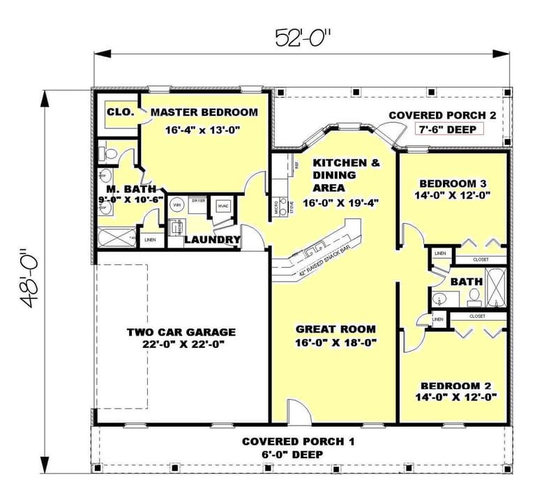
This particular square footage isn't just a random number chosen by architects. It's actually a practical size that many people find appealing. Think about it - you get enough room for all the essential areas without feeling like you're paying for unused space. A 1500 sq ft home typically includes two to three bedrooms, a kitchen, dining area, living room, and bathroom. It's spacious enough for entertaining guests but small enough to heat and cool efficiently. Many people find this size ideal for their lifestyle. For instance, a couple with one child might find it perfect for having a home office, a guest room, and a cozy family space. Meanwhile, a single professional might enjoy the flexibility of a separate workspace and a comfortable living area. The key is understanding how to make the most of each square foot.

Essential Layout Considerations
Layout matters enormously when working with 1500 square feet. The way you arrange your rooms can either make your space feel airy and open or cramped and cluttered. Open floor plans are particularly effective because they make smaller spaces feel larger. Imagine combining your living room and dining area into one big space - suddenly, your home feels more welcoming and less compartmentalized. Another important factor is traffic flow. Every doorway, hallway, and corner needs to allow easy movement between spaces. When designing your layout, consider how you move through your home daily. Do you need a dedicated workspace? Will you entertain often? These questions help determine where to place your main areas. Also, think about privacy. Even in a smaller space, you want to ensure bedrooms have some separation from common areas. Strategic placement of bathrooms and closets can significantly impact how well your space functions.

Smart Storage Solutions
Storage is where 1500 square feet really shines. With careful planning, you can maximize your storage capacity while keeping your home looking clean and organized. Built-in shelving systems are fantastic for making the most of vertical space. Think about tall bookcases that reach from floor to ceiling in your living room or bedroom. They provide plenty of storage without taking up valuable floor space. Under-stair storage is another clever idea. If your home has stairs leading to a second floor, those often-unused spaces can become excellent storage areas. Multi-functional furniture is also crucial. A coffee table with hidden storage, a dining table that doubles as a work surface, or a sofa bed that converts to extra sleeping space can dramatically increase your usable space. Don't forget about closet organization. Consider custom organizers, shelf dividers, and hanging systems to make every inch count. The goal is to keep everything you need within reach while maintaining a tidy appearance.

Creating Functional Zones
One of the biggest challenges with 1500 square feet is creating distinct zones within a limited space. You don't want your kitchen to blend into your living room so much that you can't tell where one ends and the other begins. Using furniture arrangements and rugs can define different areas. For example, placing a dining table in one corner creates a distinct eating zone. A comfortable seating arrangement in another area forms a living space. You might even use lighting to help differentiate zones. Different light fixtures or bulb types can signal shifts in function. Consider using dimmer switches to create different moods for various activities. A bright overhead light might be perfect for cooking, while softer, warmer lighting works better for reading or relaxing. Remember, the key is making each area feel intentional rather than just part of a larger space. This approach helps prevent your home from feeling generic or unfocused.

Natural Light and Visual Space
Lighting plays a huge role in how spacious your 1500 square feet feels. Natural light makes everything seem bigger and more welcoming. Large windows, skylights, and glass doors can dramatically improve the feeling of openness. If your home lacks natural light, consider adding mirrors strategically to reflect available light around the room. Light colors on walls and ceilings also help make spaces appear larger. White, cream, or soft pastels work wonderfully in smaller homes. However, don't let the color scheme feel flat. Add texture through fabrics, artwork, and accessories. These elements bring visual interest without making the space feel cluttered. Remember that every element in your room should serve a purpose. Choose pieces carefully, focusing on quality over quantity. A statement piece of furniture can anchor a room perfectly, while multiple small items might overwhelm the space. The overall effect should be airy and uncluttered, even with all your belongings.
Cost-Effective Design Tips
Working with 1500 square feet doesn't mean you have to spend a fortune. There are plenty of budget-friendly ways to create a beautiful, functional home. Start with the basics - paint is cheap and can completely change a room's feel. A fresh coat of white paint can make even the smallest room appear larger. DIY projects can add personality without breaking your wallet. Consider making your own wall art or building simple shelves. Shopping at discount stores, estate sales, or online marketplaces can yield unique finds at reasonable prices. Focus on quality pieces that will last instead of trendy items that may go out of style quickly. For example, investing in good quality bedding and curtains can make a huge difference in comfort and appearance. Reusing items from previous homes or borrowing from friends can also save money. Remember, the most important thing is creating a space that feels like home. That's something that costs nothing but takes time and thought to achieve.
The magic of 1500 square feet lies in its perfect balance of functionality and efficiency. It's not just about the numbers on paper - it's about creating a space that supports your lifestyle. Whether you're planning a new home or redesigning your current one, remember that every square foot counts. Smart planning, creative storage solutions, and thoughtful design choices can transform your space into something truly special. The key isn't to make it perfect - it's to make it feel like home. After all, a house is meant to be lived in, not just admired. So take these ideas, adapt them to your needs, and start making your 1500 square feet work for you. The result will be a space that feels both spacious and personal, efficient yet inviting. Your future self will thank you for choosing to optimize every inch of your home.