Imagine walking into your new home and feeling completely at ease. Every room flows perfectly into the next, every corner serves a purpose, and there's no wasted space. That's exactly what a well-designed 1500 square foot house can offer. Whether you're planning your first home, downsizing, or simply want a cozy space that feels spacious, this guide will walk you through the essential elements of creating the perfect 1500 square foot plan.

When it comes to home design, 1500 square feet strikes that perfect balance between manageable size and comfortable living. It's not so small that you feel cramped, yet not so large that maintaining it becomes overwhelming. This sweet spot appeals to many different lifestyles – young professionals, empty nesters, retirees, or families looking for something more affordable. The key lies in smart planning, thoughtful layouts, and making every inch count. Let's explore how to maximize this space while keeping things practical and beautiful.

Why 1500 Square Feet Works for Most People

house plans for 1500 square foot house 1

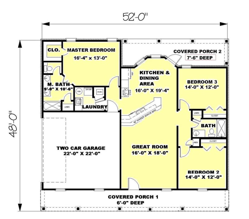
There's something special about 1500 square feet that makes it incredibly appealing. It's large enough to accommodate multiple rooms and activities, but small enough to manage easily. Think about it – most people don't need a mansion to feel comfortable. A 1500 square foot home can comfortably house a kitchen, dining area, living room, two bedrooms, a bathroom, and even a home office or hobby room. For many, this size represents the sweet spot between affordability and functionality. You won't find yourself constantly cleaning or worrying about heating costs, yet you still have room for all your belongings and personal touches. The magic happens when you consider how much can actually fit in this space, especially when you think beyond just square footage.

Essential Room Layouts for 1500 Square Feet

Planning your rooms is like creating a puzzle where each piece must fit perfectly. Here are some popular configurations that work beautifully in 1500 square feet:

  • Open Concept Living: Combine the kitchen, dining, and living areas into one large space. This creates a sense of spaciousness and allows for easy conversation and movement.
  • Traditional Layout: Separate rooms with walls or doors, giving each area its own identity. This works well if you prefer more defined spaces.
  • Master Suite with Walk-in Closet: One bedroom with a private bathroom and closet gives you that luxury feel without taking up too much space.
  • Flex Spaces: Include a room that can serve multiple purposes – perhaps a guest room that doubles as a home office or a den that transforms into a playroom. These adaptable spaces are incredibly valuable in smaller homes.
  • house plans for 1500 square foot house 2

    Key Design Principles for Small Space Living

    Designing for 1500 square feet means being strategic about every element. Here are some fundamental principles:

  • Maximize Vertical Space: Install tall shelves, use wall-mounted storage, and choose furniture that draws the eye upward. This makes ceilings appear higher and creates more usable space.
  • Use Multi-functional Furniture: Look for pieces that serve more than one purpose. A coffee table with hidden storage, a dining table that folds away, or a sofa bed that can double as guest sleeping space.
  • Light Colors and Natural Light: Lighter colors reflect light better, making rooms feel larger and brighter. If possible, position windows strategically to let in natural light.
  • Keep It Simple: Less clutter means more space. Choose fewer, quality items over many cheap alternatives. This approach helps maintain that open, airy feeling throughout your home.
  • Popular Floor Plan Configurations

    house plans for 1500 square foot house 3

    Different floor plan styles can completely change how your 1500 square foot home feels and functions. Here are some tried-and-true options:

  • L-Shape Layout: This design uses the corner of your home efficiently, often featuring a kitchen and dining area that flow naturally together. It's great for homes with a view or those wanting to maximize natural light.
  • U-Shape Configuration: When you have a longer hallway or entryway, a U-shape layout can create distinct zones within the space. It's excellent for homes with multiple bedrooms.
  • Center Hall Plan: This classic arrangement puts the main living areas in the center with bedrooms arranged on either side. It provides good privacy and efficient traffic flow.
  • Split-Level Design: Though less common, this style can be very effective in certain lots. It creates distinct levels that add visual interest while maximizing usable space.
  • Smart Storage Solutions for Compact Living

    Storage in a 1500 square foot home requires creativity and smart thinking. Here are some solutions that make a big difference:

  • Under-Stair Storage: If you have stairs leading to another level, consider using that space for storage. It's often overlooked but can hold a surprising amount of items.
  • Built-In Shelving: Custom-built shelves that follow the shape of your walls eliminate wasted space and provide organized storage.
  • Hidden Storage: Incorporate storage into furniture pieces like beds with drawers underneath, or cabinets disguised as part of the wall. These solutions keep your home looking clean while providing extra storage.
  • Vertical Storage Systems: Install tall, narrow storage units that reach from floor to ceiling. They're perfect for books, seasonal items, or anything you want to keep off the floor.
  • house plans for 1500 square foot house 4

    Budget Considerations and Cost Savings

    Building or renovating a 1500 square foot home doesn't have to break the bank. Here are ways to stay within budget while achieving your dream space:

  • Choose Quality Over Quantity: Invest in key elements like flooring, cabinetry, and appliances that will last longer. These are areas where you'll see daily use and benefit from durability.
  • Plan for Future Changes: Think ahead about what might change in your life – maybe you'll have children, or perhaps you'll want to work from home. Planning around potential changes can save money later.
  • Do Some Work Yourself: If you have basic DIY skills, consider tackling painting, installing fixtures, or simple renovations yourself. This can significantly reduce labor costs.
  • Prioritize What Matters Most: Decide which features are non-negotiable and allocate your budget accordingly. You might spend more on a beautiful kitchen while choosing simpler finishes elsewhere.
  • Making Your 1500 Square Foot Home Feel Larger

    house plans for 1500 square foot house 5

    The perception of space is just as important as actual square footage. Here are techniques to make your 1500 square feet feel expansive:

  • Create Visual Continuity: Use similar colors, textures, or materials throughout connected spaces to create a seamless flow. This trick makes rooms feel like they merge rather than end abruptly.
  • Strategic Lighting: Layer lighting with overhead, task, and accent lights. This creates depth and dimension, making even small rooms feel bigger.
  • Mirrors: Place mirrors strategically to reflect light and create the illusion of more space. A large mirror in a hallway or entryway can dramatically change how your home looks.
  • Declutter Regularly: This seems obvious but is crucial. Keep only what you love and use regularly. The less clutter, the more breathing room your space will have.
  • Real-World Examples and Inspiration

    Looking at actual examples can spark ideas for your own project. Here are some real-world scenarios that showcase how 1500 square feet can work beautifully:

  • Modern Minimalist Home: Features clean lines, neutral colors, and built-in storage. The emphasis is on function over form, with every item serving a purpose.
  • Cozy Family Retreat: Includes a large kitchen island, family room with built-in bookcases, and a master suite with a private bathroom. Everything feels welcoming and lived-in.
  • Work-from-Home Haven: Designed with a dedicated office space, flexible seating areas, and plenty of natural light. Perfect for remote workers who need both focus and comfort.
  • Retirement Paradise: Features wide doorways for accessibility, low maintenance materials, and comfortable spaces for entertaining. Everything is designed for ease of living.
  • Final Tips for Success

    Creating your ideal 1500 square foot home takes time and thoughtfulness. Remember these final pointers:

  • Start with Your Lifestyle: Before sketching any plans, think about how you live day-to-day. Do you entertain often? Do you need quiet spaces for work? Understanding your habits guides your design choices.
  • Consider Future Needs: Think about whether you'll want to add family members, pets, or adjust for aging gracefully. Planning ahead prevents costly renovations later.
  • Work with Professionals: Even if you're designing yourself, consulting with architects or interior designers can help avoid common pitfalls and ensure your vision comes to life.
  • Embrace Flexibility: Allow for some changes as you get settled. Your first few months in a new home might reveal unexpected needs or preferences that weren't apparent during planning.
  • A 1500 square foot home isn't just about the numbers on a blueprint – it's about creating a space that truly reflects your life and supports your daily routines. When you carefully plan each room, thoughtfully choose your materials, and embrace smart design strategies, you can transform this space into something extraordinary. Whether you're building a new home or renovating an existing one, remember that the goal isn't to fill every inch with furniture or décor. Instead, focus on creating areas where you want to spend time, ensuring that every part of your 1500 square feet contributes to your happiness and well-being. With the right approach, your compact home can feel spacious, comfortable, and uniquely yours.