When you think about creating a home that's both functional and inviting, a 1500 square foot layout offers the perfect balance between spaciousness and manageability. This size isn't too small to feel cramped, nor too large to become overwhelming. It's that sweet spot where every inch counts, and every room tells a story.

Imagine stepping into a home where everything feels just right. Not too tight, not too expansive, but perfectly suited to your lifestyle. That's what a well-designed 1500 square foot house can offer. Whether you're planning your first home, downsizing, or building a vacation retreat, this space size presents unique opportunities and challenges. We'll explore how to maximize every corner of this versatile space, turning it into a haven that reflects your personality while meeting all your practical needs.

Understanding the 1500 Square Foot Advantage

A 1500 square foot home strikes a magical balance. It's big enough to include multiple rooms without feeling cavernous, yet small enough to maintain warmth and intimacy. Think about it - you have roughly 1500 square feet to work with, which means you can create spaces that serve multiple purposes. For instance, a living room could double as a family room, or a dining area might blend seamlessly into the kitchen. This flexibility makes 1500 sq ft ideal for young families, couples, or anyone looking for a manageable yet spacious living environment.

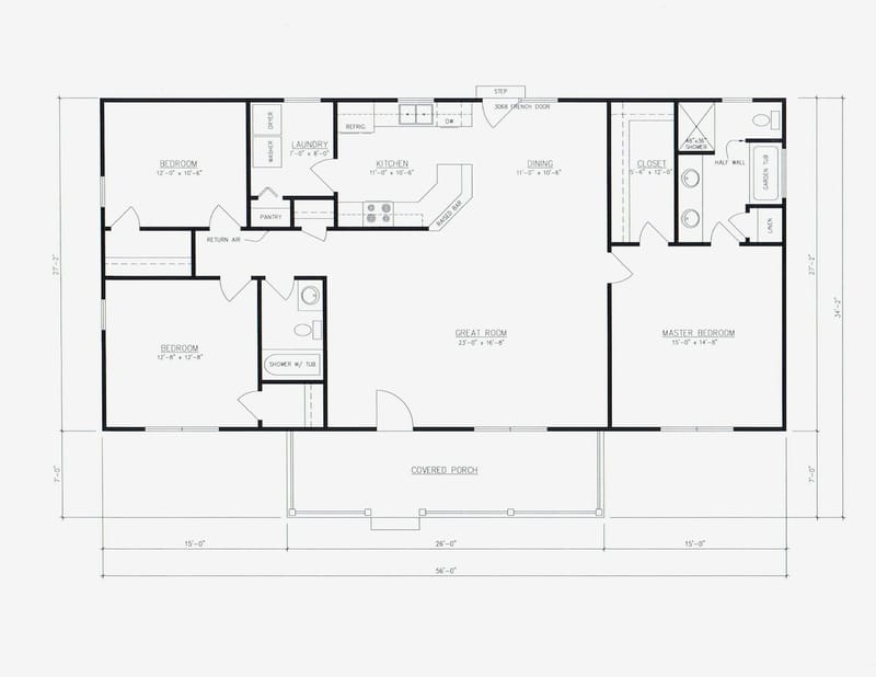
house plan of 1500 sq ft 1

The key is smart design. You want to avoid the common mistake of simply scaling up smaller floor plans. Instead, focus on efficiency and flow. Consider open-concept layouts that naturally connect spaces. This approach makes the home feel larger than its actual measurements suggest. Many successful 1500 sq ft designs feature a central gathering area that ties together different zones of the house.

Essential Room Layouts for Maximum Functionality

Planning your rooms carefully is crucial when working within a 1500 square foot constraint. Here are some proven approaches:

  • Open Concept Living Areas: Combine your kitchen, dining, and living spaces into one flowing area. This creates visual space and allows for better interaction between family members.
  • Efficient Kitchen Design: With limited space, every inch matters. Consider L-shaped or U-shaped kitchen layouts that maximize storage and workflow. Built-in appliances can save valuable counter space.
  • Strategic Bedroom Placement: Position bedrooms away from high-traffic areas like the main living spaces. This ensures privacy and quiet for sleeping areas. In a 1500 sq ft home, two bedrooms often work best, allowing for a master suite and guest bedroom.
  • Multi-Purpose Spaces: Design rooms that can serve various functions. A study could be used for work during the day and as a guest room at night. A sunroom might provide a peaceful reading nook in winter and an outdoor entertaining space in summer.
  • These layouts help create a sense of spaciousness even within the limitations of 1500 square feet.

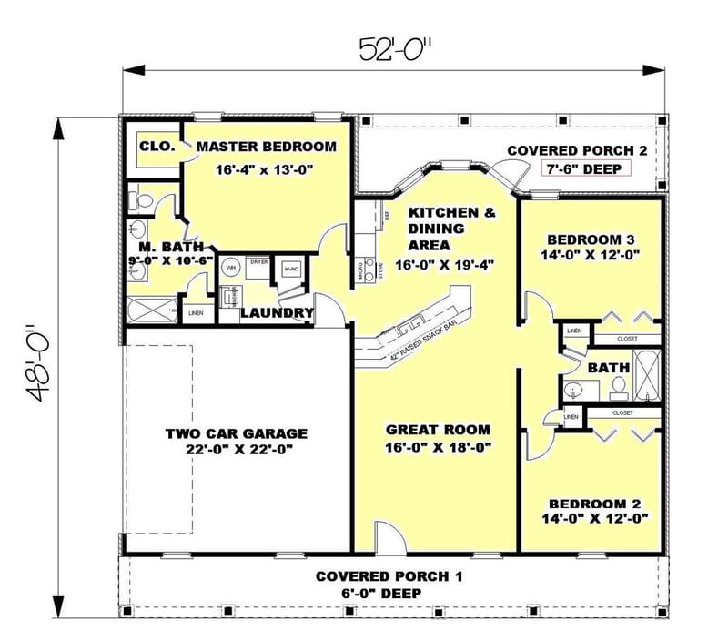
    house plan of 1500 sq ft 2

    Smart Storage Solutions for Compact Living

    Storage is often the biggest challenge in smaller homes. But clever solutions can transform your 1500 sq ft into a clutter-free paradise. Here's how:

  • Vertical Storage: Take advantage of wall space with tall shelving units, built-in cabinets, and storage towers. These solutions keep items off the floor and out of sight.
  • Under-Stair Storage: If your home has stairs, those usually unused spaces can hold lots of things. Install drawers or shelves beneath the staircase for extra storage.
  • Hidden Storage: Look for furniture pieces that incorporate storage. Beds with drawers underneath, ottomans that open to reveal storage compartments, and coffee tables with hidden trays.
  • Multi-Functional Furniture: Choose pieces that serve more than one purpose. A dining table that folds away, a sofa bed for guests, or a bench with storage inside.
  • Walk-In Closets: Even in a 1500 sq ft home, consider dedicating space to a walk-in closet. This helps organize clothes and reduces clutter in bedrooms.
  • The secret is thinking beyond traditional storage methods and embracing creative solutions.

    Lighting and Space Optimization Techniques

    house plan of 1500 sq ft 3

    Good lighting can make or break a 1500 square foot home. Properly designed lighting not only illuminates spaces but also influences how they feel. Here's how to get the most from your lighting setup:

  • Layered Lighting: Use multiple light sources - ambient, task, and accent lighting. Ambient lighting provides general illumination, task lighting focuses on work areas, and accent lighting highlights features.
  • Natural Light Maximization: Large windows, skylights, and glass doors bring in daylight that makes spaces feel larger and more welcoming. Consider placing living areas near windows whenever possible.
  • Mirrors for Visual Expansion: Strategically placed mirrors reflect light and create the illusion of more space. A large mirror in the entryway or hallway can dramatically change how a room appears.
  • Consistent Color Palette: Lighter colors on walls and ceilings bounce light around, making rooms appear bigger. Stick to a cohesive color scheme throughout the home.
  • Smart Window Treatments: Choose window coverings that allow maximum light in during the day and privacy at night. Blinds and sheer curtains work particularly well in smaller homes.
  • These techniques help make your 1500 sq ft feel airy and open rather than confined.

    Budget-Friendly Design Strategies

    Building or renovating a 1500 square foot home doesn't have to break the bank. Here are ways to stay within budget while still achieving great results:

  • Prioritize High-Impact Changes: Focus on improvements that make the biggest difference, such as updating the kitchen, bathroom, or flooring. These areas often provide the best return on investment.
  • DIY Projects: Take on tasks you can handle yourself, like painting, installing fixtures, or assembling furniture. This saves labor costs while giving you satisfaction from doing it yourself.
  • Quality Over Quantity: Invest in quality materials for high-use areas like floors, countertops, and fixtures. These elements will last longer and look better over time.
  • Repurpose Existing Elements: Look for ways to reuse items you already have. Old barn wood can become a stunning accent wall, and vintage furniture can add character to new spaces.
  • Plan for Future Needs: Consider how your lifestyle might change over the next few years. Design with flexibility in mind so you won't need major renovations later.
  • house plan of 1500 sq ft 4

    The key is being strategic about spending. Every dollar invested wisely contributes to a beautiful, functional home.

    Real-World Examples and Inspiration

    Looking at actual 1500 square foot homes can provide valuable inspiration. Many successful designs feature:

  • Modern Minimalist Approaches: Clean lines, neutral colors, and simple furnishings create a calm atmosphere. These homes often have fewer decorative elements but are highly functional.
  • Rustic-Chic Styles: Combining natural materials like wood and stone with modern amenities creates a cozy yet sophisticated feel. Think exposed beams, brick accents, and warm lighting.
  • Contemporary Open Plans: These homes emphasize fluidity between spaces. Kitchen islands serve as gathering points, while living areas flow seamlessly into dining spaces.
  • Customized Features: Many homeowners personalize their 1500 sq ft homes with special touches. A dedicated home office, a cozy reading nook, or a craft room can make the space uniquely theirs.
  • Outdoor Integration: Many successful designs incorporate outdoor living spaces that extend the usable area of the home. Patios, decks, and gardens become extensions of indoor living.
  • Studying these examples helps visualize how different design choices can transform a 1500 square foot space into something truly special.

    house plan of 1500 sq ft 5

    Common Mistakes to Avoid in 1500 Square Feet

    Even experienced designers sometimes fall into traps when working with 1500 square feet. Here are the most frequent errors to watch out for:

  • Overcrowding with Furniture: Small spaces need careful furniture selection. Too many pieces can make rooms feel cramped and chaotic. Choose multipurpose furniture and keep the number of large items minimal.
  • Ignoring Flow and Traffic Patterns: Every room should have clear pathways for movement. Plan where people will walk when entering and exiting each space. Avoid placing furniture in ways that block natural movement.
  • Poor Storage Planning: Without adequate storage, a 1500 sq ft home quickly becomes cluttered. Plan storage solutions before selecting furniture and décor. Consider how much you actually need to store in each room.
  • Neglecting Natural Light: Dark, poorly lit rooms can make even 1500 square feet feel small. Maximize available windows and consider adding supplemental lighting to brighten dark corners.
  • Forgetting Personal Needs: Don't design a home that looks good on paper but doesn't meet your actual lifestyle requirements. Think about how you live, work, and relax in your daily routine.
  • Avoiding these pitfalls leads to a more comfortable and enjoyable living experience.

    Future-Proofing Your 1500 Square Foot Home

    A well-designed 1500 square foot home should evolve with your life. Consider these factors for long-term success:

  • Flexibility in Room Usage: Design spaces that can adapt as your needs change. A room that starts as a child's playroom might later become a teen's study or a guest bedroom.
  • Technology Integration: Plan for future tech upgrades. Consider wiring for smart home systems, additional electrical outlets, and internet connectivity throughout the home.
  • Accessibility Features: Incorporate features that make the home easier to navigate as you age. Ramps, wider doorways, and accessible bathrooms can improve safety and independence.
  • Energy Efficiency: Choose energy-efficient appliances and lighting. These reduce utility bills and contribute to environmental sustainability.
  • Maintenance Considerations: Select durable materials and finishes that will withstand regular use. Easy-to-clean surfaces and low-maintenance options make daily living easier.
  • Thinking ahead ensures your 1500 square foot home remains comfortable and functional for years to come.

    Designing a 1500 square foot home is both an art and a science. It requires careful consideration of space, function, and personal style. When done right, this size creates an environment that's both practical and pleasant. The key lies in thoughtful planning, smart choices, and understanding that less can indeed be more. Whether you're building a new home or renovating an existing one, remember that every square foot has potential. Focus on what matters most to you, prioritize comfort and functionality, and let your personality shine through every detail. A well-executed 1500 sq ft plan can become the foundation of a wonderful, lasting home that brings joy year after year.