Imagine coming home to a spacious, thoughtfully designed house that perfectly fits your family's needs. A 6 bedroom single story home isn't just about having extra rooms – it's about creating a lifestyle that works for everyone. Whether you're planning for growing children, aging parents, or simply want more space for guests, these homes offer incredible flexibility and comfort.
When it comes to family housing, few things capture the imagination quite like the idea of a spacious, single-story home with six bedrooms. These designs have become increasingly popular because they offer something special: convenience, accessibility, and freedom from stairs. Picture waking up in your master suite, walking to the kitchen for breakfast, then heading to your office or study without climbing a single step. That's the magic of a well-designed 6 bedroom single story house plan.
This guide will walk you through everything you need to know about designing and choosing the right layout for your dream home. We'll explore how to maximize every inch of space while keeping functionality at the forefront. From floor plan basics to practical considerations, we've got you covered.
Why Choose a Single Story Layout?
Single story homes have a special appeal that goes beyond simple convenience. For families with young kids, elderly members, or anyone dealing with mobility issues, one level means no stairs to navigate. This design philosophy makes daily life smoother and safer for everyone in the household.
The open concept nature of many single story layouts creates a sense of spaciousness that's hard to match. You'll find that these homes often feature larger living areas, more natural light, and better flow between different zones. Consider a family gathering in the main living area – everyone can move freely without worrying about navigating steps or finding quiet spaces.

Many modern 6 bedroom single story plans incorporate smart storage solutions and multi-functional rooms that adapt to changing family needs over time. These homes are built to grow with you, offering flexibility that's often impossible in multi-level designs.
Essential Room Arrangements
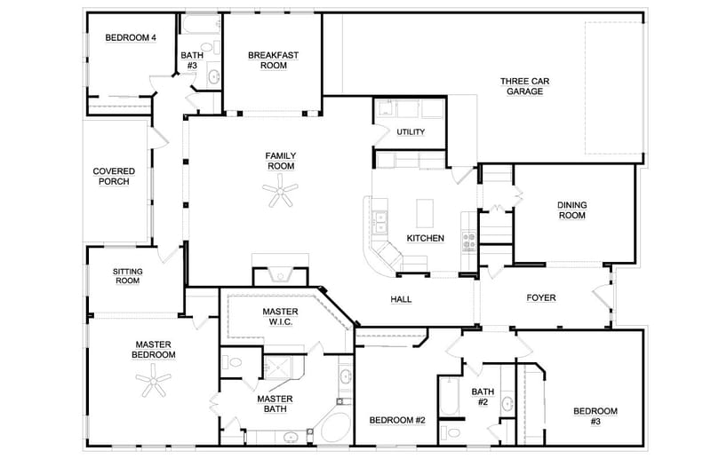
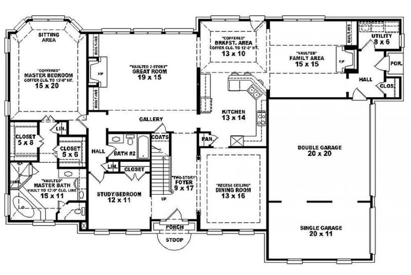
Creating the perfect 6 bedroom layout requires careful thought about room placement and flow. The most common approach places bedrooms on one side of the home while living areas occupy the other, leaving central spaces for kitchen, dining, and common areas.
Here's how to think about the key areas:
A typical arrangement might place the master bedroom at one end, followed by three standard bedrooms, with two smaller bedrooms or studies at the opposite end. This setup allows for quiet zones while keeping family areas accessible.
Space Optimization Strategies

Maximizing every square foot becomes crucial when designing a 6 bedroom home. Smart planning can make the difference between feeling cramped and feeling spacious.
Consider these space-saving techniques:
One effective strategy involves using a hallway or transition area to separate different zones while maintaining visual connection. This approach keeps the home feeling open while providing logical separation between private and public spaces.
Another smart move is incorporating a mudroom or entryway that doubles as storage space. This area can hold coats, shoes, and bags while serving as a buffer zone between outside and inside living areas.
Popular Floor Plan Configurations
There are several proven configurations that work well for 6 bedroom single story homes. Each has its own advantages depending on your lifestyle and preferences.

The most common layouts include:
The front-to-back configuration offers excellent privacy, with bedrooms separated from common areas. This setup works particularly well for families with different schedules or those needing quiet study spaces.
The U-shaped layout provides a more intimate feel, bringing all rooms closer together while still allowing for good flow. It's ideal for homes where family interaction is important.
Consider how you actually use your space when choosing a layout. Do you entertain frequently? Do you need quiet areas for work or reading? These factors influence which configuration suits you best.
Practical Design Considerations
Beyond aesthetics, there are practical elements that make or break a successful 6 bedroom home. These considerations often determine how well your house will meet your daily needs.

Key factors to evaluate:
Think about your family's routines and habits. If you're a morning person, perhaps position your master suite near windows for early morning light. If you cook frequently, ensure your kitchen flows naturally to dining and living areas.
Also consider the practical aspects of having six bedrooms. How will you manage cleaning and maintenance? Will you use all bedrooms regularly, or are some meant for occasional visitors? These answers shape how you design each space.
Cost and Value Factors
Building or buying a 6 bedroom single story home involves more than just the obvious costs. Understanding the financial landscape helps you make informed decisions about your investment.
Important cost elements include:

The average cost per square foot for a 6 bedroom single story home ranges significantly based on location, materials, and finishes. Generally, expect higher costs in urban areas and regions with expensive building materials.
Consider the long-term value of your investment. Well-designed homes with good layouts often appreciate faster than those with poor planning. Features like natural light, efficient floor plans, and quality construction typically provide the best return on investment.
Remember that while a 6 bedroom home may seem expensive upfront, it could save money in the long run through reduced energy costs, lower maintenance, and increased resale value.
A 6 bedroom single story home represents more than just square footage – it's about creating a living environment that supports your family's unique needs and lifestyle. Whether you're planning to build or looking to purchase, understanding the key principles of design and functionality will help you make the best choice.
The beauty of these homes lies in their versatility. They can accommodate growing families, provide space for aging parents, or serve as comfortable retreats for extended visits. With thoughtful planning, you can create a space that feels both grand and cozy, spacious yet intimate.
Remember that every family is different, so take time to consider how you actually live, work, and interact with others. The right 6 bedroom single story plan will reflect your values and priorities, making it not just a house but a true home. The investment you make in thoughtful design today will pay dividends for years to come.