Picture this: you're standing in your newly designed home, feeling the warmth of every room, the flow between spaces, and the perfect balance of privacy and connection. For many families, the dream home starts with a well-thought-out 4 bedroom single story floor plan. It's not just about having four bedrooms – it's about creating a space that works for your lifestyle, your family's needs, and your future.
When you're planning a new home or considering a renovation, the layout becomes the foundation of everything that follows. A 4 bedroom single story floor plan offers something special – the simplicity of one level, the flexibility of multiple bedrooms, and the convenience that comes with easy access to all areas of your living space. Whether you're a growing family, a young professional, or someone looking to age in place, understanding how to design and choose the right floor plan can make all the difference in your daily life. Let's explore what makes these layouts so appealing and how to make them work perfectly for your situation.
Why Choose a Single Story Layout?
Single story homes have a timeless appeal that continues to attract homeowners across different demographics. The obvious advantage is accessibility – no stairs means easier movement for everyone, especially aging parents or those with mobility challenges. Think about it: morning routines become smoother when you don't have to navigate steps to reach the master suite or kids' bedrooms. There's also the practical benefit of reduced maintenance costs since there's only one level to keep clean and maintained.
But it's not just about practicality. These homes often feel more spacious because they maximize horizontal space rather than vertical. You'll find that the open concept design works beautifully with a 4 bedroom single story layout. The kitchen, dining, and living areas can flow together seamlessly, creating a sense of airiness and connection that's hard to achieve in multi-level homes. Many people find that they spend more time in common areas when there's no need to climb stairs to join family members.

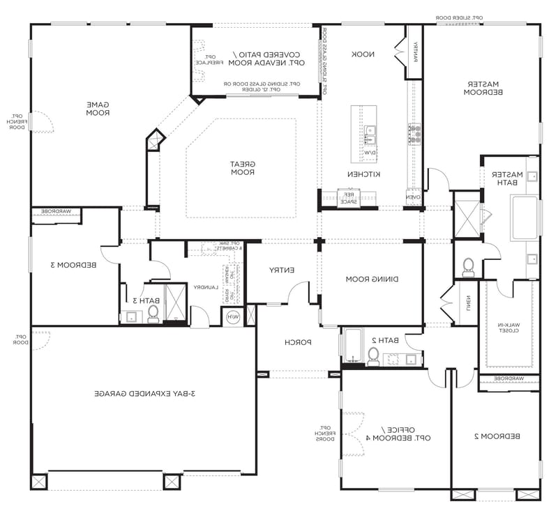
Key Elements of Effective 4 Bedroom Floor Plans
A successful 4 bedroom single story floor plan balances functionality with aesthetics. Here are the essential components:
The most popular arrangements often feature two bedrooms on one side of the home and two on the other. This creates natural separation between family areas and guest zones. Some layouts even include a dedicated study or office space, which has become increasingly important with remote work trends.
Common Layout Configurations Explained
There are several proven configurations that work well for 4 bedroom single story homes. Each has its own strengths and can be adapted based on lot size, orientation, and personal preferences.

The L-Shaped Design - This layout features a main block with bedrooms on one side and the living areas on another, forming an L-shape. It's excellent for homes with irregular lots and provides good separation between private and public spaces.
The Linear Layout - Rooms line up in a straight line, usually from front to back. This simple arrangement works well for smaller lots and allows for efficient use of space. The kitchen often sits at the center with bedrooms on either side.
The Central Hub Design - In this approach, the heart of the home (kitchen, dining, and living) is positioned in the middle, with bedrooms branching off in various directions. It's ideal for homes with large lots and offers great flow for entertaining.
Each configuration has advantages depending on your specific needs. Some prioritize privacy, others focus on maximizing natural light, and still others emphasize easy family communication. Understanding these differences helps you make informed decisions during the design phase.
Practical Considerations for Family Living

A well-designed 4 bedroom single story home should accommodate the unique needs of each family member. This means thinking beyond just square footage and considering how people actually live in their space.
Privacy vs. Connection - The master suite should offer complete privacy while remaining close enough to the rest of the house for easy communication. Kids' bedrooms benefit from being near bathrooms but far enough from the main living areas to allow for independent activities.
Natural Light and Ventilation - Bedrooms ideally face east or west to catch morning or evening sun. The kitchen and living areas should have views toward the backyard or garden to create a sense of openness.
Traffic Flow - Consider how people move through the home. High-traffic areas like hallways and entryways should be wide enough for comfortable passage. The kitchen island or breakfast bar becomes a natural gathering point for family interactions.
Future Flexibility - As children grow, their needs change. Having adaptable spaces that can serve as playrooms, home offices, or guest quarters adds significant value to your investment.

Design Trends That Are Shaping Modern Homes
Contemporary design trends continue to influence how we think about 4 bedroom single story floor plans. These trends reflect changing lifestyles and priorities, making homes more functional and connected than ever before.
Open Concept Living - Gone are the days of separate, boxed-off rooms. Today's homes favor fluid spaces where the kitchen flows into the living area, creating a more communal atmosphere. This design philosophy works exceptionally well in single story layouts.
Smart Home Integration - Technology isn't just about gadgets anymore – it's about seamless integration. Smart lighting, thermostats, and security systems can be built into the design from the start, making homes more convenient and energy-efficient.
Sustainable Features - Energy efficiency, water conservation, and eco-friendly materials are now standard considerations. Solar panels, low-flow fixtures, and sustainable building practices can be incorporated into any floor plan without compromising aesthetics.

Multi-Functional Spaces - The modern home needs to do more than just provide shelter. It should offer places for working, relaxing, entertaining, and nurturing relationships. A home office might double as a guest room, while a breakfast nook could serve as a casual dining area.
Maximizing Space and Value
Creating a 4 bedroom single story home that feels spacious and valuable requires careful attention to both interior and exterior design elements. The goal is to make the most of every square foot while ensuring that the house maintains its appeal for potential buyers if you ever decide to sell.
Vertical Space Utilization - Even though there's only one level, you can maximize space through strategic ceiling heights, vaulted ceilings in living areas, and clever storage solutions. Built-in shelving, attic storage, and under-stair storage can add significant usable space.
Outdoor Living Areas - The outdoor space extends the indoor experience. Porches, decks, patios, and gardens should complement the indoor layout. A covered porch can serve as a transition space between inside and outside, while a backyard deck might become the heart of family gatherings.
Quality Over Quantity - Investing in high-quality materials and finishes pays dividends in both comfort and resale value. Well-designed cabinetry, durable flooring, and thoughtful lighting choices create a cohesive look that stands the test of time.
Budget Planning - When designing or renovating, consider how much you want to invest in each area. Prioritize spaces that will see the most use, such as the kitchen and bathrooms, while allocating reasonable budgets to less-used areas like mudrooms or utility rooms.
A 4 bedroom single story floor plan represents more than just a way to organize rooms – it's a foundation for creating a home that supports your lifestyle, adapts to your family's needs, and stands the test of time. Whether you're starting from scratch or remodeling an existing space, the principles of good design remain constant: prioritize functionality, consider how people will actually live in the space, and build in flexibility for the future. The right layout doesn't just house your family – it enhances their daily experiences, bringing comfort, connection, and joy to every corner of your home. As you begin planning or evaluating your options, remember that the best floor plan is one that truly reflects your values, your family dynamics, and your vision for the future.