Picture this: you've found the perfect lot, the budget is just right, and you're ready to build your dream home. But how do you make the most of 1800 square feet? This guide will walk you through everything from smart layouts to practical design choices that make your space feel spacious and comfortable.
When it comes to home building, size matters. Not just in terms of square footage, but in how well that space serves your lifestyle. An 1800 square feet home strikes a sweet spot – big enough to feel comfortable but small enough to manage efficiently. Whether you're a young couple, a growing family, or someone looking for a low-maintenance dwelling, this size offers incredible flexibility. The key lies in thoughtful planning and understanding how to maximize every inch of your living space. Think of it like a puzzle – each room needs to fit perfectly together to create something greater than the sum of its parts.

Understanding the 1800 Square Feet Layout
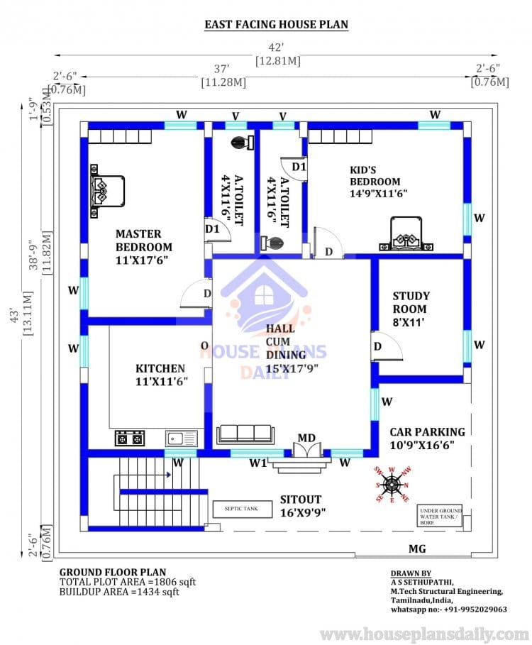
The magic of 1800 square feet isn't just in the numbers – it's in the possibilities. This size typically allows for 3-4 bedrooms, a kitchen, dining area, living room, and a bathroom or two. But here's the thing: the way you arrange these spaces makes all the difference. A well-designed floor plan can make your home feel much larger than its actual measurements. Consider open-concept layouts that flow naturally from one area to another. This approach helps eliminate walls that might make rooms feel cramped. For instance, combining the kitchen with the living area creates a seamless flow that invites conversation and activity. You might think 1800 square feet sounds small, but with clever design choices, it can easily accommodate a cozy family or even a home office. The key is prioritizing functionality over square footage.

Smart Bedroom Arrangements
Bedrooms are often the most important rooms in any house, especially when you're working with limited space. In an 1800 square feet home, you'll want to carefully consider how many bedrooms you actually need versus how many you want. Most families find that three bedrooms work well, giving everyone their own space while leaving room for a guest room or home office. The master suite deserves special attention – it should feel like a retreat within your home. Think about incorporating a walk-in closet or a small sitting area. If space is tight, consider a loft or mezzanine area above the main bedroom for additional storage or a reading nook. Sometimes the best solution is to share a bedroom with a child or create a flexible space that can serve multiple purposes. For example, a bedroom that doubles as a study during the day and sleeping area at night can be incredibly practical.

Kitchen and Dining Space Optimization
The heart of any home is its kitchen, and in 1800 square feet, you have to be strategic about how much space you dedicate to food preparation and dining. A good rule of thumb is to allocate around 200-250 square feet to your kitchen and dining area combined. This gives you enough room for appliances, counters, and seating without making the space feel too large or empty. Consider a galley-style kitchen if you're short on space – it maximizes efficiency while keeping things compact. For dining, think about multi-functional furniture. A breakfast bar can double as a casual dining area and provide extra counter space. Built-in seating along a wall can save precious floor space while creating a cozy atmosphere. Many homeowners find that adding a small island or peninsula increases both storage and social space. The key is choosing appliances and fixtures that match your cooking style and lifestyle.

Living Areas That Feel Spacious
Living spaces in 1800 square feet homes need to feel welcoming and functional. Often, people assume they must choose between a large living room and a functional kitchen, but that's not always true. Open floor plans are particularly effective because they create visual continuity and make smaller spaces appear larger. You might consider a great room concept that combines the living room, dining area, and kitchen into one cohesive space. This approach works especially well in modern designs and can be enhanced with features like vaulted ceilings or large windows that bring in natural light. Don't overlook the importance of lighting – proper illumination can make a huge difference in how spacious a room feels. Think about layering light sources: ambient, task, and accent lighting all contribute to a more dynamic and inviting environment. Remember, the goal is to create areas that encourage interaction rather than isolated corners.

Bathroom Planning and Storage Solutions
Bathrooms in 1800 square feet homes require careful consideration since they often take up significant square footage. Typically, you'll want one full bathroom for the main living areas and perhaps a half-bath for guests. Smart bathroom design means maximizing every inch. Consider a walk-in shower instead of a bathtub to save space – this is especially helpful in smaller bathrooms. Floating vanities and wall-mounted toilets can make a room feel less cluttered. Storage is crucial in these spaces, so look for creative solutions like built-in shelving, linen closets, or even under-sink storage. Some homeowners opt for a powder room that also functions as a mudroom or entryway, serving multiple purposes in one small area. The key is to avoid overcrowding the space while ensuring all necessary amenities are accessible and convenient.
Cost Considerations and Value Maximization
Budget plays a huge role in how you'll utilize your 1800 square feet. Construction costs vary widely depending on location, materials, and finishes, but generally, expect to pay between $150-300 per square foot for a quality home. To get the most value from your investment, focus on high-impact changes that make a difference in daily life. Quality flooring, good insulation, and energy-efficient appliances often provide better returns than expensive finishes. Consider the long-term costs of maintenance and utility bills when making decisions. For example, a home with a simple, timeless design tends to hold its value better than one with trendy features that quickly become outdated. Also, think about future needs – will you need more space later? Adding a bonus room or finished basement can increase your home's value significantly. Sometimes investing in smart home technology pays off in energy savings and convenience.
An 1800 square feet home offers incredible potential for creating a comfortable, functional living space that fits your lifestyle perfectly. The key isn't just having the right amount of square footage, but knowing how to use it wisely. From thoughtful bedroom arrangements to smart kitchen designs, every element should serve a purpose and enhance your daily life. Remember that good design isn't about making everything big – it's about making everything work well together. Whether you're planning your first home or renovating an existing space, keep these principles in mind. Your 1800 square feet can be anything you need it to be, from a quiet sanctuary to a bustling family hub. The most important thing is to design with intention and love, because ultimately, a home is more than just a building – it's where memories are made and lives are lived.