There's something deeply appealing about ranch homes. They're cozy, practical, and they've been winning over families for decades. When you're looking at a 2000 square foot ranch, you're getting a home that's big enough for a family but small enough to feel manageable. These layouts offer a perfect balance between space and simplicity.
Ranch homes have always had a special place in American hearts. The open concept, single-story design, and straightforward layout make them ideal for families who want comfort without the complexity of multi-level living. A 2000 square foot ranch isn't just a size - it's a lifestyle choice. It's the kind of home where kids can run freely, where gatherings happen naturally, and where every room feels like a place to belong. This size gives you room to breathe while keeping things intimate and easy to navigate.
Understanding the Ranch Style Foundation

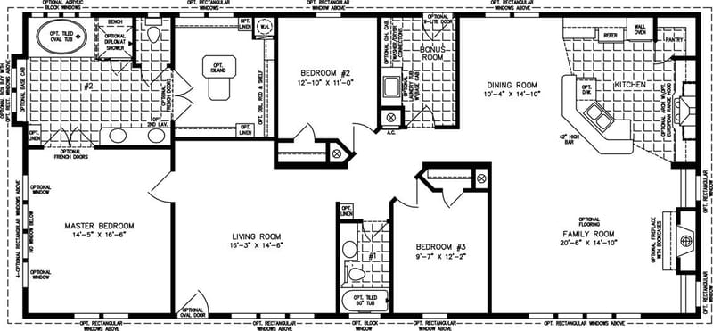
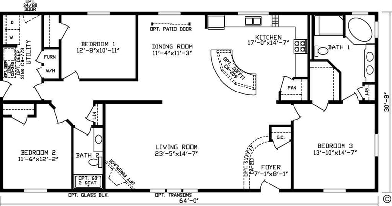
The ranch style emerged in the mid-1900s as a response to the growing need for affordable, functional housing. These homes typically feature a low-pitched roof, wide eaves, and large windows that let in plenty of natural light. The beauty of ranch homes lies in their horizontal emphasis - they stretch outward rather than upward. This creates a sense of openness that's perfect for larger families or those who enjoy entertaining. In a 2000 square foot ranch, you're getting a house that can easily accommodate four bedrooms, a kitchen, dining area, and living spaces all in one convenient floor plan. The key is understanding how to maximize that space effectively. What makes a good ranch layout? It's about creating flow between rooms and ensuring that each area serves its purpose while contributing to the overall feeling of spaciousness.
Key Features of 2000 Square Foot Ranch Plans
A 2000 square foot ranch offers a wonderful canvas for thoughtful design. Here's what you'll typically find:

These features work together to create a home that feels both spacious and intimate. The challenge with 2000 square feet is balancing the desire for extra space with maintaining the cozy feel that ranch homes are famous for. How do you make sure every inch counts?
Layout Options and Design Variations
There are several ways to arrange your 2000 square foot ranch. Let's look at some popular options:

Traditional Front-Facing Layout: This classic arrangement places the main entrance at the front, with bedrooms toward the back. The living areas face forward, creating a welcoming first impression. It's perfect for families who want a straightforward entry and clear separation between public and private spaces.
Side-Entry Ranch: Sometimes called a "bungalow" style, this layout has the entrance on the side. This works well when you want to maximize the front yard space for landscaping or when you prefer a more secluded entrance.
Split-Level Variation: While not traditional, some ranch homes incorporate split-level elements to add visual interest and better utilize the available space. This can be particularly effective in homes with sloped lots.

Each layout has its advantages. Consider your lifestyle, how you entertain, and what you value most in your daily routine when choosing the right one for you.
Maximizing Space in Your 2000 Square Foot Ranch
With 2000 square feet, you have a lot of potential for creative space planning. Here are some strategies that work especially well:

The goal is to avoid feeling cramped while still having enough room for everything you need. What's the difference between a well-designed 2000 square foot ranch and a poorly planned one? It's all about intentionality and smart choices.
Practical Considerations for Family Life
When you're designing or choosing a 2000 square foot ranch, consider how your family actually lives. Here's what to keep in mind:
Think about your family's future needs too. Will you need more space as children grow? Can the layout adapt to changing circumstances? These are important questions for any ranch home owner.
Cost Considerations and Value
Building or buying a 2000 square foot ranch involves several financial factors to consider:
It's worth noting that the initial investment pays off in terms of daily comfort and long-term satisfaction. You're not just buying a house - you're investing in a lifestyle that emphasizes ease, openness, and family connection.
A 2000 square foot ranch home represents the sweet spot between spacious comfort and manageable maintenance. These homes have stood the test of time because they understand what families really need. They offer the open, welcoming atmosphere that brings people together while providing the privacy and separate spaces that everyone deserves. Whether you're building from scratch or looking at existing homes, the key is finding a layout that fits your lifestyle and grows with your family. The beauty of ranch style isn't just in its appearance - it's in how it supports the way we live, work, and love together. You don't need a huge house to have a big life. Sometimes, the best homes are the ones that make you feel most like yourself.