Pole barn homes have been gaining popularity across America, offering a unique blend of rustic charm and modern functionality. These structures aren't just for farmers anymore – they're becoming a preferred choice for families seeking affordable, durable housing solutions. Whether you're considering building your first pole barn home or exploring renovation possibilities, understanding the fundamentals of pole barn house plans is essential.
Picture this: a sturdy structure with soaring ceilings, open floor plans, and that distinctive country feel that makes every room feel spacious and welcoming. That's what pole barn homes offer – and they're more than just a trend. They've evolved from simple agricultural buildings into sophisticated residential spaces that combine practicality with style. The beauty of these homes lies in their versatility and the endless possibilities for customization. From basic designs to elaborate masterpieces, pole barn house plans can accommodate almost any lifestyle or budget. But before you start sketching out your dream layout, there are several important factors to consider. Let's explore what makes these plans so appealing and how you can navigate the process successfully.
Understanding the Basics of Pole Barn Construction
At its core, a pole barn home uses wooden posts or poles driven directly into the ground as structural support. This method creates a framework that's both strong and economical. Unlike traditional stick-built homes, pole barns rely on vertical posts rather than load-bearing walls. This means you get more flexibility in your interior space design. The posts typically range from 6 to 8 inches in diameter and are usually made from pressure-treated lumber to resist rot and insects.
The foundation system varies based on soil conditions and local building codes. Some homes use concrete footings while others might employ a simple gravel base. The key advantage here is that pole barns can be built on various types of terrain, including challenging soils where conventional foundations might prove problematic. This adaptability makes them particularly attractive in rural areas or locations with difficult ground conditions.
Think about it this way: imagine having a home that can be built quickly, often in just a few weeks, compared to months for traditional construction. That's one of the major draws for many homeowners looking for an efficient solution.
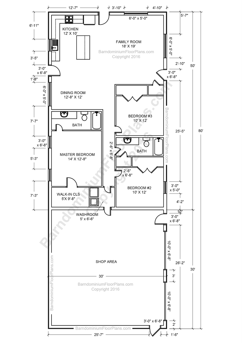
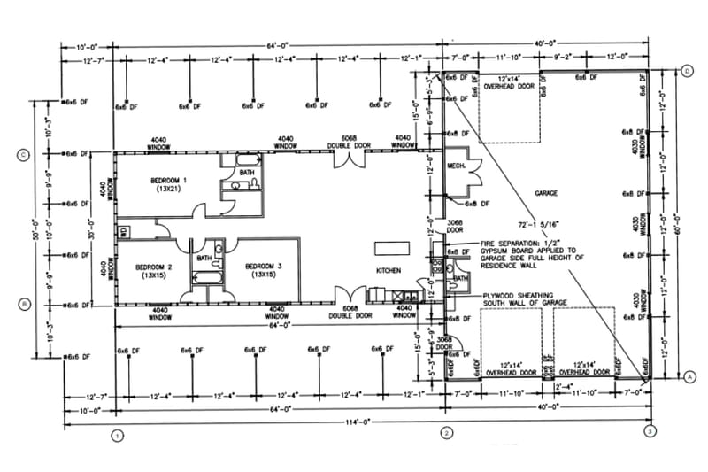
Design Flexibility and Layout Options

One of the most exciting aspects of pole barn house plans is the incredible freedom they offer in terms of design. You're not limited to the standard rectangular layouts that often define conventional homes. Instead, you can create unique shapes, incorporate vaulted ceilings, and even add custom features like wraparound porches or multi-level spaces.
Common layout configurations include:
The lack of interior load-bearing walls means you can easily reconfigure spaces as your needs change over time. Want to convert a bedroom into a home office? No problem. Need more storage space? Simply adjust the layout. This adaptability makes pole barn homes particularly appealing to growing families or those with changing lifestyle requirements.
Consider a family with young children who might want to expand their living area as kids grow older. With pole barn construction, they can simply modify the interior to accommodate new needs without major structural changes.
Cost Considerations and Budget Planning
When it comes to budgeting for a pole barn home, the numbers can vary widely depending on size, materials, and finishes. Generally speaking, you'll find that pole barn construction costs between $100 and $150 per square foot, which is significantly less than traditional home building. However, keep in mind that this price range includes basic construction only.
Several factors influence overall costs:

For example, a 1,500-square-foot basic pole barn home might cost around $150,000 to $225,000, but that doesn't account for finishing touches or high-end features. If you're planning a more elaborate design with premium materials, expect to pay closer to $200 per square foot or more.
The good news is that because of the simpler construction method, you can often save money upfront while still achieving quality results. Many builders offer package deals that include everything from framing to roofing, helping streamline costs and reduce surprises during the building process.
Planning Permits and Legal Requirements
Before you break ground on your pole barn project, it's crucial to understand the regulatory landscape in your area. Building codes and zoning laws vary dramatically from state to state and even from county to county. What's allowed in one location might be restricted in another.
Key considerations include:
Many counties require special permits for pole barn construction, especially if you're planning to live in the structure full-time. Some areas have specific requirements for electrical, plumbing, and heating systems that must meet residential standards.
It's worth noting that some communities are becoming more accepting of pole barn homes, recognizing their durability and cost-effectiveness. However, others still view them as temporary or agricultural structures. Always check with your local building department early in the planning phase to avoid costly delays later on.

A helpful tip: Consider hiring a local architect or builder who understands regional regulations. They can guide you through the permitting process and ensure your plans meet all necessary requirements.
Materials Selection and Quality Standards
The materials you choose for your pole barn home will significantly impact both its appearance and longevity. While the basic frame typically uses pressure-treated lumber, the exterior and interior finishes can vary greatly based on your preferences and budget.
Popular material choices include:
Quality matters more than ever when selecting materials. Look for lumber that meets current industry standards for strength and resistance to weather and pests. For example, using properly treated wood ensures that your structure will last decades without significant issues.
Consider the climate in your area when making material selections. In regions with heavy snowfall, you'll want to ensure proper roof design and materials to handle the additional weight. Similarly, areas prone to high winds might benefit from reinforced connections and quality fasteners.
Don't forget about sustainability. Many builders now offer eco-friendly options, including recycled materials and energy-efficient components that can help reduce your environmental footprint while potentially lowering long-term costs.

Construction Process and Timeline Expectations
Building a pole barn home is generally faster than traditional construction, but it still requires careful planning and patience. The typical timeline ranges from 4 to 12 weeks depending on the complexity of the design and weather conditions.
The construction process typically involves these main stages:
1. Site preparation and foundation work 2. Frame erection and structural assembly 3. Roof installation and weatherproofing 4. Window and door installation 5. Interior finishing and final touches
One advantage of pole barn construction is that much of the work can be done outdoors, which speeds things up considerably. Weather delays are common though, so it's wise to build some flexibility into your schedule.
The process begins with clearing and leveling the site, followed by installing the foundation. Once that's complete, the framing crew arrives to put up the structural elements. This is where the magic happens – watching as the skeleton of your future home takes shape.
Throughout the construction process, regular inspections are recommended to catch any potential issues early. Many builders offer warranties on their work, so ask about coverage details before signing contracts. Remember that the quality of craftsmanship directly impacts how well your home will perform over time.

Maintenance and Longevity Benefits
One of the standout features of pole barn homes is their remarkable durability and relatively low maintenance requirements. When properly constructed and maintained, these structures can last for generations. The key is starting with quality materials and following proper installation practices.
Maintenance tasks typically include:
The longevity factor becomes particularly important when you consider the initial investment. While the upfront cost might seem lower than traditional homes, the long-term savings from minimal maintenance and repair needs can be substantial. Many pole barn owners report spending far less on upkeep compared to conventional housing.
Additionally, these homes often hold their value well in the real estate market. Their unique character and solid construction make them appealing to buyers who appreciate quality and authenticity. Some properties even see appreciation rates that rival or exceed traditional residential markets.
Think of it this way: you're investing in a structure that won't need frequent renovations or replacements, allowing you to focus on enjoying your home rather than worrying about constant maintenance.
Pole barn home house plans represent more than just a building method – they embody a lifestyle choice that values practicality, affordability, and character. Whether you're drawn to the rustic charm, the cost benefits, or the design flexibility, these homes offer something unique in today's housing market. The key to success lies in thorough planning, understanding local regulations, and choosing quality materials and skilled professionals.
As you move forward with your pole barn journey, remember that each decision you make – from the initial design to the final paint job – contributes to creating a space that truly reflects your personality and meets your needs. The beauty of pole barn construction is that it allows you to build something that's not just functional, but genuinely enjoyable to live in. So take your time with the planning phase, ask plenty of questions, and don't hesitate to seek professional guidance when needed. Your dream pole barn home is within reach, and the satisfaction of building or buying something truly special makes the effort worthwhile.