When you think about a house plan of 1500 square feet, you might imagine something small or cramped. But in reality, this size offers incredible possibilities for thoughtful design and efficient living. It's large enough to accommodate a family comfortably while remaining manageable to maintain and affordable to build. This guide will walk you through everything from basic layouts to smart storage solutions that make every inch count.
A 1500 square foot house plan isn't just about size—it's about purposeful design. Whether you're a young couple starting out, a growing family, or someone looking for a low-maintenance home, this square footage range offers a sweet spot between comfort and practicality. Think of it as the perfect canvas for creating a space that truly works for you. The key lies in understanding how to maximize functionality within these boundaries while maintaining aesthetic appeal and personal comfort. You won't find yourself feeling cramped or overwhelmed by unused space. Instead, you'll experience the joy of intentional living.
Understanding the Basics of 1500 Square Feet

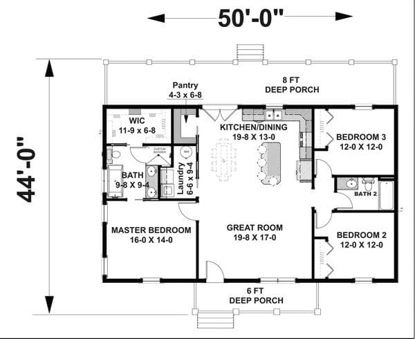
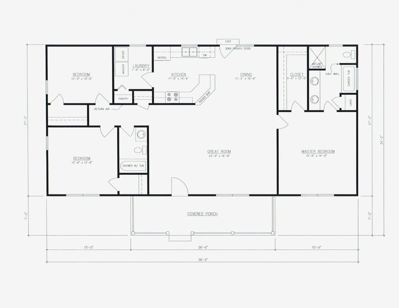
Let's start with the fundamentals. A 1500 square foot home typically includes two to three bedrooms, a kitchen, dining area, living room, and bathroom(s). The actual usable space varies based on layout and design choices. For example, an open-concept design can make a 1500 square foot space feel much larger than a traditional compartmentalized approach. Consider that most people spend their days in the kitchen, living room, and bedrooms. These areas usually account for about 60-70% of the total square footage. That means you have roughly 300-400 square feet for hallways, bathrooms, and utility areas. The beauty of 1500 square feet is that it allows you to focus on what matters most—creating spaces that serve your daily routine and bring joy.
Popular Layouts for 1500 Square Feet
There are several tried-and-true layouts that work exceptionally well in a 1500 square foot home:

Each style has its pros and cons. Open concept layouts are trendy and flexible, but they may not offer as much privacy. Traditional layouts provide clear separation between spaces but can sometimes feel disconnected. The key is matching your lifestyle to the right approach. Think about how you want to live, entertain, and move through your home.
Key Rooms and Their Ideal Sizes
Breaking down the essential rooms in a 1500 square foot home helps you visualize space allocation:

The kitchen often gets the most attention because it's where many family activities happen. A well-designed kitchen can easily take up 200-300 square feet. The living room needs to accommodate furniture and movement, so plan accordingly. Bedrooms should offer privacy and comfort, with enough space for a full-size bed and dresser. Remember, these measurements are starting points. Your specific needs may require adjustments.
Smart Storage Solutions for Compact Spaces
Storage is where 1500 square feet really shines or struggles. The key is thinking creatively about where and how to store things. Built-in storage solutions can be incredibly effective:

Consider how much you actually need to store. Many people overestimate their storage requirements and end up with empty spaces. A good rule of thumb is to plan for about 10-15% of your total square footage dedicated to storage. That means around 150-225 square feet for storage in a 1500 square foot home. Focus on organizing what you use regularly and keeping less-used items in easily accessible locations.
Maximizing Natural Light and Ventilation
Natural light transforms any space, especially in smaller homes. Here's how to get the most from what you have:

Ventilation works hand-in-hand with lighting. Proper airflow prevents mustiness and creates a healthier environment. Cross-ventilation happens when windows on opposite sides of a room allow air to flow through. This is particularly important in kitchens and bathrooms. If you're planning a 1500 square foot home, consider how natural light and ventilation will affect your daily routine. Morning light can energize your day, while evening breeze can provide relief during hot weather.
Cost Considerations and Budget Planning
Building or buying a 1500 square foot home requires careful financial planning. Here's what to expect:
For a 1500 square foot home, expect to budget between $200,000-$500,000 for construction, depending on quality and location. The most common mistake is underestimating utility costs and maintenance expenses. Factor in ongoing costs like property taxes, insurance, and repairs. A good approach is to set aside 1-2% of your home's value annually for maintenance. Also consider future upgrades—renovations, energy efficiency improvements, or adding features as your needs change.
Making Your 1500 Square Feet Work for You
Ultimately, a successful 1500 square foot home depends on thoughtful planning and realistic expectations. Here are some crucial tips:
Remember that 1500 square feet isn't limiting—it's liberating. It forces you to make intentional choices about what matters most. You'll develop a deeper appreciation for clean lines, functional design, and efficient use of space. This size encourages you to live with intention rather than excess. The result? A home that feels spacious, comfortable, and perfectly suited to your lifestyle.
A 1500 square foot house plan represents more than just measurement—it's a lifestyle choice that promotes intentional living and smart design. By understanding how to maximize space, prioritize needs, and plan thoughtfully, you can create a home that truly serves you. Whether you're designing from scratch or renovating an existing space, remember that the goal isn't to fill every corner but to create meaningful areas for daily life. The beauty of 1500 square feet lies in its ability to offer comfort without clutter, privacy without isolation, and function without sacrifice. With proper planning and creative thinking, this size becomes a strength rather than a limitation. Your dream home is waiting to be designed with purpose and passion.