In today's housing market, the fusion of open floor plans and loft elements has become more than just a trend—it's a lifestyle choice that's reshaping how we think about home design. Whether you're planning a new build or renovating an existing space, understanding how these two concepts work together can transform your living experience.
Picture this: You walk into a space where walls have been removed, where the kitchen flows seamlessly into the living area, and where a dramatic ceiling height creates an atmosphere of freedom and possibility. That's the magic of open floor plans with loft elements. These designs aren't just about making rooms look bigger—they're about creating experiences that connect people to their environment in profound ways. The combination brings together the best of both worlds: the functionality and flow of open spaces with the architectural drama and vertical dimension of lofts. It's like having a conversation between modernity and classic design, and it's changing the way families live, work, and play together.
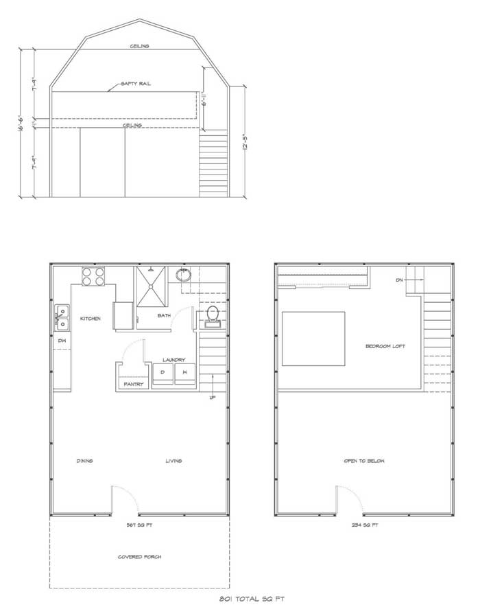
What Makes a Space a Loft?
Loft spaces are characterized by their high ceilings, often ranging from 9 to 14 feet tall, and their industrial aesthetic. Originally, lofts were converted warehouse spaces in urban areas, giving them that raw, unfinished look that many people now crave. The key features include exposed brick walls, concrete floors, metal beams, and large windows that let in natural light. When you add these elements to an open floor plan, you're creating something truly special.
The beauty of a true loft lies in its ability to offer multiple levels of space within one room. Think about how the extra height allows for interesting design possibilities—perhaps a mezzanine area for a reading nook, or a separate workspace tucked away above the main living area. This vertical thinking changes everything about how we approach interior design. It's not just about horizontal space anymore; it's about creating layers and dimensions that make a house feel like a mansion.
Benefits of Combining Open Plans with Loft Elements

When you merge open floor plans with loft characteristics, you get benefits that go far beyond simple aesthetics:
These advantages aren't just theoretical—they're lived experiences that transform daily routines and social interactions. Imagine hosting dinner parties where guests can move freely between different areas of your home, or working from home while having your workspace elevated above the main activity level.
Designing the Perfect Open Loft Space
Creating an effective open floor plan with loft elements requires careful consideration of several factors:
Ceiling Height Considerations: Before you start designing, measure your ceiling heights carefully. If you're working with standard 8-foot ceilings, consider adding a partial second story or using architectural tricks to create the illusion of height.
Lighting Strategy: Plan your lighting carefully. Combine ambient lighting with focused spotlights and perhaps some statement fixtures that draw attention upward toward the ceiling. Track lighting along the edges of high ceilings can create visual interest and highlight architectural details.

Material Selection: Choose materials that complement the loft aesthetic. Exposed brick, concrete, steel, and wood all work well together. But remember, balance is key—don't overwhelm the space with too much industrial character.
Furniture Scale: Select furniture that fits proportionally with the room size and ceiling height. Large-scale pieces can actually make the space feel more grounded rather than cavernous.
Functional Zones: Even in an open layout, define different areas clearly. Use rugs, lighting, or slight changes in flooring to indicate where one zone ends and another begins.
Popular Loft Design Trends in Open Spaces
Current trends in open floor plans with loft elements show us exactly where design is heading:
Mixed Materials: Combining natural materials like wood and stone with industrial elements such as steel and concrete creates warmth and visual interest.

Multi-Level Living: Creating distinct levels within one open space using stairs, platforms, or raised areas gives the feeling of multiple rooms without actual walls.
Smart Storage Solutions: Built-in storage systems that utilize the vertical space effectively keep the open feel while providing practical organization.
Natural Textures: Incorporating textures like rough-hewn wood, woven fabrics, and soft metals adds comfort to the sometimes stark industrial look.
Outdoor Integration: Many modern designs feature large sliding doors or windows that blur the line between indoor and outdoor living, especially important when you have a loft element that might benefit from garden views.
These trends reflect our desire for spaces that are both functional and beautiful, that serve multiple purposes, and that can adapt to changing lifestyles over time.
Practical Challenges and Solutions

While the appeal of open floor plans with loft elements is undeniable, there are some challenges to consider:
Heating and Cooling: High ceilings mean more air to heat and cool. Solutions include zoned heating systems, ceiling fans, or even radiant heating panels installed in the floor.
Acoustic Issues: Without walls to contain sound, noise can travel easily. Address this with carpeting, soft furnishings, and acoustic panels strategically placed throughout the space.
Safety Concerns: Higher ceilings and open staircases require additional safety considerations, including proper railings and potentially child safety gates.
Storage Problems: The vertical space can be tricky to organize. Consider built-ins, custom shelving, and creative storage solutions that make the most of every inch.
Cost Implications: Renovating to achieve loft-like qualities can be expensive. Start small with affordable updates like paint colors or lighting changes before investing in major structural modifications.

The key is to approach these challenges thoughtfully and prioritize the aspects that matter most to your daily life.
Real-Life Examples and Inspiration
Looking at actual examples helps bring these concepts to life:
Urban Loft Conversion: A former factory building transformed into a family home featuring a 12-foot ceiling in the main living area, with a mezzanine level for a library and study space. The exposed steel beams and concrete floors create an industrial-chic atmosphere while maintaining the openness of the original structure.
Modern Suburban Home: A new construction project that incorporates a 10-foot ceiling in the great room, with a partial second story that houses a master suite and guest bedroom. The design maintains an open feel while providing privacy and separate living spaces.
Rental Apartment: A converted apartment with a high ceiling and open kitchen-living-dining area. The owner used decorative lighting and strategic furniture placement to create defined zones without sacrificing the open concept.
These examples show that the open floor plan with loft elements works across different budgets, sizes, and architectural styles. The common thread is the intentional use of vertical space to enhance the overall experience of the home.
Open floor plans with loft elements represent more than just a design choice—they're a reflection of how we want to live in the modern world. They offer the best of both worlds: the flexibility and connection of open spaces combined with the architectural excitement and vertical dimension that lofts provide. Whether you're starting fresh with a new build or looking to transform an existing space, these principles can guide you toward a home that feels both spacious and intimate, both functional and inspiring. The secret isn't just in the height or the openness, but in how thoughtfully you use every inch of space to create a place that truly works for you and your family. As we continue to evolve our relationship with home and work environments, these types of spaces will likely become even more prevalent. The future of home design seems to be leaning toward creating spaces that are as dynamic as our lives, and open floor plans with loft elements perfectly embody that philosophy.