When you have 3500 square feet to work with, the possibilities are endless. But how do you turn that spacious canvas into a home that truly works for you? It's not just about having room - it's about making smart choices that bring joy and functionality to every corner.
Picture this: You've finally found your dream home, and it's 3500 square feet. That's enough space for a master suite, a home office, a guest room, maybe even a hobby space. But with all that room comes the challenge of planning it right. This isn't just about filling space - it's about creating a living environment that flows naturally and meets your daily needs. Whether you're a growing family, a remote worker, or someone who simply appreciates space, understanding how to lay out 3500 square feet effectively can transform your daily life.
Understanding the Power of Space
A 3500 sq ft home gives you serious flexibility. Think about it - that's roughly the size of three average bedrooms plus a kitchen and living areas. You're not just getting a bigger house; you're getting options. The real magic happens when you think beyond the numbers and consider how you actually live. Do you need a dedicated workspace? A quiet reading nook? Perhaps a space for entertaining guests? These aren't just wishes - they're practical considerations that shape your floor plan decisions.
The key is matching your lifestyle to your space. For families with children, you might want separate play areas and quiet study spaces. If you work from home, you'll want a dedicated office that feels distinct from the rest of the house. And if you love hosting, you'll need a welcoming entryway that leads smoothly into your main gathering areas.
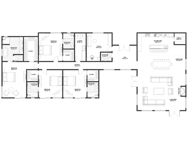
Core Design Principles
When designing any floor plan, certain fundamentals apply regardless of size. Start with flow - how will people move through your space? A good rule of thumb is to ensure there's a clear path from the front door to the kitchen, dining area, and living spaces.
Consider the heart of your home: the kitchen and dining area. These spaces should be central and accessible to other family members. The kitchen island, when possible, serves as both a functional workspace and a social hub.

Here are some essential design elements:
The goal isn't to make everything look identical. Instead, you want each area to serve its purpose while maintaining visual harmony throughout the entire home.
Room Distribution Strategies
With 3500 square feet, you can afford to be thoughtful about room placement. The most common approach divides the space into zones: the living zone, sleeping zone, and utility zone.
The living zone typically includes your main living areas - the family room, dining area, and kitchen. This is where you want the most traffic flow and activity. The kitchen should be the center of this zone, with easy access to dining and living areas.
The sleeping zone usually contains bedrooms and bathrooms. You'll want this area to feel private and peaceful. The master suite often becomes the focal point of this zone, incorporating a walk-in closet and ensuite bathroom.
The utility zone handles laundry, storage, and service areas. This might include a mudroom, pantry, garage, or utility room. Keeping these areas well-organized prevents them from cluttering the main living spaces.
Some homeowners prefer a more flexible approach, using open spaces that can change function based on daily needs. For example, a large room might serve as a family room during the day and a guest bedroom at night.

Master Suite Planning
Your master suite deserves special attention when planning 3500 square feet. This is your personal sanctuary, so make it count. Most experts recommend dedicating 300-400 square feet to a master suite, but in a 3500 sq ft home, you can go much further.
The typical master suite includes:
Don't forget the practical details. The bathroom should have adequate ventilation, proper lighting, and easy access to the bedroom. The walk-in closet should include shelving, hanging rods, and storage drawers arranged according to your clothing and accessory needs.
For those who work from home, consider including a small office or desk area within the master suite. This creates a private workspace that doesn't interfere with daily activities elsewhere in the house.
Entertainment and Gathering Spaces
Large homes offer unique opportunities for entertainment. In a 3500 sq ft space, you can create multiple gathering areas that serve different purposes.
The main family room should be your primary entertainment hub. With enough room, you can include a media center, comfortable seating arrangements, and perhaps a wet bar or beverage station.

Consider adding secondary gathering spaces like:
These spaces don't have to be elaborate - they just need to be comfortable and functional. The key is ensuring they connect naturally to the rest of your home. You want people to flow easily between indoor and outdoor spaces, and between formal and casual areas.
Storage and Organization Solutions
One of the biggest challenges with 3500 square feet is keeping everything organized. You have so much space that it's easy to accumulate things, and then you wonder where anything went.
Smart storage planning involves:
Think about how you currently organize your belongings. What do you use most often? Where do you tend to lose things? Answering these questions before designing your floor plan helps you create better storage solutions.
Many successful 3500 sq ft homes include:
Lighting and Ambiance

Lighting makes or breaks a space. In a 3500 sq ft home, you have the luxury of layering different types of lighting to create mood and function.
Start with general lighting - the overhead lights that provide overall illumination. Then add task lighting where you need focused light, such as over kitchen counters or reading nooks. Finally, incorporate accent lighting to highlight architectural features or create ambiance.
Natural light is particularly important in large spaces. Windows should be strategically placed to bring in sunlight and create visual connections between rooms. Consider skylights or solar tubes for areas that don't receive much natural light.
The beauty of a large home is that you can create different moods in different areas. A bright, airy kitchen might contrast nicely with a cozy family room with softer lighting. This variety keeps the space interesting and allows you to adjust the atmosphere based on your needs.
Future-Proofing Your Floor Plan
Planning a 3500 sq ft home means thinking beyond today's needs. How will your space adapt as your family grows or changes? What about aging in place considerations?
Consider these future scenarios:
Flexible design elements include:

This isn't about over-planning - it's about creating a foundation that can evolve with your life.
Real-World Examples and Inspiration
Looking at actual 3500 sq ft floor plans provides inspiration for your own design journey. Here are some common approaches:
Each style offers different benefits. Traditional homes might appeal to those who prefer defined spaces and classic layouts. Open-concept designs suit people who enjoy flowing spaces and social interaction. Multi-generational homes address the needs of extended families.
What matters most is finding a style that matches your lifestyle and personality. Don't be afraid to mix elements from different approaches. The best floor plans are often creative combinations that solve your specific problems.
Cost Considerations and Budgeting
A 3500 sq ft home involves significant investment, but understanding costs helps you make informed decisions.
The cost per square foot varies widely based on location, materials, and finishes. Generally, expect to pay between $150-$500+ per square foot depending on your area and desired quality.
Key budget areas include:
Remember that some design choices can save money in the long run. Energy-efficient appliances, good insulation, and smart lighting can reduce ongoing costs. Sometimes spending a bit more upfront on quality materials and construction pays dividends in reduced maintenance and increased property value.
Creating the perfect 3500 sq ft floor plan isn't about following rigid rules - it's about crafting a space that reflects your life and supports your dreams. The key lies in balancing practicality with personal style. Start with your priorities, think about how you want to live, and let those needs guide your design choices.
Whether you're building from scratch or renovating an existing space, remember that 3500 square feet offers incredible freedom. Use that freedom wisely by focusing on what matters most to you. The result won't just be a big house - it'll be a home that truly works for you. After all, the best floor plans aren't just about square footage; they're about creating spaces where life happens beautifully.