Imagine walking into a home that feels spacious despite its modest size. A 1500 square foot house offers the perfect balance between comfort and efficiency. Whether you're planning a new build or renovating an existing space, understanding how to maximize every inch is crucial. This guide breaks down everything you need to know about creating smart, functional layouts that work for modern living.
When you think about designing a home, the size often matters less than how well you utilize every square foot. A 1500 square foot house isn't just small—it's compact and thoughtful. It's the kind of space where every room needs to serve multiple purposes and every wall needs to tell a story. You might wonder if such a space can truly feel comfortable, but when done right, it can offer everything you need for daily life. The magic happens in the details, and this guide will show you exactly how to make those details work for you.
Understanding the Space

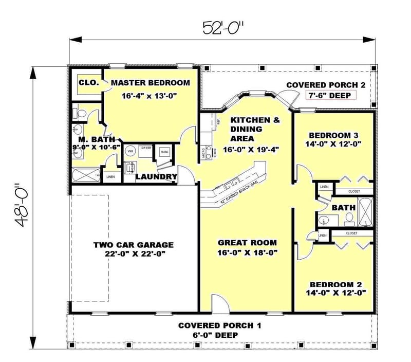
A 1500 square foot home is like a puzzle with limited pieces, but each one must fit perfectly. This size typically accommodates 2-3 bedrooms, a kitchen, dining area, living room, and bathroom(s). It's not just about the numbers—it's about how the rooms connect and flow together. Consider the average family size and lifestyle when planning. A couple with no children might want more open space, while a growing family might prioritize flexibility and storage. What matters most is creating zones that feel distinct yet connected.
Key Layout Principles
The foundation of any good floor plan lies in three core principles:

These principles help create a sense of calm even in a smaller space. Think of your home as a conversation—each room should have its own voice but still blend into the overall tone of the house. For example, placing the kitchen near the dining area creates a natural gathering spot, while keeping bedrooms away from high-traffic zones ensures privacy.
Room Size Recommendations
Here's how to allocate space within your 1500 square feet:

These measurements are flexible and depend on your lifestyle. If you entertain frequently, consider expanding the living area. If you work from home, a dedicated office space might be essential. The key is matching your needs with available space.
Maximizing Storage Solutions
Storage is king in small homes. You'll want to think vertically and creatively. Built-in shelving can double as room dividers, while under-stair storage adds hidden space for seasonal items. Consider:

Sometimes, less visible storage means more usable space. A cleverly designed pantry or linen closet can transform a cramped corner into a functional zone.
Lighting and Design Elements
Lighting plays a huge role in how spacious a room feels. Natural light is your best friend, so maximize windows and skylights wherever possible. For artificial lighting, layer it with:

Design elements like mirrors can make walls appear farther away, while a cohesive color palette helps rooms feel connected. Don't underestimate the impact of textures and materials—smooth surfaces reflect light better than rough ones.
Practical Tips for Construction
Building a 1500 square foot home requires careful planning and realistic expectations:
Remember that building a home is an investment in your future. Take time to get the layout right before construction begins. It's much easier to adjust plans than to deal with regrets after walls go up.
Designing a 1500 square foot home is both an art and science. It requires thinking beyond simple measurements to consider how people live, work, and relax. When you approach this challenge with creativity and purpose, you can create a space that feels larger than its actual size. Every element—from the kitchen layout to the bedroom configuration—should support your daily routine and personal style. The result? A home that not only fits your square footage but also fits your life perfectly. You don't need a mansion to live well, just a well-thought-out plan that makes every part count.