There's something deeply satisfying about the idea of a cozy farmhouse with two bedrooms and two baths. Whether you're planning your first home or looking to renovate, these classic layouts offer timeless appeal and smart functionality. The beauty of farmhouse design lies in its ability to blend rustic charm with modern comfort, creating spaces that feel both welcoming and practical.
Farmhouse homes have captured hearts across America for decades. These designs aren't just about nostalgia – they represent a lifestyle that values simplicity, durability, and connection to the land. When you think about 2 bedroom 2 bath farmhouse plans, you're really considering a layout that balances family needs with aesthetic pleasure. The two-bedroom configuration offers enough space for children, guests, or a home office, while the two-bath setup ensures everyone has their own private sanctuary. What makes these plans particularly attractive is how they can be adapted to different sizes and budgets, from small countryside retreats to larger family estates.

Understanding the Classic Layout Structure
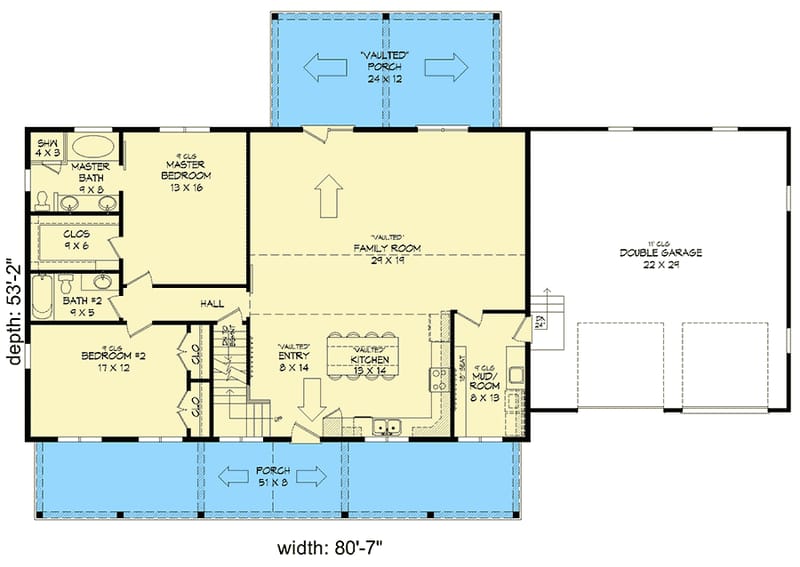
The typical 2 bedroom 2 bath farmhouse plan centers around a central living area that flows naturally between spaces. Most designs feature a large kitchen that opens into a dining area and living room, creating a warm hub for family activities. The bedrooms are usually positioned on opposite sides of the house, allowing for privacy while maintaining easy access to shared bathrooms. This arrangement makes sense when you consider how families typically function – you want the main living areas easily accessible to everyone, while bedrooms provide quiet retreats. Many homeowners find that having the master bedroom on one side and a guest room on the other creates the perfect balance between intimacy and convenience. The bathroom placement often reflects daily routines, with one bathroom near the bedrooms and another serving the common areas.

Key Design Elements That Define Farmhouse Style
Farmhouse aesthetics rely heavily on natural materials and warm textures. Exposed wooden beams, brick accents, and stone features give these homes their distinctive character. You'll often see open floor plans that emphasize the connection between kitchen, dining, and living spaces. Built-in storage solutions are essential in farmhouse design, helping to keep surfaces clean and organized. The style embraces both vintage and contemporary elements, so you might find a vintage sink in a modern kitchen or a sleek bathroom fixture paired with traditional cabinetry. Windows play a crucial role too – large panes and dormer windows are common features that bring in natural light and enhance the feeling of spaciousness. Consider how these elements work together to create a cohesive look that feels both rustic and refined.

Practical Considerations for Family Life
When designing a 2 bedroom 2 bath farmhouse, practicality becomes just as important as beauty. Think about how your family moves through the space daily. The kitchen should accommodate meal preparation for multiple people, while the dining area provides a place for conversation and connection. Bedrooms need adequate space for furniture and storage, especially if you have children. The bathroom layout affects morning routines – will you need separate access points? Many families prefer having one bathroom near bedrooms and another for the main living areas. Storage solutions like linen closets, pantry spaces, and mudrooms help manage everyday items. Consider how you'll handle laundry – some plans include dedicated laundry rooms, while others integrate this into the main bathroom or utility areas.

Size Variations and Flexibility Options
Farmhouse plans come in various sizes, from compact 1,200 square feet to expansive 2,500+ square feet homes. The 2 bedroom 2 bath configuration works well in both small and large layouts. Smaller versions might feature a combined kitchen-dining-living area with a compact bedroom wing. Larger homes can expand this concept with additional features like a study, sunroom, or extended porch areas. Some plans include optional additions like a detached garage, workshop, or garden shed. The flexibility of these designs means you can customize them based on your family size and lifestyle preferences. You might choose to add a third bedroom later or convert a space for a home office or hobby room. The modular nature of farmhouse construction allows for modifications that suit changing family needs over time.

Cost Factors and Budget Planning
Building or buying a 2 bedroom 2 bath farmhouse involves several cost considerations. Foundation costs vary significantly based on soil conditions and local building codes. Materials like wood, stone, and brick can dramatically impact overall expenses. Labor costs depend on your location and whether you're doing the work yourself or hiring professionals. Kitchen and bathroom upgrades tend to be significant investments, though they also add value to your home. Energy efficiency features, such as proper insulation and windows, can reduce long-term costs. Consider how much you're willing to spend on custom touches versus standard options. Many homeowners find that investing in quality materials early pays off through reduced maintenance costs. Research local building permits and regulations, as these can affect your budget unexpectedly.
Modern Updates That Enhance Traditional Farmhouse Features
Today's farmhouse designs often incorporate modern conveniences without losing their traditional charm. Smart home technology can be seamlessly integrated into classic layouts, from programmable thermostats to automated lighting. Updated electrical and plumbing systems ensure safety and efficiency. Modern appliances fit perfectly into farmhouse kitchens, especially when chosen with classic styling. Open floor plans can include contemporary finishes like polished concrete or contemporary tile. The key is balancing old and new elements so neither overwhelms the other. Many homeowners add modern touches like contemporary light fixtures, updated hardware, or sleek bathroom vanities while keeping the core farmhouse character intact. These updates make older homes more livable for modern families while preserving their historical appeal.
A 2 bedroom 2 bath farmhouse plan represents more than just architectural choices – it embodies a way of life that values comfort, functionality, and timeless beauty. Whether you're drawn to the classic lines of traditional farmhouse design or looking to update an existing home, these layouts offer endless possibilities for customization. The key is understanding how to balance practical needs with aesthetic desires. Every element, from the placement of windows to the choice of flooring, contributes to the overall experience of living in a farmhouse. The beauty of these plans lies in their adaptability – they can grow with your family, evolve with your lifestyle, and remain charming for generations. As you explore your options, remember that the best farmhouse design is one that feels authentically yours, reflecting both your personal style and your practical requirements. After all, a home should feel like a refuge, and a farmhouse with two bedrooms and two baths can provide exactly that kind of sanctuary.