When it comes to home design, size doesn't always mean sacrifice. A 1200 square foot house plan with two bedrooms can offer everything you need for comfortable living without the hassle of excessive maintenance. These compact homes have become increasingly popular, especially among first-time buyers, young professionals, and those looking to downsize while maintaining quality of life.
Picture this: You're standing in a cozy kitchen, sunlight streaming through large windows, with enough space to comfortably host friends for dinner. This isn't a dream—it's achievable with the right 1200 sq ft house plans. The key lies in smart planning, creative layouts, and understanding how to maximize every inch of your available space. Whether you're building from scratch or renovating an existing structure, these smaller homes offer unique opportunities to craft a functional and beautiful living environment.

The Appeal of Compact Living Spaces
Compact homes have seen a remarkable resurgence in popularity over the past decade. Why? Because they offer practical advantages that many people find appealing. First, there's the financial aspect. Smaller homes typically cost less to buy and maintain. Heating, cooling, and cleaning require fewer resources, leading to lower monthly expenses. Additionally, these homes often feature modern designs that emphasize open spaces and natural light. Many 1200 sq ft house plans incorporate smart storage solutions and multi-functional rooms that serve multiple purposes. The appeal isn't just about saving money though. These homes encourage a minimalist lifestyle that many find refreshing and liberating.

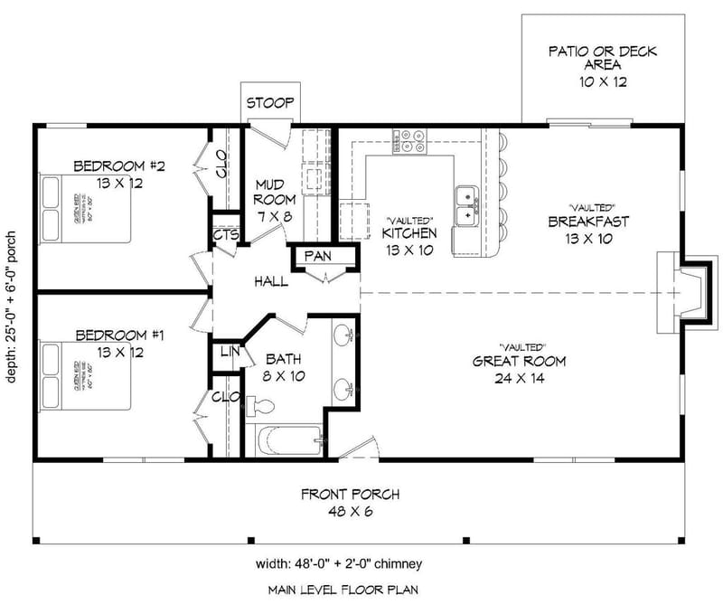
Essential Layout Considerations
Designing a successful 1200 sq ft house plan requires careful thought about room placement and flow. The kitchen should ideally open into the living area, creating a sense of spaciousness. Consider having a dining area that flows seamlessly into the main living space. Bedrooms should be positioned to provide privacy while keeping the layout efficient. A well-planned bathroom can make or break a small home experience. In fact, many designers recommend incorporating a half-bath near the entrance for guests. The master bedroom might benefit from a walk-in closet or a cleverly designed storage solution that doesn't take up valuable floor space.

Smart Storage Solutions
Storage is crucial in any home, but especially in smaller spaces. Creative storage options can transform a cramped feeling into a well-organized haven. Built-in shelving units can be integrated into walls, maximizing vertical space. Under-stair storage areas are often overlooked but can hold plenty of items. Consider a pantry that doubles as a linen closet or a bathroom vanity with extra storage compartments. Some homeowners even incorporate storage within their furniture choices, like ottomans with hidden compartments or coffee tables that serve double duty as storage units. These solutions keep clutter at bay while maintaining visual appeal.

Lighting and Visual Tricks
Natural light makes a huge difference in how spacious a room feels. Large windows, skylights, and glass doors can dramatically change the atmosphere of a 1200 sq ft home. When natural light isn't sufficient, strategic artificial lighting becomes essential. Layered lighting—ambient, task, and accent—creates depth and interest. Light colors on walls and ceilings reflect light and make spaces appear larger. Mirrors can be powerful tools for expanding visual space, especially when placed strategically. Even simple changes like using light-colored curtains or opting for sleek, low-profile fixtures can make a significant impact on the overall feel of your home.

Multi-Functional Room Designs
In a 1200 sq ft house, every room needs to work hard. A home office could double as a guest room when needed. A living room might serve as a play area for children or a quiet space for reading. Consider a convertible dining area that can function as a workspace or hobby station. Even the bedroom can be multifunctional, perhaps serving as a quiet retreat during the day and a guest room at night. These flexible arrangements allow families to adapt their living spaces as needs change. The key is designing rooms with built-in versatility rather than rigid definitions.
Cost-Effective Design Strategies
Building or renovating a 1200 sq ft house doesn't have to break the bank. Start by prioritizing essential features over luxury additions. Choose durable materials that will last, even if they're not the most expensive option. Focus on energy-efficient appliances and systems that will save money over time. Sometimes, hiring professionals for certain aspects of construction while handling simpler tasks yourself can stretch your budget further. Consider using similar finishes throughout the home to create a cohesive look without spending extra on variety. Remember that a well-thought-out plan can actually save money by preventing costly changes later.
A 1200 sq ft house plan with two bedrooms represents more than just a smaller home—it's a lifestyle choice that emphasizes efficiency, creativity, and thoughtful design. With proper planning and attention to detail, these homes can offer all the comfort and functionality you desire. Whether you're considering a new build or remodeling an existing space, remember that the goal isn't to simply fit everything into a small area. Instead, focus on creating a home that works beautifully for your specific needs and preferences. The right approach can turn a modest 1200 sq ft house into a truly special place where you'll want to spend your time.