Picture this: a cozy home that feels spacious, functional, and beautifully designed all within just 1000 square feet. It's not just possible – it's becoming increasingly popular among families and individuals who want smart, efficient housing without compromising comfort. Whether you're downsizing, starting fresh, or simply looking for creative ways to maximize your living space, understanding how to design a 1000 sq ft house plan with three bedrooms opens up a whole new world of possibilities.
When it comes to home design, size doesn't always equal comfort. In fact, many of the most appealing homes today are those that cleverly utilize every inch of their available space. A 1000 sq ft house plan with three bedrooms presents unique challenges and opportunities. The key lies in thoughtful planning, smart storage solutions, and creative architectural choices that make even the smallest homes feel welcoming and functional. These compact homes often become showcases of good design principles rather than limitations.
Understanding the Basics of 1000 Sq Ft Planning
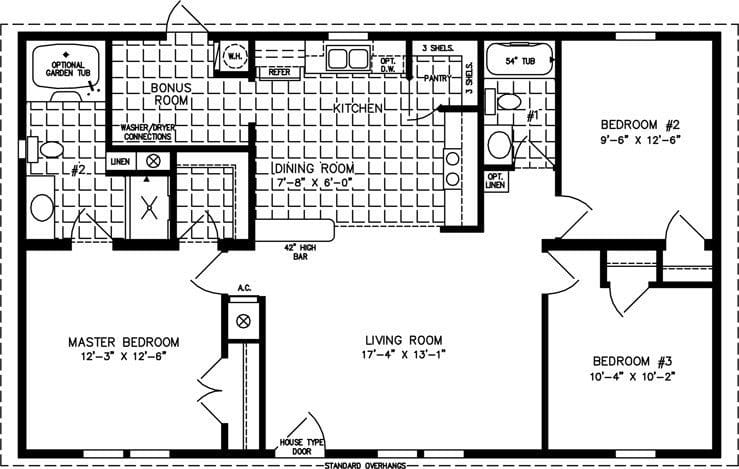
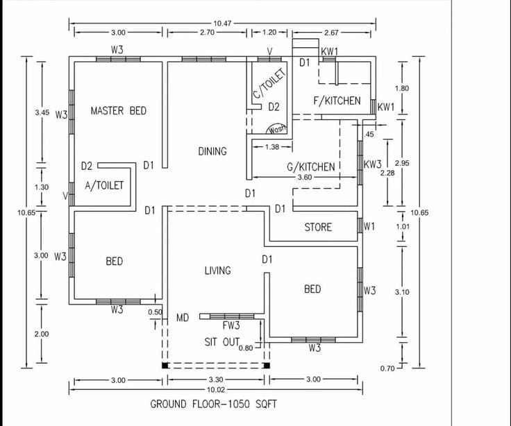
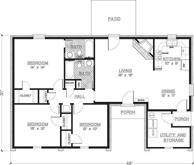
Before diving into layout options, it's important to understand what you're working with. A 1000 sq ft home typically includes a kitchen, dining area, living room, three bedrooms, two bathrooms, and hallways. This means each square foot counts. The average bedroom in such a home measures around 10x12 feet, leaving little room for error in design decisions.

Consider the typical breakdown:
These numbers help set realistic expectations for what can be achieved in a 1000 sq ft space.
Layout Options That Work Best
Not all floor plans are created equal, especially when space is limited. Here are the most effective approaches for organizing your 1000 sq ft three-bedroom home:

Open Concept Living: Combining the kitchen, dining, and living areas creates a sense of spaciousness. This approach works particularly well when you have a long, narrow lot. Think of it like creating one big room that happens to have different functions.
Separate Rooms: Keeping bedrooms in their own designated areas provides privacy and quiet. This layout works better for families with children or when you prefer distinct spaces.
Multi-functional Areas: A home office that doubles as a guest room, or a dining area that converts to a play space. These flexible solutions stretch the functionality of your small footprint.
Vertical Thinking: Utilize ceiling height effectively with vaulted ceilings, lofts, or mezzanine levels to add visual interest and usable space without increasing the footprint.

Smart Storage Solutions for Compact Homes
Storage in small homes requires creativity and efficiency. The right storage solutions can make or break your 1000 sq ft dream.
Key strategies include:
One homeowner shared how they transformed a tiny hallway into a functional pantry by installing shelving along the walls, adding 20+ cubic feet of storage space that would otherwise be wasted.

Design Elements That Create Illusion of Space
The secret to making a 1000 sq ft home feel larger than its actual measurements lies in smart design choices. Here's how to fool the eye and maximize perceived space:
Many designers recommend using the same color palette across multiple rooms to maintain visual flow and prevent the feeling of cramped quarters.
Practical Considerations for Family Living

A 1000 sq ft home with three bedrooms must balance family needs with space constraints. Families often face unique challenges in smaller homes:
Solutions might include:
One family discovered that placing the master bedroom away from the children's rooms significantly improved sleep quality for everyone in the household.
Cost-Effective Approaches to Building Smaller
Smaller homes aren't just aesthetically pleasing – they're also financially smarter. Here's why going with a 1000 sq ft plan makes sense economically:
Budget-conscious homeowners often find that focusing on quality over quantity produces better results than trying to fit everything into a small space. Sometimes, it's better to invest in high-quality finishes in fewer areas rather than spreading resources thin.
A 1000 sq ft house plan with three bedrooms isn't just about fitting in less space – it's about creating a more intentional, efficient, and enjoyable way of living. When thoughtfully designed, these homes can provide everything needed for comfortable family life while offering financial benefits and environmental advantages. The key lies in embracing the challenge rather than fearing it. Every inch matters, but when planned correctly, even a modest 1000 square feet can feel like a true sanctuary. Whether you're designing your first home or downsizing, remember that good design transcends size. Sometimes, the most beautiful spaces are the ones that make the most of what they have.