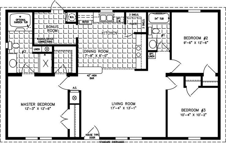
Picture this: a cozy home that feels spacious, a layout that works perfectly for families, and a design that makes every square foot count. That's exactly what 3 bedroom 1000 sq ft house plans offer. These clever designs prove that size doesn't determine comfort – it's all about smart planning and thoughtful execution.
In today's world where space is at a premium and costs are soaring, many people are discovering the beauty of smaller homes. A 3 bedroom 1000 sq ft house plan isn't just about saving money – it's about creating a lifestyle that's sustainable, manageable, and surprisingly comfortable. These homes pack a punch despite their modest footprint, offering everything from open-concept living areas to private bedrooms that feel like sanctuaries. Whether you're a young family, a growing household, or someone looking to downsize without sacrificing comfort, these compact designs have something special to offer.
Why Choose a 3 Bedroom 1000 Sq Ft Home?
There are several compelling reasons why 3 bedroom 1000 sq ft house plans have become increasingly popular among homebuyers and builders alike. Let's explore some of the major benefits:
Think about it – you're not just buying a house, you're investing in a lifestyle that's simpler, more focused, and often more enjoyable than larger, more complex homes.
Key Design Elements for Compact Spaces

Creating a successful 3 bedroom 1000 sq ft house plan requires careful attention to several essential design principles:
Open floor plans are crucial for making small spaces feel bigger. When you eliminate unnecessary walls between the kitchen, dining, and living areas, you create visual flow that expands the sense of space.
Multi-functional rooms serve multiple purposes throughout the day. A study that doubles as a guest room, or a breakfast nook that becomes a homework station, maximizes the utility of each area.
Strategic storage solutions keep clutter at bay while maintaining clean lines. Built-in shelves, under-stair storage, and hidden cabinets can hold everything from books to seasonal items without taking up valuable floor space.
Natural light plays a huge role in making small spaces feel airy and welcoming. Large windows, skylights, and glass doors help brighten interiors and create a sense of openness that might otherwise be missing.
Smart Layout Strategies

The way you arrange the rooms in your 1000 sq ft home can make all the difference between feeling cramped and feeling comfortable. Here are some proven layout approaches:
Central living areas work well in small homes because they create focal points that draw the eye around the space. A great room that combines kitchen, dining, and living areas is a popular choice.
Bedroom placement matters significantly. Positioning bedrooms away from high-traffic areas helps create quiet zones for rest and relaxation.
Functional flow ensures that moving through the home feels natural and easy. You want to avoid having to walk through one room to get to another when it's not necessary.
Vertical thinking means using height to your advantage. High ceilings, vaulted areas, or even simply choosing taller furniture can add visual dimension to your space.
Consider how you actually live versus how you think you should live. The most successful plans accommodate real life, not just idealized versions of it.

Popular Features in Modern 1000 Sq Ft Plans
Contemporary 3 bedroom 1000 sq ft house plans often incorporate features that make small homes feel luxurious and modern:
These features don't just make the home look nice – they improve daily life in tangible ways. A well-planned deck can become a favorite spot for morning coffee, while smart storage solutions can eliminate the stress of finding a place for everything.
Cost Considerations and Budget Planning
Building or buying a 3 bedroom 1000 sq ft home can be more affordable than larger options, but there are still important financial considerations to keep in mind:
Construction costs vary widely based on location, materials, and complexity. On average, expect to pay $150-300 per square foot for new construction, which means a 1000 sq ft home could range from $150,000 to $300,000.

Design fees for custom plans typically run $2,000-$8,000, depending on the level of customization required.
Land costs can significantly impact overall expenses, especially in desirable locations.
Finishing touches like flooring, cabinetry, and appliances can add substantial value to your investment. It's worth budgeting for quality materials that will last and look good over time.
Remember that while initial costs may be lower, the long-term savings from reduced maintenance and utility bills often make these homes financially smart choices.
Making the Most of Every Square Foot
In a 1000 sq ft home, every inch counts. Here are strategies to ensure your space works as hard as possible:

Clever storage solutions are essential. Think about where you store things and how easily you can access them. Hidden storage behind doors, under stairs, or within built-in furniture can hide clutter while maximizing usable space.
Multi-purpose furniture can transform how you use your rooms. A coffee table with storage, a dining table that folds away, or a sofa bed that serves double duty are all smart investments.
Color and lighting play powerful roles in perception. Light colors reflect light and make spaces feel larger, while layered lighting creates depth and interest.
Vertical storage uses wall space effectively. Tall bookcases, tall cabinets, and wall-mounted shelving can store plenty of items without taking up floor space.
Smart window treatments can make a big difference. Sheer curtains let in light while providing privacy, while blinds can control light and temperature efficiently.
The goal isn't to make everything fit perfectly – it's to make everything feel purposeful and well-thought-out.
A 3 bedroom 1000 sq ft house plan represents more than just a building configuration – it's a lifestyle choice that prioritizes efficiency, sustainability, and intentional living. These homes prove that comfort and functionality don't require massive proportions. Whether you're designing a new home or renovating an existing space, focusing on smart layouts, strategic storage, and thoughtful design elements can create a home that feels both spacious and personal. The key lies not in avoiding constraints, but in embracing them creatively. In a world where bigger often seems better, sometimes smaller really is better – and that's something worth celebrating.