Picture this: you're standing in your newly built home, feeling the warmth of sunlight streaming through large windows, the gentle sound of children playing in the backyard, and the satisfaction of having created the perfect space for your family. That's exactly what one story three bedroom house plans can deliver. These layouts aren't just about square footage – they're about creating spaces where memories are made, where comfort meets functionality, and where every room tells a story.
When it comes to designing the perfect family home, few configurations capture the imagination quite like one story three bedroom house plans. These layouts offer a unique blend of accessibility, efficiency, and spaciousness that appeals to everyone from young families to growing households. Whether you're planning your first home, downsizing, or simply looking to maximize your living space, understanding the nuances of these designs can make all the difference in creating a home that truly works for you. From the way light flows through each room to how traffic moves between spaces, every element matters when crafting the ideal one story three bedroom layout.
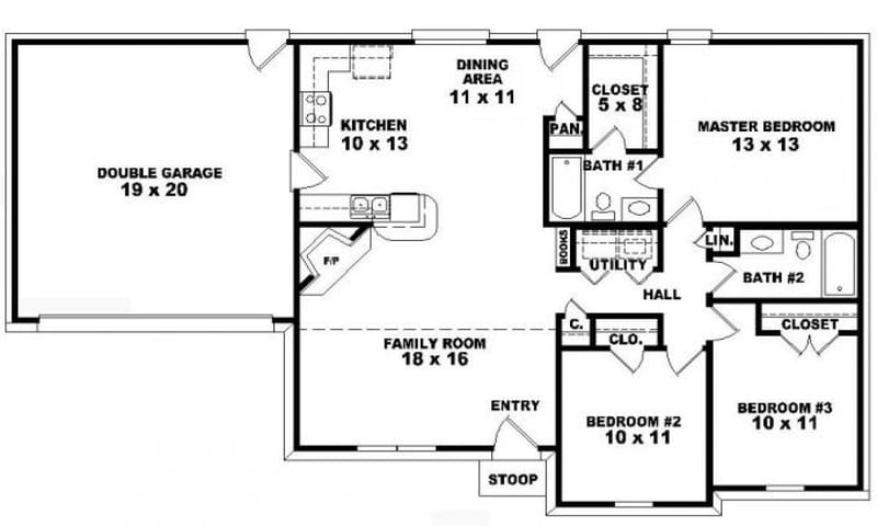
Understanding One Story Three Bedroom House Plans

One story three bedroom house plans represent a popular housing configuration that combines practicality with comfort. These homes feature all living areas on a single floor, eliminating the need for stairs and making them ideal for families with young children, elderly members, or anyone who values easy mobility. The typical layout includes three bedrooms, usually with one master suite featuring a private bathroom, and two additional bedrooms that can serve as children's rooms, guest rooms, or home offices. This design approach maximizes space utilization while maintaining an open, airy feel that many homeowners find appealing.
Key Design Elements and Layout Options
The beauty of one story three bedroom house plans lies in their versatility. Here are some common approaches:

Each style offers different advantages. For instance, the traditional layout provides clear separation between public and private spaces, while open concept designs create a sense of spaciousness and encourage family interaction. The master suite arrangement gives priority to privacy, particularly important for homeowners with aging parents or those who work from home.
Practical Considerations for Family Living
When selecting a one story three bedroom house plan, several practical factors deserve attention:

Consider how your family will actually use the space. Do you need a dedicated study? Will you want a breakfast nook? How much storage do you really need? These questions shape the best layout for your specific situation. Many successful designs incorporate multi-purpose rooms that can adapt as your needs change.
Space Optimization Techniques
Efficient use of space becomes crucial in one story three bedroom house plans. Smart strategies include:

These techniques transform standard layouts into homes that feel larger than their actual measurements. For example, a small dining area can double as a homework station for children, while cleverly placed windows can make a narrow hallway feel more spacious.
Cost-Effective Design Strategies
Building or remodeling with one story three bedroom house plans doesn't have to break the bank. Some money-saving approaches include:

Many homeowners discover that thoughtful planning during the design phase can save thousands of dollars during construction. Simple decisions like choosing a straightforward roof design or selecting cost-effective flooring options can significantly impact your budget without sacrificing quality or aesthetics.
Modern Trends in One Story Three Bedroom Designs
Contemporary one story three bedroom house plans reflect current lifestyle preferences and technological advances:
These trends show how modern homeowners want homes that support their digital lifestyles while remaining comfortable and sustainable. The integration of smart home technology, for instance, allows for remote control of various household functions, making daily routines more convenient.
One story three bedroom house plans offer an exceptional balance of practicality and comfort that makes them an excellent choice for many families. Whether you're building your first home, moving to a new area, or simply looking to upgrade your living space, understanding these layouts can help you make informed decisions about your future home. The key lies in matching the design to your specific needs, lifestyle, and budget. Remember, the best house plan isn't necessarily the most expensive or the most trendy – it's the one that fits your life perfectly. Take time to explore different options, consider your priorities carefully, and don't hesitate to consult with professionals who can help bring your vision to life. After all, your home should feel like a reflection of who you are and what you value most.