When you're thinking about creating the perfect living space, 1800 square feet often emerges as the sweet spot between comfort and efficiency. It's large enough to provide room for family life and personal spaces, yet small enough to manage easily. This guide explores how to make the most of every inch in your new home.
Picture this: You're standing in a newly built home, looking around at the open kitchen, the cozy living area, and the peaceful bedrooms. The layout feels just right. No cramped corners, no wasted space, just good design. That's what happens when you get your 1800 square foot home right. Many people think that smaller homes mean sacrificing comfort, but that's simply not true. With smart planning, you can have a wonderful place to live that's both functional and beautiful. Whether you're building from scratch or renovating, understanding how to use space effectively is key.
Understanding the 1800 Square Foot Advantage
An 1800 square foot home offers several benefits that make it appealing to many buyers. First, let's talk about affordability. Smaller homes generally cost less to build and maintain. Utilities are lower, insurance is cheaper, and repairs are manageable. Plus, there's less time spent cleaning and maintaining the space. For families, 1800 sq ft provides room for a master suite, two or three bedrooms, a kitchen, dining area, and living space all in one comfortable package. It's perfect for growing families who want to stay within budget while still having plenty of room. Think of it like a well-fitted jacket - not too tight, not too loose, just right. The right balance between space and practicality makes 1800 square feet ideal for many lifestyles.

Key Layout Considerations
Designing a home starts with understanding how people actually live. You need to think about traffic flow, how rooms connect, and what activities happen where. In a typical 1800 sq ft home, you'll want to consider:
A common mistake is placing the kitchen in a corner far from living spaces. Instead, aim for a central location that allows conversation during cooking. Having the dining area close to the kitchen helps with meal service. Consider how much space you really need for each room. Sometimes a 12x12 bedroom works better than a 14x14, especially if you can add a walk-in closet or storage area nearby. These small changes can make a big difference in how your home feels.
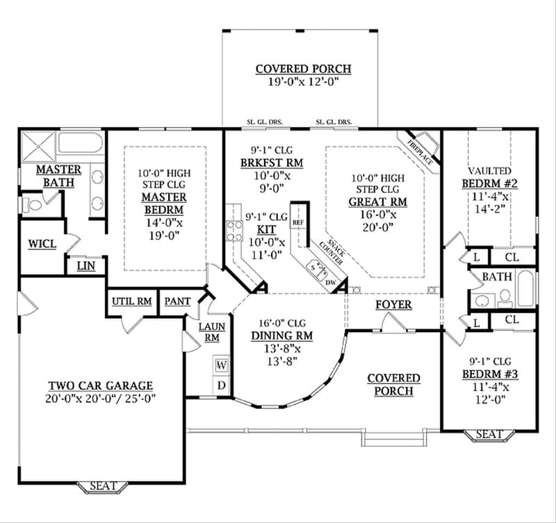
Popular Floor Plan Styles

There are several proven floor plan styles that work well for 1800 square feet. Let's look at some of the most popular options:
The Ranch Style: This design features one main floor with a long, low profile. It's great for families who prefer to keep everything on one level. Think of it like a wide, flat pancake that stretches across the lot. You might see a large living room, a galley-style kitchen, and bedrooms arranged along the back wall.
The Split-Level: This style uses different floor levels to separate spaces. You'll find a living area on one level, bedrooms on another, and sometimes even a basement or lower level. It's perfect for homes with sloped lots.
The Traditional Layout: This follows classic American home designs with a front entry, living room, dining area, and kitchen. Bedrooms are typically toward the back of the house. This style is familiar and easy to navigate.

Modern Minimalist: This approach uses clean lines, lots of windows, and open spaces. It's popular with younger families and people who love simple, uncluttered living. Think of it as a blank canvas where you can add personal touches later.
Essential Rooms and Their Sizing
Each room in your 1800 square foot home needs to be thought out carefully. Here's what typically works well:
Remember, these are just starting points. Every family's needs are different. Some people need more office space, others more storage, and some prefer extra entertaining areas. The key is flexibility in your design.

Maximizing Space Efficiency
In 1800 square feet, every square foot counts. Here are some smart ways to make your space work harder:
One clever trick is using a Murphy bed in a guest room or office. When not in use, it folds up against the wall, freeing up the entire space for other uses. Another tip is choosing furniture that serves multiple functions. A coffee table with hidden storage can hold books, games, or blankets. These little details make a big impact on how your home feels.
Cost Considerations and Budget Tips

Building or buying a 1800 square foot home involves costs that vary significantly based on location and design choices. Here's what you should expect:
To save money, consider these strategies:
It's worth noting that a well-designed 1800 sq ft home can last decades. Investing in quality materials and thoughtful design pays off in reduced maintenance and increased satisfaction.
Designing a 1800 square foot home isn't just about fitting rooms into a box. It's about creating a space that reflects your lifestyle and meets your family's needs. Whether you're dreaming of a cozy ranch-style home or a modern minimalist haven, the key lies in thoughtful planning and smart choices. Remember, the best house plans are those that adapt to how you actually live. Take time to think about how you move through your home, what activities happen where, and what makes you feel comfortable. The 1800 square feet mark offers incredible flexibility for achieving that perfect balance between practicality and beauty. With careful consideration of layout, room sizing, and space optimization, your home can be exactly what you've always wanted. The journey to finding your ideal 1800 square foot space is as rewarding as the final result.