In a world where bigger often seems better, there's something deeply satisfying about the simplicity and efficiency of a well-designed 1200 square foot ranch house. These homes offer the perfect balance between manageable living space and functional comfort. Whether you're a first-time homebuyer, downsizing, or looking for a cozy starter home, these plans provide thoughtful solutions that maximize every inch.
The 1200 square foot ranch house plan has become increasingly popular in recent years. Why? Because it strikes the ideal balance between affordability and functionality. These homes aren't just about size—they're about smart design, efficient layouts, and creating comfortable spaces that feel much larger than their square footage suggests. Think of it like a well-crafted puzzle where each piece fits perfectly, leaving no wasted space.
Why Choose a 1200 Sq Ft Ranch House?
There are several compelling reasons why 1200 square feet has emerged as such a popular choice for homebuyers:
These homes work beautifully for people who want to live comfortably without the burden of managing a large property. Picture a couple who wants to enjoy a quiet weekend morning in their kitchen, or a retiree who appreciates the ease of maintaining just one floor of living space.

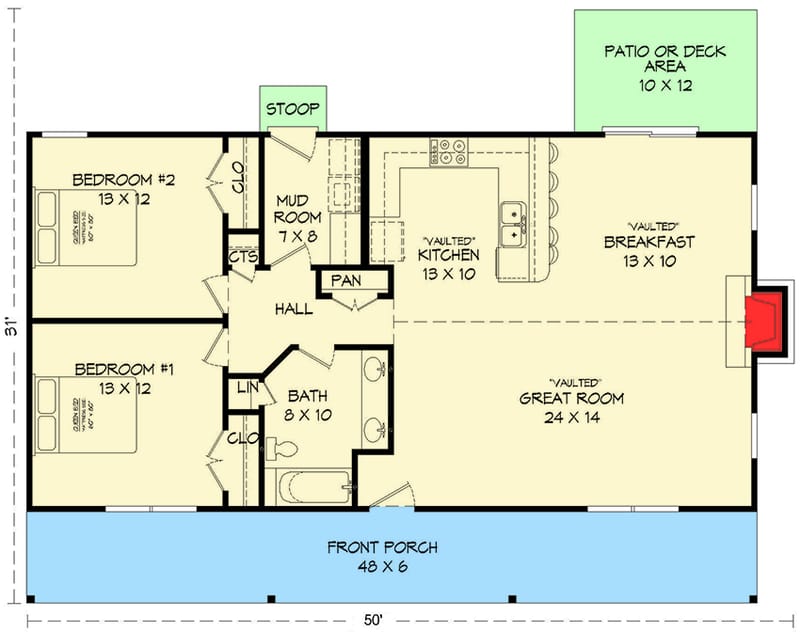
Key Design Features
What makes a 1200 sq ft ranch house special isn't just its size—it's how the space is organized:
Consider a kitchen island that doubles as breakfast bar during the day and dining table in the evening. Or imagine a bedroom that serves as both sleeping space and a quiet reading nook during the afternoon. These clever design elements make every square foot count.
Popular Layout Options
When designing a 1200 sq ft ranch house, architects and homeowners typically gravitate toward these common arrangements:

A 3-bedroom ranch might feature a master bedroom with ensuite bathroom and walk-in closet, while two smaller bedrooms share a hall bathroom. This setup works wonderfully for families with children who are growing up or for couples who prefer separate sleeping quarters.
Practical Considerations
Before settling on a 1200 sq ft ranch house plan, consider these important factors:
These homes often require careful planning to ensure they meet all practical needs. For instance, a family might want to think ahead about whether they'll need to accommodate aging parents or if they plan to grow their family in the near future. Sometimes a small addition or renovation can make a huge difference in how the space feels over time.
Cost-Benefit Analysis

Understanding the financial aspects helps you make informed decisions:
Think about it this way: spending $180,000 to $300,000 on a 1200 sq ft home versus $400,000+ on a 2500 sq ft home gives you more money for furnishings, improvements, or investment. Plus, you're not paying for all those extra rooms that may sit unused most of the time.
Maximizing Your Limited Space
The secret to success with 1200 sq ft ranch houses lies in smart organization and creative thinking:
A well-planned pantry that also serves as a small office area can transform how you use a single space. Or consider a living room with a fold-down Murphy bed that becomes a guest room when needed. These design choices can completely change how you experience your home.

Common Mistakes to Avoid
Even experienced designers sometimes overlook crucial details when working with smaller spaces:
One common error is assuming that because a space is small, it must look simple. In reality, good design in small spaces often requires more thoughtful consideration of materials, colors, and functionality. A well-lit kitchen with excellent counter space and plenty of storage can make the difference between a frustrating daily routine and a joyous cooking experience.
Making Your Plan Work for You
The best 1200 sq ft ranch house plans are those that match your actual lifestyle:

For example, a busy parent might prioritize a kitchen that works well for meal prep and family gatherings. Meanwhile, a retired person might focus more on accessibility features and low-maintenance surfaces. The key is matching the design to what matters most in your daily life.
Finding the Right Plan
Where do you start looking for the perfect 1200 sq ft ranch house plan?
Many online platforms now offer free downloadable plans that you can modify to suit your needs. But remember, the best approach often combines professional guidance with your personal preferences. You might find inspiration from a plan that's almost perfect, then tweak it to better fit your specific situation.
Final Thoughts
The 1200 square foot ranch house represents more than just a size category—it's a lifestyle choice that emphasizes intentionality and purposeful design. These homes prove that you don't need a lot of space to live well. When thoughtfully planned, they can offer comfort, efficiency, and even a sense of tranquility that larger homes sometimes lack.
Whether you're buying a new construction home or renovating an existing space, focusing on smart layout decisions can make all the difference. Remember, it's not about having the biggest house—it's about having the right house for your life.
The 1200 square foot ranch house continues to capture the imagination of homeowners seeking practicality without sacrificing comfort. These homes demonstrate that thoughtful design and smart planning can create spaces that feel larger than their measurements suggest. By focusing on efficient layouts, multi-functional areas, and intentional design choices, you can create a home that truly serves your needs. Whether you're a young couple starting out, a family downsizing, or someone who simply appreciates the beauty of simplicity, these plans offer a compelling path forward. The key lies in choosing a design that aligns with your lifestyle rather than simply chasing square footage numbers.