Imagine waking up in a spacious, modern home while knowing that your parents or adult children have their own private living space just steps away. This isn't just a fantasy anymore – it's becoming a reality for many families seeking smart, functional housing solutions. Barndominiums with in-law suites are capturing attention across America, offering a perfect blend of open-concept living and separate family quarters.
In today's world, families are looking for creative ways to stay close while maintaining privacy. The barndominium concept has evolved far beyond its humble agricultural roots, transforming into sophisticated living spaces that can accommodate multiple generations under one roof. When you add an in-law suite to this mix, you're creating something truly special – a home that honors tradition while embracing modern needs. These designs aren't just about saving money or maximizing space; they're about fostering stronger family bonds through thoughtful architecture.
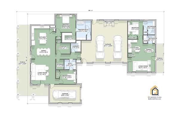
What Is a Barndominium with In-Law Suite?
A barndominium with an in-law suite combines the industrial charm of a barn-style structure with the practicality of separate living quarters. Think of it as a large, open main house with a smaller, self-contained apartment area designed for family members who need their own space. This setup allows grandparents to live independently while remaining close to their grandchildren, or grown children to have their own privacy within the family home.
The in-law suite typically features its own entrance, kitchenette, bathroom, and sleeping area. It can be built as a separate wing or integrated into the main structure. What makes this concept so appealing is that it addresses two major concerns: family connection and personal independence. Many people find that this arrangement creates the perfect balance between togetherness and autonomy.
This type of home design has gained popularity because it solves real-world problems. Families often struggle with how to care for aging parents while keeping their own households running smoothly. A barndominium with in-law suite offers a solution that feels both practical and heartwarming.
Benefits of Multi-Generational Living Spaces

The advantages of having a barndominium with in-law suite extend far beyond simple space-saving. Here's why more families are choosing this approach:
Consider this scenario: A couple in their sixties wants to age in place but prefers not to be alone. Their adult children live nearby but have busy lives. With a barndominium setup, they can all be close enough to support each other while maintaining their individual routines. It's not about forcing families together – it's about creating options that work for everyone.
Key Design Considerations
Planning a barndominium with an in-law suite requires careful thought about several important elements:
Separate entrances are crucial – Every good in-law suite needs its own door, either leading directly outside or through a private hallway. This ensures privacy and independence for residents while maintaining accessibility.
Soundproofing matters – Walls, floors, and ceilings need proper insulation to prevent noise from traveling between areas. The kitchen and bathroom in the suite should be well-sealed to avoid disturbances.
Utility separation – While sharing the main house's power and water systems can save money, consider installing separate meters for billing purposes and easier maintenance.

Safety considerations – If elderly family members will be living in the suite, ensure the space meets accessibility standards. This might include grab bars, non-slip surfaces, and appropriate lighting.
Flow and accessibility – The main living areas should be easily accessible from both the primary residence and the in-law suite. This includes pathways, stairs, and any ramps that might be needed.
Popular Layout Options
There are several effective ways to arrange a barndominium with an in-law suite, each offering different benefits:
Attached wing design: The most common approach places the suite as an extension off the main structure. This keeps everything connected while providing distinct areas. It's ideal for those wanting the convenience of being near the main house but still needing their own space.
Detached unit approach: Some families prefer a separate building entirely, connected by a walkway or covered bridge. This gives maximum privacy and can be built with its own foundation and utilities.
Split-level configuration: This layout uses different floor levels to separate areas. The main living space might be on the ground level while the in-law suite occupies a lower level or upper floor.

Open concept integration: Some designs blend the suite seamlessly into the main house, using furniture or architectural features to define spaces rather than walls. This creates a feeling of openness while still providing separate areas for different family members.
Each option has its pros and cons. The attached wing is usually the most cost-effective, while detached units offer the greatest independence. Consider your family's specific needs and lifestyle when deciding which layout suits you best.
Cost Factors and Budget Planning
Building a barndominium with an in-law suite involves several financial considerations that can vary greatly based on location, materials, and complexity:
Construction costs typically range from $150 to $300 per square foot, depending on finishes and features. Adding an in-law suite increases overall costs but can be offset by shared expenses.
Materials play a big role – Steel frame construction is popular for barndominiums and can be cost-effective. However, premium finishes and custom features will increase the final price.
Permitting and zoning – Check local building codes carefully, as some areas may have restrictions on accessory dwelling units. Permits can add several thousand dollars to the project.

Hidden costs to consider: These include utility connections, landscaping, parking, and potential upgrades to existing infrastructure. Also factor in time for inspections and possible delays.
It's worth noting that while the initial investment seems high, many families find that the long-term benefits – including reduced childcare costs and shared responsibilities – make it financially worthwhile. Some even report increased property values with this type of home.
Legal and Regulatory Requirements
Before diving into any barndominium project, understanding the legal landscape is essential. Laws vary dramatically by location, and regulations around accessory dwelling units are changing rapidly.
Zoning restrictions are often the biggest hurdle. Many cities require special permits or variances to build additional living spaces. Some areas have strict limits on size, height, or number of occupants.
Building codes must be followed for both the main structure and the in-law suite. These cover everything from electrical requirements to fire safety measures. You'll likely need to submit detailed plans for approval.
Property tax implications can also be significant. Some jurisdictions treat accessory units as separate properties, which could affect your tax situation.

Homeowner association rules may apply if you're in a planned community. These can impose additional restrictions or requirements on modifications.
Don't overlook the importance of consulting with local professionals. Building inspectors, zoning officials, and possibly a real estate attorney can help navigate these complexities and ensure your project stays compliant.
Real-Life Examples and Success Stories
Many families have successfully implemented barndominium designs with in-law suites, creating beautiful and functional living spaces. One example comes from a family in Texas who built a 3,000-square-foot barndominium with a 600-square-foot suite on the second floor. The grandparents love having their own space while staying close to their grandchildren.
Another family in Colorado chose a detached approach, building a separate 800-square-foot structure connected by a covered walkway. They found this gave them the ultimate privacy while maintaining easy access to each other.
A third example shows how one family in Oregon adapted an existing barn into a barndominium with a converted hay loft serving as the in-law suite. This approach saved money while preserving the historic character of their property.
These stories highlight how flexible the concept can be. Whether you're starting from scratch or working with existing structures, there are creative solutions for every situation. What matters most is finding a design that fits your family's unique needs and lifestyle.
Barndominiums with in-law suites represent more than just architectural trends – they embody a growing desire among families to create meaningful connections while respecting individual needs. These homes offer practical solutions to modern challenges like caring for aging relatives, supporting young adults, and maintaining family traditions.
Whether you're considering this type of home for your own family or simply curious about the concept, the key takeaway is that thoughtful planning and clear communication about expectations can make all the difference. The right design balances privacy with togetherness, comfort with functionality.
As we continue to evolve our relationship with space, family, and community, barndominiums with in-law suites show us that innovation and tradition can coexist beautifully. They remind us that good design isn't just about aesthetics – it's about creating spaces that support the way we actually live and love.