Imagine having your own family close by, yet maintaining privacy and independence. That's exactly what a well-designed 4 bedroom house plan with a separate inlaw apartment entrance offers. These homes have become increasingly popular because they address one of the most pressing needs in today's families - wanting to keep loved ones nearby while preserving personal space. Whether you're planning to build a new home or renovate an existing one, understanding how to incorporate this feature seamlessly can transform your living situation.
The concept of inlaw apartments has evolved far beyond simple guest quarters. Today's homeowners are seeking thoughtful designs that provide both connection and autonomy. A 4 bedroom house plan with a separate inlaw apartment entrance represents the perfect middle ground between family closeness and individual privacy. These layouts allow extended family members to live independently within the same property, creating opportunities for shared meals, childcare assistance, and mutual support while maintaining their own space. This arrangement has become especially appealing to baby boomers who want to age in place alongside their children, and younger families who value having grandparents nearby.
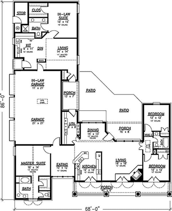
Understanding Inlaw Apartment Design Basics

When designing a 4 bedroom house with a separate inlaw apartment, the key lies in thoughtful spatial planning. The inlaw unit should feel like its own home while remaining connected to the main house. Think about the flow of traffic between areas, privacy considerations, and how the two spaces will function independently. The separate entrance is crucial - it should provide direct access to the inlaw apartment without requiring guests to pass through the main living areas. Many designers start with a basic floor plan that includes a kitchenette, bathroom, and sleeping area, then add features based on specific needs. Consider the size of the inlaw space carefully; it should accommodate daily living needs without feeling cramped. A typical setup might include a small kitchen or breakfast area, a full bathroom, and one or two bedrooms.
Key Layout Considerations
Layout decisions make or break the success of an inlaw apartment design. Here are some essential factors to consider:

Many successful designs incorporate a hallway or foyer that leads directly to the inlaw apartment, providing a buffer zone between the main house and guest space. Some homeowners prefer to locate the inlaw unit on the first floor for easier access, while others opt for a second-floor setup that provides additional privacy. The choice often depends on the overall architectural style and the specific needs of the family members who will occupy each space.
Popular Design Styles and Features
Modern inlaw apartment designs blend functionality with aesthetic appeal. Contemporary homeowners often choose clean lines and open-concept layouts that maximize space efficiency. Popular features include:

Some designs incorporate a small dining area or sitting room, while others focus purely on bedroom and kitchen functions. The choice often reflects the intended residents' lifestyle preferences and whether they'll be primarily using the space for temporary visits or permanent residence. Many architects recommend including a small balcony or patio area when possible, giving inlaw residents their own outdoor retreat.
Cost Analysis and Budget Planning
Adding an inlaw apartment to a 4 bedroom house involves significant investment, but it often pays dividends in family relationships and property value. Construction costs typically range from $30,000 to $80,000 depending on size, finishes, and complexity. The most important factors affecting cost include:

It's worth noting that many homeowners find the investment worthwhile due to reduced future care costs and increased property value. The added functionality often makes these homes more attractive to potential buyers, particularly in areas where family-oriented housing is in demand. Consider setting aside 10-15% of your total budget for unexpected expenses during construction.
Benefits Beyond Family Support
Beyond providing family support, these designs offer numerous advantages for homeowners. The separate entrance allows for flexible living arrangements - perhaps your adult children can move in temporarily while attending school, or elderly parents can stay nearby without being a burden on the main household. The inlaw apartment can serve multiple purposes:

These homes also tend to appreciate in value more quickly than traditional single-family dwellings. The added convenience and flexibility make them highly desirable in competitive real estate markets. Additionally, many insurance companies recognize the safety benefits of having separate living spaces, sometimes offering favorable rates for such properties.
Practical Tips for Implementation
Creating the perfect 4 bedroom house plan with inlaw apartment requires careful planning and consideration. Here are some practical tips to guide your project:
Don't overlook the importance of good lighting throughout the inlaw space. Natural light makes the area feel more spacious and welcoming. Also consider the noise level between the two units - soundproofing materials can prevent disturbances while maintaining the sense of openness. Finally, remember that the design should reflect the personality and lifestyle of both the main household and the inlaw residents.
A 4 bedroom house plan with a separate inlaw apartment entrance represents more than just clever architecture - it embodies the evolving nature of family relationships and modern living. These homes offer practical solutions to real-life challenges while providing the emotional benefits of family proximity without sacrificing personal space. Whether you're planning a new construction project or considering renovations to an existing home, investing in this type of design can significantly enhance your quality of life. The key is balancing functionality with comfort, ensuring that both the main household and inlaw residents can enjoy their respective spaces while maintaining strong connections. With thoughtful planning and professional guidance, these homes can become the foundation for decades of happy family memories and practical support. The growing popularity of this design approach suggests that more homeowners will discover the value of having family close by while preserving their individual independence.