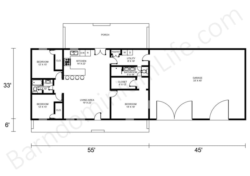
Picture this: a sprawling barn converted into a cozy home with three bedrooms, open spaces, and that authentic country feel. It's more than just a dream anymore. These unique living spaces are becoming increasingly popular among those seeking something different from traditional housing. Whether you're considering building one from scratch or renovating an existing structure, understanding how to design effective floor plans is crucial. Let's explore what makes a great 3-bedroom barndominium layout that works for families, couples, or even solo adventurers.
Barndominiums have captured the imagination of many homeowners looking for something beyond standard house designs. They offer a unique blend of rustic appeal and modern comfort. When it comes to 3-bedroom layouts, the challenge lies in maximizing space while maintaining functionality. These homes aren't just about having three rooms - they're about creating a harmonious living environment where every square foot serves a purpose. From the way light flows through large windows to how furniture arrangements affect daily routines, every element matters. We'll walk through the essential components that make a barndominium floor plan work exceptionally well for families and individuals alike.

Understanding Barndominium Basics
Before diving into specific floor plans, it's important to grasp what makes a barndominium special. Unlike typical houses, these structures start with a metal or wood frame building, often originally designed for agricultural purposes. The beauty lies in their adaptability. You can keep the original industrial character or transform it completely. For 3-bedroom layouts, the key is balancing openness with privacy. A good barndominium floor plan will have enough room for movement but won't feel empty or cold. Consider the size of your space carefully. A 1,200 square foot barndominium might feel cramped with three bedrooms, while 2,000+ square feet offers plenty of breathing room. Think about how you want to live and then design accordingly. Many people find that the flexibility of barndominiums allows them to customize their space in ways that standard homes simply cannot match. Some prefer a more open concept, others want defined areas. Both approaches can work beautifully when properly planned.

Key Layout Considerations
When designing a 3-bedroom barndominium floor plan, several factors come into play. First, consider traffic flow. People move through spaces naturally, so the main pathways should be intuitive and unobstructed. The kitchen, dining area, and living space often form a central hub where most activity occurs. Bedrooms need quiet spots away from high-traffic areas. A common approach places the master suite at one end of the home while the other two bedrooms are positioned nearby for easy access to shared bathrooms. Storage space is another critical factor. You don't want to sacrifice storage for aesthetics. Built-in shelves, under-stair storage, and clever closet solutions can make all the difference. Lighting also plays a big role. Natural light creates warmth, but artificial lighting needs to complement the space effectively. Don't forget about utilities like plumbing and electrical work - these elements need careful planning during the design phase. Every detail matters when creating a functional living space.

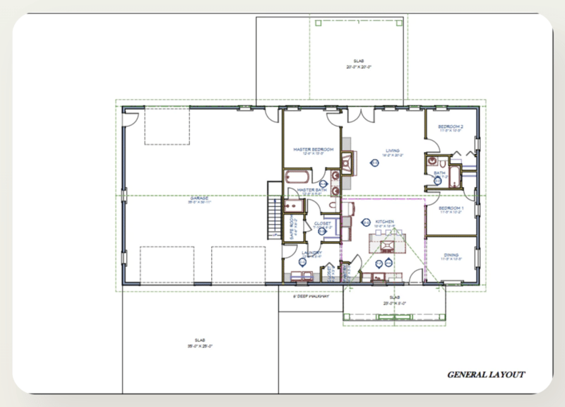
Master Suite Placement Strategies
The master bedroom is often the most important room in a 3-bedroom barndominium. Where you place it affects everything else. Some people prefer it at the far end of the structure for maximum privacy, while others like it near the center for easy access. When positioning the master suite, think about views and natural light. Large windows can make a significant impact on mood and energy levels. Consider whether you want a private bathroom or if sharing one with another bedroom makes more sense. Sometimes, a walk-in closet adds tremendous value to the master bedroom. It also provides additional storage that keeps the rest of the home clutter-free. Many people appreciate ensuite bathrooms, especially when entertaining guests. However, if space is limited, a well-designed shared bathroom can still feel luxurious with proper planning. The master suite should feel like a retreat within your home - a place to relax and recharge after a busy day.

Bedroom Arrangement Options
There are several ways to arrange three bedrooms in a barndominium. One popular method puts the master bedroom on one side with the other two bedrooms on the opposite side. This setup creates a natural division between private and shared spaces. Another option involves placing all three bedrooms along one wall, allowing for a more centralized family area. For larger homes, you might consider a split-level arrangement where bedrooms are on different levels. This can add visual interest and create distinct zones within the home. The key is finding what works for your lifestyle and family dynamics. Some families prefer bedrooms close together for easy supervision of children, while others value more distance between sleeping areas. Think about how often people will need to move between rooms and plan accordingly. Consider the size of each bedroom too. A master suite typically needs more space than guest bedrooms, but both should feel comfortable and welcoming. Remember, these are not just rooms - they're places where memories are made.

Open Concept vs. Defined Spaces
One of the biggest decisions in barndominium design is choosing between open concepts and defined spaces. Open floor plans create a sense of spaciousness and allow for better interaction between family members. They're particularly appealing in kitchens and living areas where conversations flow easily. However, too much openness can make a home feel chaotic or lack privacy. A balanced approach often works best. You might have an open kitchen and living area but separate the bedrooms behind walls or with partial dividers. This gives you the benefits of both worlds. Consider using features like built-in bookcases or columns to define spaces without completely blocking sightlines. The trick is maintaining flow while preserving necessary boundaries. Many successful barndominiums use this hybrid approach to create dynamic living spaces that feel both connected and comfortable. The choice ultimately depends on your personal preferences and how you intend to use the space.
Practical Tips for Success
Designing a 3-bedroom barndominium requires careful planning and attention to detail. Start by measuring your space accurately and sketching out possible layouts. Consider hiring an architect or designer who understands barndominium construction. Their experience can save you time and money during the building process. Don't overlook practical considerations like heating and cooling systems. These homes often require special attention due to their large open spaces. Insulation is crucial, especially in extreme climates. Also, think about future needs. Will you need extra space later? Can the layout accommodate growing families or aging parents? Flexibility matters. Finally, embrace the unique characteristics of your building. If you're working with an existing barn, work with its natural features rather than fighting against them. The best barndominiums celebrate their history while meeting modern needs. Remember, the goal isn't just to build a house - it's to create a home that reflects your personality and supports your lifestyle.
Creating a successful 3-bedroom barndominium floor plan takes thought, creativity, and attention to practical details. The key is understanding how to balance openness with privacy, functionality with aesthetics. Whether you choose a traditional layout or something more innovative, the most important thing is that it fits your life. These homes offer incredible opportunities for customization and personal expression. From the placement of your master suite to the flow between rooms, every decision shapes your daily experience. Don't get overwhelmed by complexity - start simple and build from there. The most satisfying barndominiums are those that feel authentic to their owners. Take time to envision how you want to live, then design your space to support that vision. With careful planning and creative thinking, your 3-bedroom barndominium can become exactly what you've always dreamed of.