There's something magical about the sweet spot that is 1800 square feet. Not too big, not too small, just right for most families looking to build or buy their dream house. This size strikes the perfect balance between comfort and efficiency, offering enough space for a growing family while keeping maintenance manageable.
When you think about home sizes, 1800 square feet often comes up as the ideal middle ground. It's large enough to feel spacious and comfortable, yet small enough to manage without breaking the bank. Whether you're planning a new construction project or searching for your next home, understanding what makes 1800 square foot layouts work so well can save you time, money, and stress. Let's dive into why this particular square footage has become such a popular choice among homeowners.
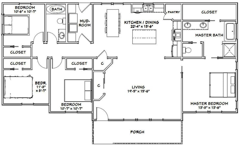
Why 1800 Square Feet Works So Well

This size offers incredible flexibility in design and functionality. Think about it – you've got room for three bedrooms, two bathrooms, a kitchen, living areas, and even a bonus room or office. It's not overwhelming like a 3000+ square foot home, nor is it cramped like a 1200 square foot starter house. The key is finding the right balance between space and practicality. Many people find that 1800 square feet allows them to live comfortably without the burden of high maintenance costs or excessive utility bills.
Popular Layout Styles
Different layouts can make a huge difference in how you experience your home. Open floor plans are particularly popular because they create a sense of spaciousness and allow for better flow between rooms. A typical 1800 square foot home might feature:

Some designs favor traditional layouts with separate rooms, while others embrace modern open spaces. The choice often depends on lifestyle preferences and family needs.
Cost Considerations and Budgeting
Building or buying a 1800 square foot home requires careful financial planning. Construction costs vary significantly based on location, materials, and finishes chosen. On average, you can expect to pay between $150-$300 per square foot for new construction, which means a 1800 square foot home could range from $270,000 to $540,000. Buying an existing home in this size range might cost anywhere from $180,000 to $450,000 depending on the area and condition. Remember to factor in additional expenses like land costs, permits, and finishing touches.

Smart Design Tips for Maximum Space
Getting the most out of every square foot matters when working with 1800 square feet. Here are some strategies that make a big impact:
These approaches help ensure that your home feels roomy and functional despite its modest size.

Family-Friendly Features to Consider
For families, certain features can make all the difference in daily life. An 1800 square foot home works best when designed with children in mind. Some essential elements include:
Consider how your family will use the space over the next decade. What changes might you want to accommodate?

Finding the Right 1800 Square Foot Home
If you're looking to purchase rather than build, finding the perfect 1800 square foot home requires patience and research. Start by identifying neighborhoods that fit your lifestyle and budget. Look for homes that offer:
Don't forget to consider what you'll need to do with the space once you move in. Will you need room for guests, hobbies, or remote work? These factors can influence your final decision.
Whether you're building from scratch or searching for your perfect existing home, 1800 square feet provides a wonderful foundation for comfortable living. The key lies in thoughtful planning and smart design choices. This size offers enough room to spread out and live comfortably while remaining manageable in terms of upkeep and costs. Remember that the best home isn't necessarily the biggest one – it's the one that fits your lifestyle perfectly. Take your time with the process, consider all your needs, and trust that 1800 square feet can truly be your happy place.