Imagine waking up to the sound of birds chirping outside your window, surrounded by open space and natural light. Picture a home that feels both sturdy and welcoming, built with materials that have stood the test of time. That's exactly what pole barn homes offer. These structures aren't just for farmers anymore – they've evolved into beautiful, functional living spaces that blend traditional craftsmanship with contemporary comfort.
When you think about building a new home, you probably picture something with a traditional foundation and framing. But what if you could build a home that's both cost-effective and incredibly durable? Enter the pole barn home – a style that's been gaining popularity across the country. These homes might look simple on the outside, but they're full of possibilities when it comes to design and functionality. Whether you're a first-time builder or someone looking to renovate, understanding pole barn home house plans is crucial. The beauty of these structures lies in their versatility and the freedom they give you in terms of layout and style.
What Makes Pole Barn Homes Different?
Pole barn homes are distinct from conventional stick-built homes in several important ways. Instead of using a traditional foundation system, these homes rely on poles driven deep into the ground to support the structure. This method creates a unique framework that's both strong and flexible.
The key difference is in the construction approach. While traditional homes often use a concrete foundation and framed walls, pole barns utilize posts or poles that are typically made from wood, steel, or concrete. These poles carry the weight of the entire structure, allowing for larger spans without interior support beams. This means more open floor space and fewer interruptions in your living area.
Consider this: a typical residential home might require multiple load-bearing walls to support the roof structure. In contrast, a pole barn can span 40 feet or more between supports, creating vast open spaces that feel more like a cathedral than a standard house. It's no wonder why many people are drawn to this style of construction.
Design Flexibility and Layout Options

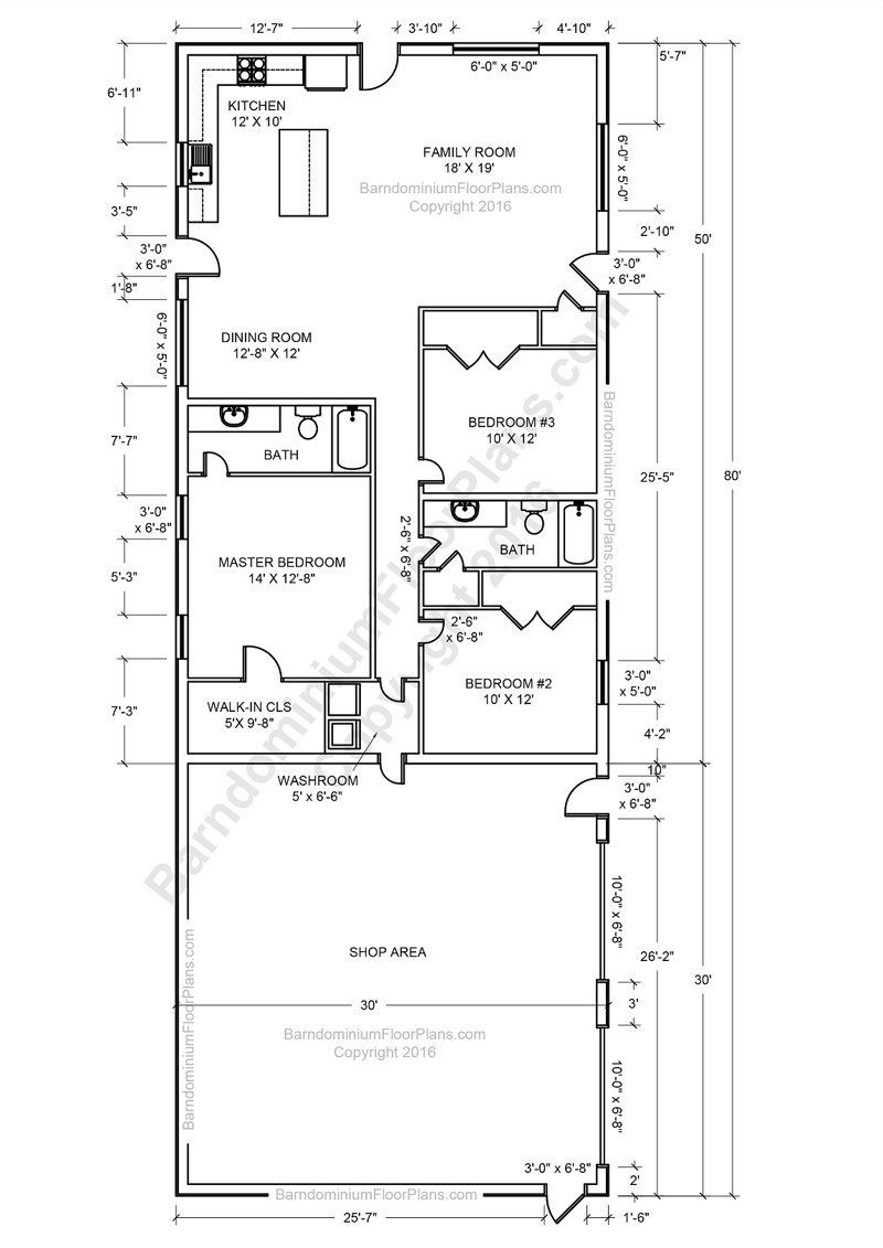
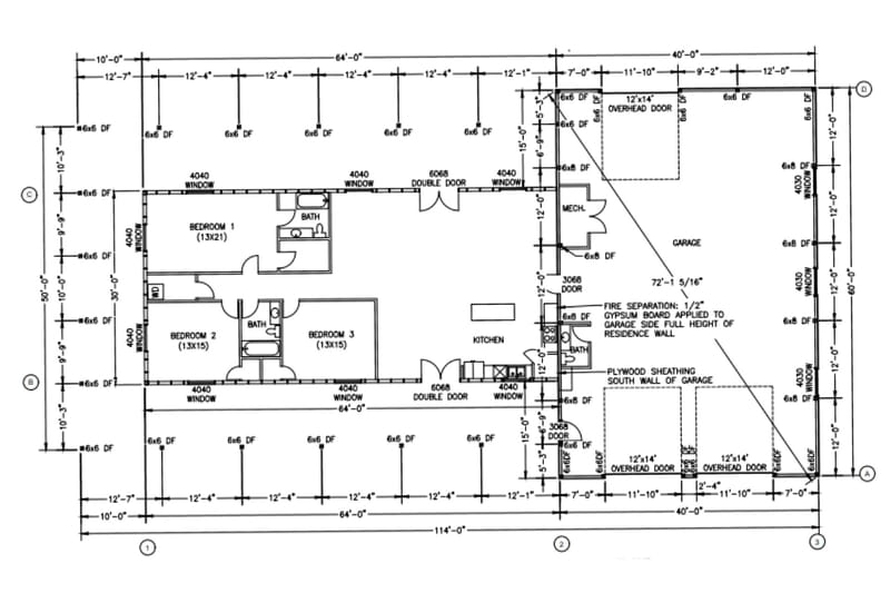
One of the biggest advantages of pole barn home house plans is the incredible flexibility they offer in terms of design. Unlike traditional homes with rigid layouts, pole barns can accommodate various shapes and sizes with relative ease.
Let's talk about some common layouts you'll see:
The lack of interior load-bearing walls means you can create spacious kitchens, great rooms, and open living areas that flow seamlessly together. Want a dining area that connects directly to your kitchen? No problem. Need a large workshop or garage attached to your living space? That works too.
Think about how much more natural movement you can have in your home. You won't find yourself feeling boxed in by walls that were necessary for structural reasons. Instead, you'll enjoy the freedom to arrange furniture and create zones based on function rather than engineering constraints.
Cost Considerations and Budget Planning
When it comes to building costs, pole barn homes often come out ahead compared to traditional construction methods. Why? Because they're built with efficiency in mind. The construction process is typically faster, which means lower labor costs.
Here's a quick breakdown of what you might expect:

But wait, there are some additional expenses to consider. The type of poles you choose, the complexity of your design, and local building codes can all impact your final budget. For example, if you want a two-story pole barn with a finished basement, your costs will naturally increase.
It's worth noting that while the initial investment might seem lower, you'll also want to factor in ongoing maintenance. Some materials like treated lumber may require periodic treatment, while others like steel poles might need inspection every few years. These considerations help ensure you get the most value from your investment.
Structural Strength and Durability Features
Don't let the simple appearance fool you – pole barn homes are built to last. The structural integrity comes from smart engineering and quality materials. When properly designed and constructed, these homes can withstand extreme weather conditions and even seismic activity.
The main components that contribute to their strength include:
A well-designed pole barn uses trusses or rafters that distribute weight evenly across the structure. This prevents sagging or structural issues over time. Many builders use engineered lumber or steel beams to ensure maximum strength.
Take the example of a homeowner in Oklahoma who built a pole barn home in 2008. Despite experiencing multiple severe weather events including tornadoes and hail storms, their home remained structurally sound. That's the kind of resilience that makes pole barn homes appealing to people in areas prone to harsh conditions.

The durability factor isn't just about weather resistance either. With proper maintenance, a pole barn home can easily last 50-70 years or more. Many people find that these homes age gracefully, developing character rather than showing signs of wear.
Planning Permission and Local Regulations
Before you start planning your dream pole barn home, you'll need to navigate local building regulations and zoning requirements. This step is crucial because not all areas allow pole barn construction, and those that do often have specific rules about size, placement, and design.
Key things to research include:
Some municipalities have embraced pole barn construction and even created special guidelines for these types of buildings. Others might require additional documentation or have stricter standards for materials used. It's always wise to check with your local building department early in the planning process.
Consider visiting a few local homes that have already been completed. Talk to homeowners about their experience with permits and any challenges they faced during the approval process. They might share insights about what the local officials expect and how to present your plans effectively.
Remember, each community is different. What's acceptable in one town might not be allowed in another. Always verify current codes before beginning any work.

Tips for Choosing the Right Plan for Your Needs
Selecting the right pole barn home house plan requires careful consideration of your lifestyle, budget, and future needs. Here are some essential factors to keep in mind:
Start by sketching out your ideal day-to-day activities. Where do you want to spend time? What spaces are most important to you? This exercise helps narrow down the best layout options.
Many people make the mistake of choosing a plan that looks great on paper but doesn't fit their actual needs. Take time to visualize yourself living in the space. Walk through the proposed rooms and imagine how you'll move through them.
Also consider working with a designer who specializes in pole barn construction. They can help you optimize your space and suggest improvements that might not be obvious at first glance. Sometimes a small adjustment in the layout can make a huge difference in usability.
Popular Design Styles and Features
Pole barn homes come in many different styles, each offering its own charm and functionality. From rustic farmhouse aesthetics to sleek modern designs, there's a style to match almost any taste.

Some popular design approaches include:
The exterior finishes can vary dramatically too. You might choose natural wood siding that weathers beautifully, metal panels for a more industrial look, or even brick or stone for added elegance.
Inside, the possibilities are equally exciting. Open concept living spaces, vaulted ceilings, and high windows create a sense of spaciousness that's hard to achieve in traditional homes. Many homeowners love incorporating custom cabinetry, built-in storage solutions, and creative uses for vertical space.
Don't forget about outdoor features. Many pole barn homes include covered porches, decks, or even outdoor kitchens. These additions can extend your living space beyond the walls of your home, giving you more opportunities to enjoy your surroundings.
Pole barn home house plans represent more than just a construction method – they're a way of thinking about home that values efficiency, strength, and flexibility. Whether you're drawn to the rustic charm, the cost savings, or the design freedom, these homes offer something special for a wide range of people.
The key is starting with good planning and understanding what you really want from your living space. Take time to explore different layouts, consider your budget carefully, and don't hesitate to seek professional advice when needed. The investment in proper planning pays dividends in the form of a home that meets your needs today and adapts to your changing circumstances tomorrow.
As you begin your journey toward building your pole barn home, remember that it's not just about the structure itself. It's about creating a place where you can live comfortably, work efficiently, and enjoy life with family and friends. With thoughtful design and quality construction, a pole barn home can be the foundation for decades of happy memories.