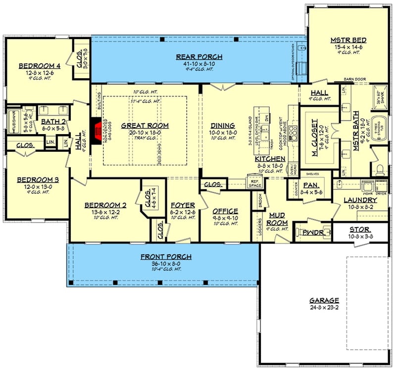
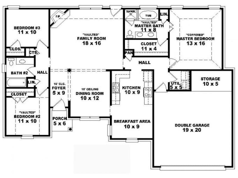
Picture this: you wake up every morning in a home that feels both spacious and cozy, with rooms that flow naturally into one another. That's exactly what modern 4 bedroom single story house plans offer. These designs have become increasingly popular because they strike the perfect balance between open living spaces and practical family living.
In today's fast-paced world, many families are seeking homes that offer both comfort and convenience. A single story layout with four bedrooms provides just that - easy access, open floor plans, and minimal maintenance. Whether you're planning your first home or looking to upgrade your current space, understanding what makes a great single story design can save you time and money in the long run. These layouts aren't just about looks though - they're about creating spaces that truly work for how people live today.
The Appeal of Single Story Living

Single story homes have a special charm that appeals to many homeowners. The absence of stairs means easier navigation for everyone in the household, especially older adults or those with mobility concerns. This design approach also creates a sense of openness that makes smaller spaces feel larger. Think about how much more welcoming a home feels when you can move freely between rooms without worrying about climbing steps.
There's something deeply satisfying about having all your living spaces on one level. You can easily host gatherings, have kids play in the living room while cooking dinner in the kitchen, and still keep your privacy. The layout naturally encourages interaction and connection among family members.
Essential Features for Modern 4 Bedroom Homes

When designing a modern 4 bedroom single story home, certain elements stand out as must-haves:
These features don't just look good - they serve real purposes. An open kitchen with island seating allows for conversation while preparing meals. A master suite designed with privacy in mind gives you a retreat after a long day. Storage built into walls and under staircases maximizes space efficiency without cluttering the visual appeal.
Layout Considerations and Flow

The success of any single story plan lies in its flow. Good design ensures that traffic patterns make sense and that each room serves its purpose without feeling cramped or isolated. For instance, placing the kitchen near the dining area and family room creates natural conversation zones. Keeping bedrooms away from high-traffic areas helps maintain peaceful sleep environments.
Consider how you actually use your space. Do you entertain often? Then ensure your living areas can accommodate guests comfortably. Are you a home cook? Your kitchen should feel inviting and functional rather than cramped. These practical considerations often determine whether a home feels like a place you want to live or simply a place you occupy.
Storage Solutions in Modern Designs

Storage isn't just about having enough space for your belongings - it's about organizing everything in a way that makes daily life easier. Modern 4 bedroom single story homes often incorporate:
These thoughtful storage solutions prevent homes from feeling messy and chaotic. They also make it easier to maintain clean, organized living spaces that stay beautiful over time.
Lighting and Design Elements

Natural lighting plays a crucial role in making single story homes feel bright and airy. Large windows, skylights, and glass doors allow sunlight to flood interior spaces. But good lighting goes beyond just natural light. Smart lighting choices can transform a space from ordinary to extraordinary.
Consider layered lighting that works for different times of day and activities. Ambient lighting provides overall illumination, task lighting focuses on specific activities like reading or cooking, and accent lighting highlights architectural features or artwork. The right combination creates a warm, welcoming atmosphere that changes with your schedule and mood.
Cost Considerations and Value
While modern 4 bedroom single story homes might seem expensive initially, they often provide excellent value over time. The construction costs are typically lower than multi-story alternatives since there are no stairs or elevator requirements. Maintenance tends to be simpler too, as everything is accessible from ground level.
However, the cost can vary significantly based on materials used, finishes chosen, and local labor rates. It's worth investing in quality materials that will last longer and require less frequent replacement. A well-designed home with good craftsmanship pays dividends in comfort and resale value.
Modern 4 bedroom single story house plans represent more than just architectural trends - they embody practical solutions for contemporary living. These homes offer flexibility, accessibility, and the kind of comfortable spaces that encourage family connections and personal well-being. Whether you're building a new home or renovating an existing space, focusing on flow, functionality, and thoughtful design elements will create a living environment that truly serves your lifestyle. The key is finding a balance between aesthetic appeal and real-world usability. After all, the best homes are those that make everyday moments feel special.