Imagine walking into a home where walls seem to dissolve, where the kitchen flows seamlessly into the living area, and where every room feels connected yet distinct. That's the magic of open floor plans with loft elements. These designs have become the gold standard for contemporary living, offering homeowners the best of both worlds: expansive space and cozy intimacy. But what exactly makes these layouts work so well? And why have they captured the hearts of so many?
In today's fast-paced world, our homes serve as more than just shelter—they're sanctuaries, workspaces, and social hubs all rolled into one. Open floor plans with loft features have emerged as the perfect solution to meet these diverse needs. The concept isn't new, but its evolution has been remarkable. Think of it like watching a favorite song evolve over time—same melody, different arrangement, and suddenly it feels fresh again. These layouts combine the freedom of open spaces with the character and functionality of loft-style design, creating homes that feel both modern and lived-in.
What Makes Open Floor Plans With Loft Unique
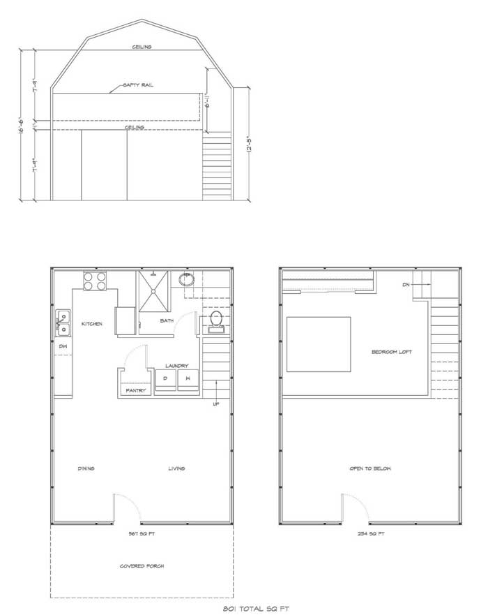
Open floor plans with loft elements aren't just about removing walls. They're about creating layers of space that serve different purposes while maintaining visual continuity. A typical loft in an open plan might feature a raised platform or mezzanine level that separates dining from living areas, or creates a private workspace above the main living area. This vertical separation brings a sense of sophistication that simple open spaces often lack.
The key is balance. Too much openness can feel cold and impersonal. Too much compartmentalization can make a space feel cramped. Loft elements provide that sweet spot where you get the best of both worlds. Picture a home where the main floor houses the family room and kitchen, while a second level above creates a quiet study or bedroom. It's like having two lives in one space.

This approach works particularly well in smaller homes where maximizing every square foot matters. A loft area can double as storage or serve as a creative space without sacrificing the feeling of openness.
The Evolution From Traditional to Modern Open Plans
If you've ever walked through older homes, you'll notice something striking: everything was separated by walls. Bedrooms had their own rooms, kitchens had their own spaces, and living areas were clearly defined. That's changing fast. The shift toward open floor plans began in the 1970s when architects started experimenting with less rigid boundaries.
But the addition of loft elements took this evolution further. Think about it—when did we start seeing these elevated spaces in residential architecture? Probably around the 1980s and 1990s, when industrial design influenced home aesthetics. Loft apartments in cities like New York and Los Angeles became popular because they offered affordable housing with high ceilings and raw architectural elements.
Today, even modest homes are incorporating these principles. The result? Homes that feel grander than their actual size, with more natural light and better airflow. These designs also tend to be more flexible, allowing homeowners to reconfigure spaces as their needs change over time.

Benefits of Loft Design Elements in Open Spaces
The advantages of combining open floor plans with loft features go beyond aesthetics:
Let's talk about that lighting aspect for a moment. When you have a loft element, especially one with skylights or large windows, you're essentially creating a vertical light shaft. This means sunlight can reach deeper into your home, illuminating areas that might otherwise remain dark. It's like having a built-in solar panel system that works automatically.
And the flexibility factor? Imagine having a home office that doubles as a guest room, or a reading nook that becomes a play area for children. These spaces adapt to life's changing rhythms, something traditional closed-off rooms simply cannot do.
Practical Considerations for Implementation

Not every home is suitable for open floor plans with loft elements, and that's okay. Before diving in, consider these factors carefully:
The structural aspects are perhaps the most critical. Many homeowners assume that adding a loft is simply about building a platform, but it involves complex engineering. The weight distribution, load-bearing capacity, and connection points all matter. It's like building a bridge in your living room—it needs to be solid and safe.
Budget-wise, expect to pay significantly more than a basic open floor plan renovation. Materials, labor, and permits all add up. Some homeowners find that they can incorporate loft elements gradually, starting with a small elevated area and expanding later. This phased approach can make the project more manageable financially.
Design Tips for Creating Successful Loft Features
When designing your open floor plan with loft elements, keep these principles in mind:

One common mistake is trying to make everything look too uniform. While consistency is important, variation keeps spaces interesting. For example, you might use hardwood floors throughout the main level but switch to carpeting on the loft for comfort and warmth. The contrast adds dimension without creating visual chaos.
Storage integration deserves special attention. Loft areas can easily become dumping grounds for items that don't fit elsewhere. Instead, build in shelves, cabinets, and drawers that serve specific functions. Think about how you actually live in your space and design accordingly. A home office loft might need extra shelving for books, while a bedroom loft could benefit from built-in wardrobes.
Real-World Examples and Case Studies
To truly understand how these concepts work in practice, let's look at some real-life examples:
One particularly inspiring case involved a couple who transformed their 1950s bungalow into a modern open-concept home. They retained the original structure but added a steel and glass loft above their kitchen. The result? A dramatic space that felt both contemporary and comfortable. The loft served as a private retreat during the day and a guest bedroom at night.

Another example showed how a family with young children used a loft area as a playroom that could be easily contained when needed. The parents found that the elevated space gave them the flexibility they needed to manage their busy household while still maintaining an open, welcoming atmosphere.
These stories show that successful implementation depends less on the specific design choices and more on thoughtful planning and understanding of how people actually live in their spaces.
Open floor plans with loft elements represent more than just a design trend—they're a response to how we want to live today. These layouts offer the freedom of spaciousness combined with the comfort of defined areas, creating homes that feel both modern and timeless. Whether you're considering a complete renovation or just want to understand the possibilities, the key is to think about your lifestyle first and the design second.
The beauty of these spaces lies in their adaptability. They grow with you, changing as your needs evolve. A kitchen that works for cooking might become a workspace for remote work. A living area that hosts family gatherings might transform into a quiet sanctuary for reading. These transitions happen naturally in open floor plans with loft features.
As you explore this concept, remember that good design isn't about following rules—it's about creating spaces that support your life. Every home is unique, and every family has different needs. The challenge is finding the right balance between form and function, between open spaces and defined areas, between the practical and the beautiful. Open floor plans with loft elements give you that opportunity, making them one of the most exciting developments in modern home design.