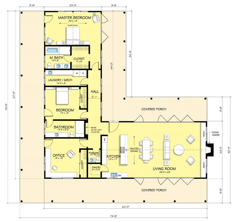
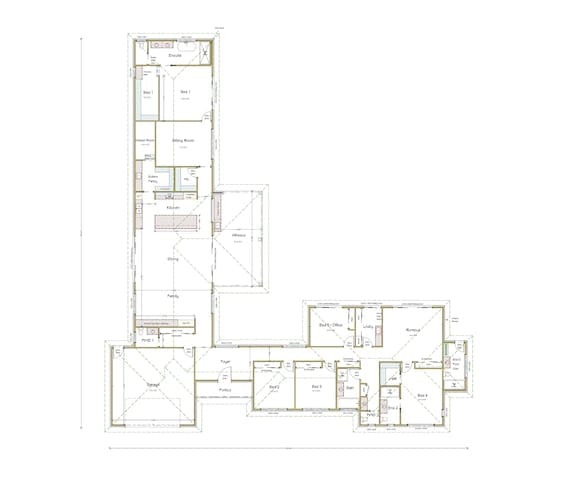
L-shaped ranch style house plans represent a fascinating evolution in residential architecture. These designs combine the classic appeal of traditional ranch homes with modern functional layouts. Think about how many families have dreamed of having a home that feels both familiar and fresh at the same time. That's exactly what L-shaped ranch plans offer.
When you think about ranch-style homes, images of sprawling single-story houses with long, low profiles probably come to mind. But what happens when you add an L-shape element to that classic design? You get something truly special – homes that feel spacious yet intimate, open yet defined. The L-shaped ranch isn't just a trendy architectural fad; it's a thoughtful approach to creating homes that work for modern lifestyles. Whether you're planning a new build or renovating an existing space, understanding these plans can transform your vision into reality.
What Makes an L-Shaped Ranch Unique
An L-shaped ranch plan takes the traditional ranch foundation and adds a distinctive angular twist. Picture a standard ranch home – usually a straight line of rooms stretching from front to back. Now imagine that same line bending at a right angle, creating a corner where the house changes direction. This creates several interesting possibilities.
The most obvious benefit is the expanded usable space. Instead of having all rooms aligned in one long line, the L-shape allows for creative room arrangements. The corner area often becomes a natural gathering spot, perhaps a family room or dining area that connects different parts of the home. It's like having two smaller spaces that work together as one larger living area.
This design also offers better traffic flow. People don't have to walk through every room to get from one end of the house to the other. The L-shape creates natural pathways that make daily routines more efficient. Plus, there's something visually appealing about the gentle curve of an L-shape compared to the rigid straight lines of traditional ranches.

Key Layout Features and Benefits
Let's dive deeper into what makes these plans so effective:
Design Considerations and Planning Tips
Before jumping into any design work, consider these important factors:
Space Optimization: The L-shape can maximize your square footage. Think about how each area will function. The corner might become a cozy reading nook or a breakfast bar area. The longer arms can house different functions – perhaps a kitchen and dining area on one side, and bedrooms and bathrooms on the other.
Foundation and Structural Elements: The corner creates additional structural requirements. You'll need to ensure proper support beams and foundations can handle the change in direction. This isn't just about looks; it's about safety and longevity.

Budget Planning: While L-shaped ranch plans offer great flexibility, they can sometimes be more expensive than simple ranch designs. The extra materials needed for the corner structure and the complexity of the layout can add costs. However, many homeowners find the investment worthwhile for the added functionality.
Local Building Codes: Check with local authorities before finalizing your plans. Some areas may have specific requirements for L-shaped structures that differ from standard ranch homes. These codes could affect everything from setbacks to roof designs.
Popular Room Arrangements in L-Shaped Ranch Plans
Here are some common ways designers arrange rooms in these homes:
Master Suite Configuration: The L-shape often allows for a master suite tucked away in the corner area. This provides privacy while still keeping the bedroom close to the main living areas. The bedroom might feature a walk-in closet and ensuite bathroom, all within the protected corner of the house.
Kitchen and Dining Integration: One arm of the L often houses the kitchen and dining area. The other arm can contain the living room or family room. This creates a natural separation between cooking and socializing spaces while maintaining easy communication between them.

Home Office or Study Space: The corner area can serve as a quiet workspace. The L-shape helps isolate this area from the rest of the house, creating a peaceful environment for focused work.
Multi-Generational Living: Some L-shaped ranch plans are designed to accommodate multi-generational families. The corner can house guest quarters or a separate living area for elderly relatives, while maintaining privacy for everyone involved.
Flexible Spaces: Many modern L-shaped designs include flexible areas that can be reconfigured based on changing needs. A spare room might serve as a playroom for young children or a hobby space for adults.
Advantages Over Traditional Ranch Designs
Compared to standard ranch homes, L-shaped versions offer several distinct advantages:
Enhanced Privacy: The corner configuration naturally separates different areas of the home. Bedrooms can be tucked away from the main living spaces, providing more privacy for family members.

Better Traffic Flow: Unlike traditional ranch homes where everyone must pass through the central hallway, the L-shape creates multiple paths through the house. This means less congestion during busy morning routines or family gatherings.
Increased Storage Options: The corner areas often provide excellent storage opportunities. Built-in shelves, cabinets, and closets can be integrated into the L-shape design, maximizing storage without sacrificing aesthetics.
Improved Energy Efficiency: The L-shape can actually improve energy efficiency by reducing the overall length of the house. Shorter walls mean less surface area for heat loss in winter and heat gain in summer.
Customization Flexibility: These plans offer more opportunities for personalization. You can choose how to utilize the corner space, whether as a formal dining area, casual family room, or anything else that fits your lifestyle.
Common Challenges and Solutions
While L-shaped ranch plans have many benefits, they also present some challenges:

Complex Construction: The corner requires careful engineering and construction. This can increase costs and extend building time. However, working with experienced contractors who specialize in these designs can mitigate many issues.
Floor Plan Confusion: Some people initially find the L-shape confusing to navigate. Clear signage and well-defined zones help solve this problem. The key is ensuring each area has a clear purpose and function.
Cost Considerations: The additional materials and labor required for the L-shape can push costs higher. But remember, this investment often pays off in increased home value and improved quality of life.
Future Renovation Challenges: If you ever want to make changes later, the L-shape might require more careful planning. However, many modern L-shaped designs are built with future modifications in mind.
Staircase Placement: If your home includes stairs, their placement becomes critical in L-shaped designs. They should ideally be positioned where they won't interfere with the natural flow of the home.
L-shaped ranch style house plans represent more than just a design choice – they're a practical solution for modern living. These homes offer the best of both worlds: the comfort and familiarity of traditional ranch design combined with the innovation and functionality of contemporary architecture. Whether you're building a new home or remodeling an existing space, the L-shape can transform your living experience. The key is understanding how to leverage its unique features to create a space that truly works for you and your family. As you explore these plans, remember that the most important element isn't the shape itself, but how well it meets your specific needs and lifestyle. With thoughtful planning and good design principles, an L-shaped ranch can become the perfect foundation for your dreams.