Ranch houses have been the backbone of American home design for decades. These straightforward, single-story homes offer practicality and timeless appeal that continues to attract homeowners seeking comfort and functionality. When it comes to four-bedroom ranch house plans, there's something special about how they balance spacious living with manageable maintenance.
If you've ever dreamed of having a home where everyone has their own space while still feeling connected to family life, then 4 bedroom ranch house plans might just be your perfect match. These homes are beloved for their simple, open layouts that make them ideal for growing families. Whether you're planning to build a new home or renovate an existing one, understanding the fundamentals of ranch house design can save you time and money while ensuring your dream home fits your lifestyle perfectly. The beauty of these plans lies not just in their structure, but in how they've evolved over time to meet modern needs.
Understanding the Ranch House Foundation

The ranch house style originated in the 1930s, designed to maximize natural light and outdoor connection. These homes typically feature a low-pitched roof, wide eaves, and large windows that blur the line between indoor and outdoor spaces. The concept was revolutionary at the time because it offered families a way to live closer to nature while maintaining comfortable indoor environments. What makes 4 bedroom ranch house plans so popular today is their adaptability. They work well whether you're building on a small lot or a sprawling acreage. The key characteristic is that all major living areas are on one floor, making them accessible for aging parents or young children. Think of it like a cozy blanket that wraps around your entire family - warm, protective, and easy to move around in.
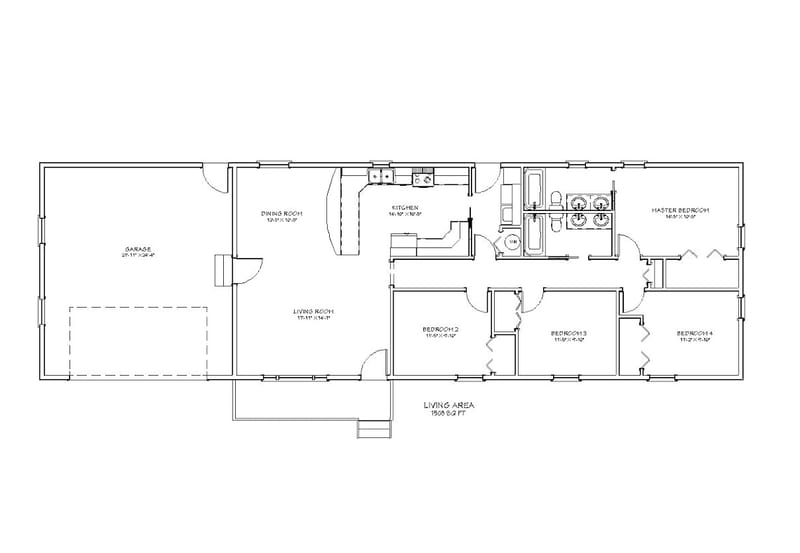
Layout Options and Room Arrangements
When designing a 4 bedroom ranch house plan, you'll find several common configurations that serve different lifestyles:

Each arrangement offers its own advantages. The traditional setup works well for families who want privacy for parents, while the open concept creates a more social atmosphere. Many modern ranch house plans incorporate smart storage solutions and multi-functional rooms that can serve different purposes throughout the day. For instance, a study or office can double as a guest room when needed. The key is finding the right balance between privacy and togetherness.
Key Features That Define Modern Ranch Homes
Contemporary 4 bedroom ranch house plans have evolved significantly from their original designs. Today's versions often include:

These enhancements keep ranch homes competitive with newer architectural styles while maintaining their classic charm. The focus has shifted toward creating homes that are both beautiful and practical. Consider how a well-designed kitchen can become the heart of your home - it's where memories are made, meals are prepared, and conversations flow naturally. Modern ranch house plans often prioritize this kind of seamless living experience.
Space Optimization Strategies
One of the biggest challenges in 4 bedroom ranch house design is maximizing space without sacrificing comfort. Here are some effective strategies:

These approaches help families make the most of their square footage while keeping their homes organized and clutter-free. Think about how you actually use your space - do you need a formal dining room, or would a casual breakfast area work better? The best ranch house plans anticipate these daily decisions and make them easier to manage.
Budget Considerations and Cost Factors
Building or remodeling a 4 bedroom ranch house involves several important financial considerations:

A typical 4 bedroom ranch house ranges from $150,000 to $400,000 depending on size, finishes, and location. It's worth noting that quality craftsmanship pays off in the long run. While some may be tempted to cut corners, investing in solid construction and energy-efficient features often provides better returns. Consider how much time you'll spend in your home and what matters most to you - maybe that kitchen island or master bath is worth the extra investment.
Popular Design Trends in Contemporary Ranch Houses
Current trends in 4 bedroom ranch house plans reflect changing lifestyle preferences:
These trends show that ranch houses aren't just nostalgic - they're evolving to meet modern demands. The challenge for designers is balancing tradition with innovation. You want your home to feel timeless while still offering contemporary conveniences. This means thinking about how technology integrates with your design rather than fighting against it.
Whether you're considering a new build, a renovation, or simply researching home design options, 4 bedroom ranch house plans offer a wonderful middle ground between traditional charm and modern functionality. These homes continue to resonate because they understand what families really need - space to grow, privacy when needed, and openness when together. The key is choosing a plan that reflects your personal lifestyle and future goals. Don't let the simplicity of the ranch style fool you though; great design happens in the details. From the way light flows through your windows to the thoughtful placement of your favorite furniture, every element contributes to your overall happiness in your home. The right 4 bedroom ranch house plan will feel like it was made just for you and your family.