Picture this: You're standing in a cozy kitchen, sunlight streaming through large windows, your family gathered around the table. This isn't just a dream - it's the reality many homeowners are creating with 2000 square foot ranch house plans. These homes offer the perfect balance of space, functionality, and comfort that makes them incredibly popular across America.
When it comes to home design, few layouts capture the hearts of families quite like the classic ranch house. With approximately 2000 square feet of living space, these homes strike an ideal middle ground between modest and spacious. They're not so large that they become unwieldy to maintain, nor so small that they feel cramped. Think of them as the Goldilocks zone of residential architecture. Whether you're planning your first home, expanding your family, or simply looking for a fresh start, 2000 square foot ranch house plans provide an excellent foundation for building your perfect living space. These designs have stood the test of time because they address fundamental human needs for comfort, practicality, and connection with family members.
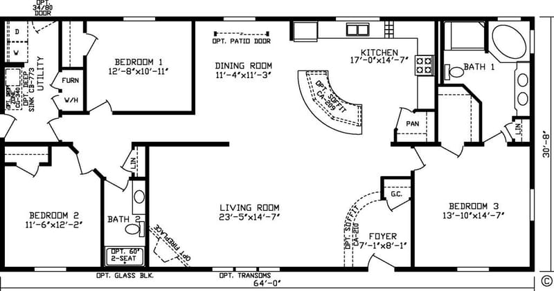
Understanding the Classic Ranch Layout

Ranch houses aren't just about their square footage - they're about how that space flows and functions. The traditional ranch style emphasizes horizontal lines, open spaces, and seamless transitions between rooms. In a 2000 square foot layout, you typically find a main living area that spans the width of the house. This creates a sense of openness that feels both spacious and intimate. The key to successful ranch design lies in how well the rooms connect. For example, a well-planned kitchen often opens directly into the dining area, which then flows into the living room. This creates what designers call 'flow' - the natural movement from one part of the house to another. Many modern ranch plans incorporate features like a breakfast nook, a formal dining room, or even a separate family room, depending on your lifestyle needs.
Essential Room Arrangements for 2000 Square Feet
With roughly 2000 square feet to work with, every inch matters. Here's how most experts recommend organizing your space:

Consider that a typical 2000 square foot ranch might have a kitchen measuring 18x15 feet, a great room spanning 20x20 feet, and three bedrooms averaging 12x12 feet each. These dimensions create a comfortable balance that works for most families.
Popular Design Variations and Features
Not all 2000 square foot ranch houses look alike, and that's what makes them so appealing. Some common variations include:

Modern ranch designs often feature:
Key Considerations for Family Life
The best ranch house plans consider how families actually live. When designing for 2000 square feet, think about:

A well-designed 2000 square foot ranch often includes:
Cost Considerations and Value Factors
Building or buying a 2000 square foot ranch house involves several financial factors. Construction costs can vary significantly based on location, materials, and finishes. On average, expect to pay $150-300 per square foot for new construction, though this can range from $100-400+ depending on your region and quality preferences. For existing homes, prices typically fall between $150,000-$400,000 for a 2000 square foot property.

Several elements affect overall cost:
The 2000 square foot size offers excellent value because it's large enough to accommodate growing families but small enough to manage efficiently. It's also attractive to buyers because it's neither too expensive nor too restrictive.
Maximizing Space Efficiency
One of the biggest advantages of 2000 square foot ranch house plans is their potential for smart space utilization. Here are some strategies for making every square foot count:
Some clever tricks include:
The key is thinking beyond the traditional room boundaries and considering how space can serve multiple functions throughout the day.
A 2000 square foot ranch house plan represents more than just a collection of rooms - it's a carefully balanced approach to creating a home that serves your family's needs today and adapts to your changing requirements tomorrow. Whether you're designing from scratch or renovating an existing space, these plans offer a proven foundation for comfortable living. The beauty of the ranch style lies in its simplicity and timeless appeal. It's a design that speaks to our desire for spaciousness without excess, openness without chaos, and functionality without sacrifice. With thoughtful planning and attention to how your family actually uses space, a 2000 square foot ranch can become the perfect place where memories are made, traditions are maintained, and dreams take root. The investment in good ranch house planning pays dividends in daily comfort and long-term satisfaction. After all, your home should feel like a haven, not just a structure to live in.