There's something deeply comforting about the classic ranch house design. It's the home that many of us imagine growing up in, with its simple, open layout and straightforward functionality. When it comes to 2 bedroom ranch houses, the floor plan becomes even more critical. These homes need to balance space efficiency with comfort for two adults and possibly children. Whether you're planning a new build, remodeling an existing home, or simply dreaming about your next move, understanding how to maximize every square foot of a 2 bedroom ranch house is essential.
Ranch houses have stood the test of time for good reason. They offer a sense of openness and ease that appeals to families and individuals alike. The 2 bedroom ranch house floor plan represents a sweet spot between spaciousness and manageability. These homes typically feature a single story with a long, low profile that makes them feel cozy and welcoming. But what makes a 2 bedroom ranch house truly special isn't just its exterior look—it's the thoughtful arrangement of spaces inside. The way rooms connect, how traffic flows through the house, and how efficiently the available space can serve daily life all come down to the floor plan. This guide will walk you through everything from basic layout considerations to creative solutions for maximizing your ranch house's potential.
Essential Features of 2 Bedroom Ranch House Floor Plans

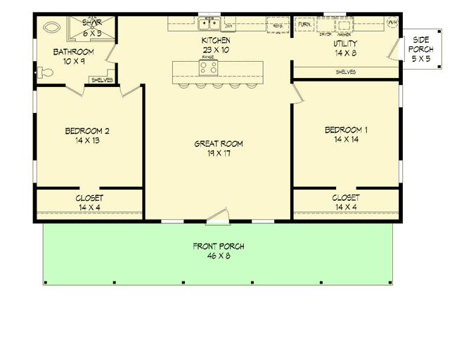
A successful 2 bedroom ranch house floor plan starts with understanding the core elements that make these homes work well. First and foremost is the concept of flow. Unlike multi-story homes where you might find yourself climbing stairs to reach different areas, ranch houses are designed for easy movement from room to room. The living area should naturally lead to the dining space, and both should be close to the kitchen. This open concept arrangement allows for conversation and activity to happen simultaneously in different parts of the home.
The bedrooms themselves need to be positioned thoughtfully. In most 2 bedroom ranch houses, one bedroom is often placed at the front of the house while the second sits toward the back. This arrangement offers privacy for both sleeping areas while keeping the main living spaces central. Many designs also include a small hallway or entryway that connects the bedrooms, allowing for a quiet passageway between the two sleeping areas.
Another important factor is the bathroom placement. While some ranch houses place the bathroom near the bedrooms, others integrate it into the main living area. The key is ensuring the bathroom is easily accessible and provides adequate privacy for all family members.

Popular Layout Variations and Their Advantages
Not all 2 bedroom ranch house floor plans are created equal. Different layouts serve different needs and preferences:
Maximizing Space Efficiency in Small Areas

One of the biggest challenges in 2 bedroom ranch house floor plans is making the most of limited square footage. Every inch matters when you're working within a smaller footprint. Here are some strategies that can help:
Lighting and Ventilation Considerations
Natural lighting and proper ventilation play crucial roles in making a 2 bedroom ranch house feel bright and airy. The layout should be designed to take advantage of available light sources and promote good air circulation throughout the home. Large windows and skylights can significantly impact how a space feels, especially in smaller homes where artificial lighting might otherwise dominate.

When planning the floor layout, consider how windows align with the main living areas. Having windows on multiple sides of the house ensures that light enters from various directions, reducing shadows and creating a more dynamic environment. Additionally, strategic placement of windows can provide cross-ventilation, helping to keep the interior cool during warmer months.
In terms of artificial lighting, a well-designed ranch house floor plan accounts for both ambient and task lighting. Ambient lighting provides general illumination for the entire space, while task lighting focuses on specific activities like reading or cooking. Layering these different types of lighting creates depth and versatility in how the home functions throughout the day.
Practical Tips for Customizing Your Design

Creating the perfect 2 bedroom ranch house floor plan requires balancing personal preferences with practical considerations. Here are some helpful tips:
Common Mistakes to Avoid in 2 Bedroom Ranch House Planning
Many homeowners make costly errors when designing or choosing a 2 bedroom ranch house floor plan. Being aware of these pitfalls can save you time, money, and frustration:
A well-thought-out 2 bedroom ranch house floor plan can transform a simple structure into a comfortable, functional home that meets your family's unique needs. The key lies in understanding how to balance aesthetics with practicality, ensuring that every room serves a purpose while contributing to the overall flow of the house. Whether you're designing a new home or renovating an existing one, remember that the floor plan is the foundation upon which your daily life will be built. Take time to carefully consider how you want to live in your space, and don't hesitate to seek professional advice when needed. With thoughtful planning and attention to detail, your 2 bedroom ranch house can become the perfect sanctuary for years to come. The beauty of these homes lies not just in their classic appeal, but in their ability to adapt and grow with you, making them an excellent choice for anyone looking for a solid, reliable place to call home.