Imagine walking into a home that feels spacious despite its modest size. Picture a place where every inch matters, where clever design transforms a 1200 sq ft footprint into a comfortable living sanctuary. This isn't just about fitting furniture in tight spaces – it's about creating a home that works perfectly for your lifestyle, no matter your family size or budget.
In a world where housing costs continue to climb and space becomes increasingly precious, the 1200 sq ft house plan has emerged as a smart solution for many homeowners. These compact designs offer something special – they're not just smaller homes, they're thoughtfully crafted living spaces that prioritize function over form. Whether you're a young couple starting out, a growing family looking to downsize, or someone who simply appreciates clean, efficient design, these layouts prove that less can indeed be more. What makes these plans truly remarkable is their ability to deliver comfort and practicality within a constrained footprint.
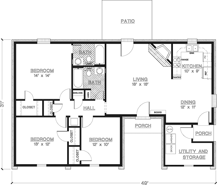
Why 1200 Square Feet Works
The magic of 1200 sq ft lies in its sweet spot between practicality and comfort. This size offers several advantages that make it appealing to many different types of buyers.
Think about it – a 1200 sq ft home provides enough room for two bedrooms, a kitchen, living area, and bathroom without feeling cramped. It's like having a well-designed backpack that holds everything you need without being overly bulky. Many people find that this size strikes the perfect balance between functionality and cost-effectiveness.
Key Layout Considerations

When designing a 1200 sq ft house with two bedrooms, several factors become crucial for success. The first rule is to think vertically as well as horizontally. Creative solutions can dramatically increase usable space.
A well-planned layout might feature a master bedroom with an ensuite bathroom, a second bedroom that could also serve as a guest room, and a shared living space that flows seamlessly into the kitchen. The challenge is ensuring each area feels distinct while maintaining the overall flow of the home.
Smart Storage Solutions
Storage in a 1200 sq ft home requires careful planning and innovative thinking. You'll want to utilize every possible surface and space. Here are some strategies that really work:
Many successful 1200 sq ft plans incorporate walk-in closets in the master bedroom, or even a linen closet that doubles as a pantry. The key is to make storage feel integrated rather than cluttered. Think of it like organizing a small backpack – everything has its designated place, and nothing feels overwhelming.
Lighting and Visual Tricks

Lighting plays a pivotal role in how spacious a 1200 sq ft home feels. Poor lighting can make even the largest space feel claustrophobic. Strategic use of light can transform a compact home.
Consider a kitchen island with under-cabinet lighting, or a living room with layered lighting that can shift from bright working light to cozy ambient glow. These details matter more in small spaces because there's less room for visual distractions. The right lighting can make a 1200 sq ft home feel like a much larger space.
Kitchen Design Essentials
The kitchen in a 1200 sq ft home deserves special attention since it's often the heart of the house. A well-designed kitchen can make or break the overall feel of the space.
A typical 1200 sq ft layout might feature a galley-style kitchen with a breakfast bar, or a U-shaped configuration that maximizes storage while keeping the space open. The kitchen shouldn't feel like a maze, but rather a welcoming space where meals are prepared efficiently. Many homeowners find that a small kitchen can actually be more enjoyable than a large one because it encourages more intimate interactions.
Maximizing Bedroom Functionality

Two bedrooms in a 1200 sq ft home require careful consideration to ensure both spaces feel substantial and functional. The master bedroom often gets priority, but the second bedroom should still provide comfort and privacy.
The second bedroom might feature a small desk area for remote work, or a reading nook that takes advantage of a window seat. Some designs incorporate a study or home office in the second bedroom, especially for those who work from home. The goal is to make each bedroom feel complete and purposeful, not just a place to sleep.
Popular Design Styles
1200 sq ft homes accommodate various design aesthetics, though certain styles tend to work particularly well in smaller spaces.
Each style can be adapted to fit the constraints of 1200 sq ft. For instance, a modern minimalist approach might emphasize open spaces and neutral colors, while a farmhouse design might incorporate built-in storage and warm wood tones. The key is choosing a style that complements the compact nature of the home rather than fighting against it.
Budget-Friendly Tips

Building or renovating a 1200 sq ft home can be surprisingly affordable when approached strategically. Smart choices can save money without sacrificing quality.
Many homeowners discover that focusing on good basic construction and thoughtful finishes yields better results than expensive upgrades. A well-insulated home with quality flooring and good lighting can feel luxurious even without high-end fixtures. The savings from a smaller footprint often offset the cost of premium materials in other areas.
Common Mistakes to Avoid
When designing or purchasing a 1200 sq ft home, several pitfalls can turn a promising space into a frustrating experience.
One common error is trying to fit too many features into a small space. A home with three bedrooms instead of two might seem appealing initially, but could leave each room feeling inadequate. Another mistake is choosing dark colors or heavy furniture that make spaces feel smaller. Remember, small spaces benefit from light, simple designs that enhance rather than compete with the available area.
Future-Proofing Your Design

Thinking ahead about how your 1200 sq ft home might change over time is wise. These compact spaces should be flexible enough to adapt to changing needs.
A 1200 sq ft home designed with future changes in mind might include a room that can easily convert from a home office to a guest room. The goal is to create a foundation that can support life's changes without requiring major renovations. This might mean installing electrical outlets in strategic locations, or choosing flooring that can accommodate different furniture arrangements.
Finding the Right Plan
Not all 1200 sq ft house plans are created equal. Finding one that fits your lifestyle and preferences requires research and consideration.
Many people find success by working with architects who understand small-space design principles. Others prefer pre-made plans that have been tested by real families. The important thing is to choose a plan that reflects your priorities – whether that's maximizing outdoor space, ensuring privacy, or creating a home office. Take time to review multiple options before settling on one.
The 1200 sq ft house plan represents more than just a size constraint – it's a design philosophy that emphasizes intentionality and efficiency. When done well, these homes can be incredibly satisfying places to live. They teach us that happiness isn't measured in square footage, but in how well our spaces serve our needs. Whether you're drawn to the simplicity of a minimalist approach or the warmth of a traditional design, a 1200 sq ft home can offer the perfect canvas for your lifestyle. The key is understanding that in small spaces, every decision matters. With thoughtful planning and creative solutions, these compact homes can provide all the comfort and functionality you desire, proving that sometimes the smallest spaces can hold the biggest hearts.