In a world where space is precious and costs soar, the tiny house movement offers a refreshing alternative. When you're working with a tight 600 square feet, every corner matters. These compact homes aren't just about saving money—they're about simplifying life and creating intentional spaces that work for you.
Imagine waking up each morning in a space that feels both spacious and intimate. That's the magic of a well-designed 600 square foot tiny house. It's not just about fitting everything into a small box—it's about crafting a home that supports your lifestyle while respecting your budget and environmental footprint. These homes challenge us to think differently about what we truly need versus what we simply want. What if your living space could be both minimalist and full of personality? That's exactly what happens when you master the art of tiny house floor planning.
Understanding the Space Constraint
Working with 600 square feet means you're essentially creating a microcosm of your ideal lifestyle. This isn't just about cramming furniture into corners—it's about understanding how to make every inch serve multiple purposes. Think of it like cooking with limited ingredients: you have to get creative and make the most of what you've got.
The average 600 square foot tiny house typically features:
This size forces you to consider how you actually live rather than how you imagine you should live. It's about prioritizing what matters most to you. For instance, if you're a frequent entertainer, you might prioritize a larger living area over extra storage space.
Core Design Principles

Successful tiny house floor plans rely on several fundamental principles that transform cramped spaces into comfortable homes. The first rule is vertical thinking. Instead of fighting against height limitations, you embrace them. Built-in shelving reaching toward the ceiling, lofted sleeping areas, and multi-level storage solutions can dramatically increase usable space.
Another crucial element is the concept of open floor plans. Rather than dividing your space into rigid rooms, you create zones that flow together. This approach makes the space feel larger and allows light to move freely throughout the home. Consider a kitchen island that doubles as a dining table, or a Murphy bed that folds up during the day to reveal a workspace underneath.
The key to good design is flexibility. You want to be able to rearrange things as your needs change. A movable screen can separate the bedroom from the living area when privacy is needed. A fold-down table can become a workspace or dining area depending on the time of day. These solutions require thoughtful planning but offer incredible returns in terms of functionality.
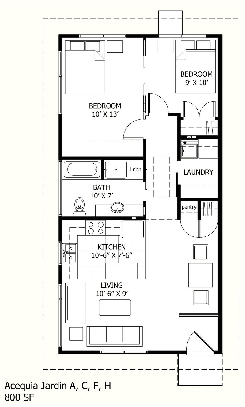
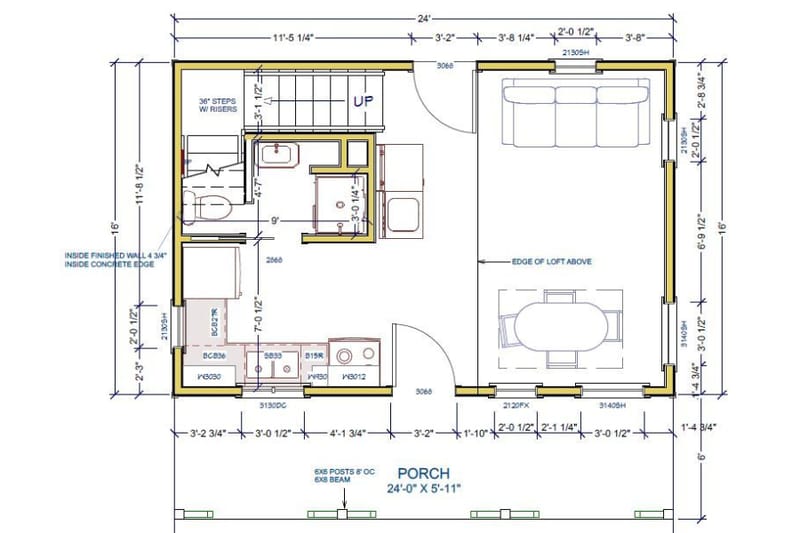
Essential Room Layouts
When designing a 600 square foot space, you need to make tough decisions about how to organize your areas. Here are some proven approaches:
The Studio Layout: This is probably the most common approach for small homes. Everything flows together in one large space with defined areas. The kitchen, dining, and living areas might all be part of the same room, with furniture or screens helping to separate different functions.
The Multi-Level Approach: Using loft spaces for sleeping or storage creates a natural separation between private and public areas. This works particularly well if you're using the upper space for sleeping and keeping the main level for activities.

The Zoned Design: Even in a small space, you can create distinct areas for different activities. A reading nook might be tucked under a window, while a workspace could be positioned near a door for easy access. The trick is making sure these zones don't feel cramped.
Each layout requires careful consideration of traffic flow. You don't want to walk through someone else's sleeping area to get to the bathroom. The path from the entrance to the kitchen should be clear, and there should be enough space to move around comfortably.
Storage Solutions That Work
Storage in tiny homes is an art form. You can't just throw everything in a closet and call it a day. You need to think strategically about where items go and how often you use them. Here are some tried-and-true methods:
Consider the types of items you'll need to store. Are you storing clothes, books, kitchen supplies, or tools? Different items require different storage solutions. A kitchen might need specialized cabinet layouts for pots and pans, while a bedroom might focus more on clothing storage.
The key is not just having storage but organizing it effectively. Labeling everything helps you find what you need quickly. Some people prefer to keep similar items grouped together, while others like to organize by frequency of use. Find what works for your lifestyle.
Lighting and Visual Tricks

Lighting plays a crucial role in making a tiny house feel spacious. Natural light is always preferable, but when that's not available, smart artificial lighting becomes essential. You want to create layers of light that serve different purposes throughout the day.
Task lighting is important for activities like reading or cooking. This might include overhead lights, desk lamps, or even a simple pendant light above the kitchen counter.
Ambient lighting creates the overall atmosphere. This might be dimmable fixtures that let you adjust the mood for different times of day.
Accent lighting highlights special features or creates visual interest. A string of lights behind a bookshelf or along a window ledge can add warmth and dimension to a small space.
Beyond lighting, mirrors can dramatically change how a room looks. A large mirror can make a small space feel twice its size. Even smaller mirrors placed strategically can reflect light and create the illusion of depth. Windows that let in natural light should be kept clean and unobstructed whenever possible.
Color choices also matter. Light, neutral colors tend to make spaces feel bigger, while darker tones can make small rooms feel cozy but cramped. Many tiny house owners choose a palette of whites, creams, and soft grays to maximize the feeling of openness.
Practical Tips for Real Living

Designing a floor plan is one thing, but making it work in real life is another challenge entirely. Here are some lessons learned from actual tiny house residents:
Many people underestimate how much they'll miss certain conveniences. A small bathroom might seem fine until you realize you need to take showers at the same time as someone else. A kitchen with only one sink might become problematic if everyone wants to wash dishes simultaneously. Planning ahead for these situations can save you from future frustrations.
Don't forget about maintenance. In a tiny house, everything is visible. You want to choose materials and finishes that will age gracefully and stay looking good over time. Consider durable flooring that can handle foot traffic and resist stains. Choose appliances that are both functional and visually appealing.
Common Mistakes to Avoid
Even experienced designers sometimes fall into traps when creating 600 square foot floor plans. Here are some pitfalls to watch for:
Some people try to make their tiny house look like a traditional home, complete with unnecessary details. But that defeats the purpose of tiny living. Embrace the simplicity. Let the space breathe and feel open.
Another common error is failing to plan for the unexpected. What happens if you suddenly need to host a dinner party? Or if you have a guest who needs a private space? Having flexible solutions built into your design makes all the difference.

Future Trends and Innovations
The tiny house movement continues to evolve, bringing new innovations that make small spaces even more livable. Smart home technology is becoming increasingly popular in tiny homes. Automated lighting systems that adjust based on time of day, smart thermostats that learn your preferences, and even smart locks that can be controlled remotely are becoming standard features.
New materials are also changing the game. Lightweight, durable materials mean you can build more complex structures without adding weight. Flexible design elements allow for easier reconfiguration as needs change.
Modular construction is gaining popularity because it allows for easier transportation and potential expansion. Some builders are creating tiny house modules that can be connected to create larger living spaces when needed.
Sustainability remains a major focus. Solar panels, rainwater collection systems, and composting toilets are becoming more common. These features not only reduce environmental impact but also lower ongoing costs for residents.
The trend toward multifunctional spaces shows no signs of slowing down. Furniture that transforms from day to night, walls that can be moved or reconfigured, and storage solutions that adapt to changing needs are all part of the future of tiny living.
A 600 square foot tiny house isn't just about economizing—it's about creating a space that reflects who you are and how you want to live. The key is to start with your lifestyle and work backward from there. What activities are most important to you? How do you like to spend your time? What makes you feel relaxed and happy?
Don't let the size intimidate you. Instead, embrace it as a constraint that leads to creativity. Every challenge in designing a small space becomes an opportunity to discover new solutions. The result is often a home that's more intentional and purposeful than anything you might have built in a larger space.
Remember that the best floor plans are those that grow with you. As your needs change, you should be able to adapt your space accordingly. Whether you're starting a family, beginning a new career, or simply wanting to simplify your life, a thoughtfully designed 600 square foot home can support you through any journey. The investment isn't just financial—it's emotional and psychological too. You're creating a sanctuary that fits perfectly into your life, rather than forcing your life into a space that was never meant for you.