Imagine walking into your new home and feeling instantly at ease. That's what a well-designed 3 bedroom ranch floor plan can do for you. These layouts have been beloved by families for decades because they offer the perfect balance of space, functionality, and comfort. Whether you're planning a new build or looking to renovate, understanding how these floor plans work can save you time, money, and countless headaches.
Ranch homes have always held a special place in American housing culture. They're more than just a style of architecture - they represent a way of life that emphasizes openness, simplicity, and family connection. When it comes to three-bedroom ranch floor plans, there's something incredibly appealing about their straightforward approach to living spaces. No stairs to navigate, no complicated layouts to memorize, just clean lines and practical rooms that work together seamlessly. These homes have evolved over the decades, adapting to modern needs while maintaining their classic charm. From the early pioneers of the ranch style to today's contemporary interpretations, the 3 bedroom ranch continues to be a favorite among homeowners seeking both comfort and efficiency.

What Makes a Ranch Plan Special?
The ranch house style emerged in the mid-20th century as a response to changing lifestyle needs. Unlike traditional two-story homes, ranches spread horizontally, creating one-level living spaces that feel spacious and open. This design philosophy prioritizes flow and accessibility, making them ideal for families with young children or aging parents. The typical 3 bedroom ranch features a long, low profile that hugs the landscape rather than towering above it. This horizontal orientation creates large windows and expansive views, bringing natural light deep into the interior spaces. The single-story layout means every room is easily accessible, which is especially important for those with mobility concerns or families with multiple generations living together. Many ranch homes also incorporate outdoor living spaces directly connected to the main living areas, creating seamless transitions between indoor and outdoor environments.

Popular 3 Bedroom Ranch Layouts
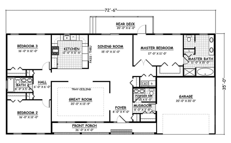
There are several common arrangements that define the 3 bedroom ranch floor plan. The most popular configuration places the master suite at one end of the house, often with a private bathroom and walk-in closet. This setup provides privacy for the primary bedroom while keeping it close to other family areas. Another common arrangement positions all bedrooms along one side of the home, with the living areas and kitchen on the opposite side. This creates distinct zones that separate quiet sleeping spaces from active family areas. Some designs feature a central hallway with bedrooms on either side, offering excellent traffic flow and easy access to all rooms. You might also see variations where the third bedroom doubles as a study or guest room, providing flexibility for different family situations. The key is finding a layout that suits your lifestyle and the specific needs of your household members.

Key Features to Consider
When examining 3 bedroom ranch floor plans, certain elements stand out as particularly important. First, consider how much natural light each room receives. Large windows not only brighten spaces but also reduce energy costs and create a sense of openness. The kitchen should flow smoothly into dining and living areas, allowing families to interact while preparing meals. Storage space is crucial in any home, and ranch designs often incorporate built-in cabinets, pantry areas, and utility rooms. Many modern ranch plans also include features like mudrooms, laundry rooms, and covered porches that enhance daily living. Consider how the layout supports your family's routines - do you need a dedicated workspace? Do you entertain frequently? Does everyone need easy access to the outdoors? These practical questions will help shape your decision when choosing a floor plan.

Space Planning Essentials
Effective space planning in ranch homes requires careful consideration of how rooms relate to one another. The living room typically serves as the heart of the home, so positioning it to connect naturally with the kitchen and dining area is essential. Bedrooms need adequate privacy and space for furniture placement, while bathrooms should be conveniently located near sleeping areas. Hallways should be wide enough for comfortable movement, especially if you have young children or elderly family members. Consider the flow of traffic throughout the day - morning routines, evening activities, and weekend gatherings all influence how you want to organize your space. A good floor plan anticipates these patterns and accommodates them gracefully. Sometimes a simple repositioning of a door or a small change in wall placement can dramatically improve the usability of a room.

Modern Twists on Classic Designs
Today's 3 bedroom ranch floor plans often blend traditional elements with contemporary amenities. Open concept living areas have become increasingly popular, replacing older designs that separated dining and living spaces. Smart home technology integration allows for automated lighting, climate control, and security systems that work seamlessly with the home's layout. Energy-efficient features like solar panels, high-performance insulation, and low-E windows help reduce operating costs. Many new ranch designs incorporate sustainable materials and eco-friendly construction methods that appeal to environmentally conscious buyers. Indoor-outdoor living spaces have gained significant popularity, featuring sliding doors, decks, and patios that extend the usable living area. These modern additions don't compromise the classic ranch aesthetic but rather enhance it with updated functionality.
Cost Considerations and Value
Understanding the financial aspects of 3 bedroom ranch floor plans helps you make informed decisions about your investment. Generally speaking, ranch homes tend to be less expensive to build than multi-story alternatives, primarily because they require fewer materials and less complex construction. However, the cost varies significantly based on size, location, and finishes. Basic ranch floor plans can range from $150,000 to $400,000 depending on the region and quality of materials used. Custom features like high-end appliances, specialty flooring, or unique architectural elements can increase costs substantially. The resale value of ranch homes often depends on their location and condition rather than their architectural style. Homes with well-designed floor plans that meet current needs typically hold their value better than those with outdated layouts. Remember that the right floor plan can actually increase your home's marketability and long-term value.
Choosing the right 3 bedroom ranch floor plan is more than just selecting a layout - it's about creating a foundation for your family's future. These homes offer timeless appeal because they prioritize what matters most: comfort, functionality, and ease of living. Whether you prefer the classic symmetry of traditional ranch designs or the innovative features of modern interpretations, the key is finding a plan that fits your lifestyle perfectly. Take time to consider how you'll actually use each space, think about your family's evolving needs, and remember that the best floor plan is one that makes you feel relaxed and happy in your own home. With careful planning and thoughtful design choices, your 3 bedroom ranch can become the perfect sanctuary for years to come.