Imagine walking into a home that feels spacious despite its modest size. Picture three bedrooms, a kitchen, living area, and bathroom - all within just 1000 square feet. It's not just possible - it's becoming increasingly popular among families looking for smart, functional housing solutions.
In today's world, where space is often at a premium and costs continue to rise, many people are discovering the beauty of smaller homes. A 3 bedroom 1000 sq ft house plan isn't just about saving money on construction - it's about creating a lifestyle that maximizes every inch. These homes prove that less truly can be more when it comes to design and functionality.
Why Choose This Size?
There are several compelling reasons why a 3 bedroom 1000 sq ft home makes sense for many families. First, the cost savings are significant. Construction costs per square foot typically decrease as the total square footage gets smaller. Second, maintenance becomes much simpler. You have less surface area to clean, heat, and cool. Third, energy bills drop substantially. Heating and cooling a smaller space requires far fewer resources than a larger one.

Consider families with young children or aging parents who need easy access to all areas. Or perhaps you're a first-time homebuyer trying to stretch your budget further. These homes work wonderfully for couples, small families, or even empty nesters looking for low-maintenance living.
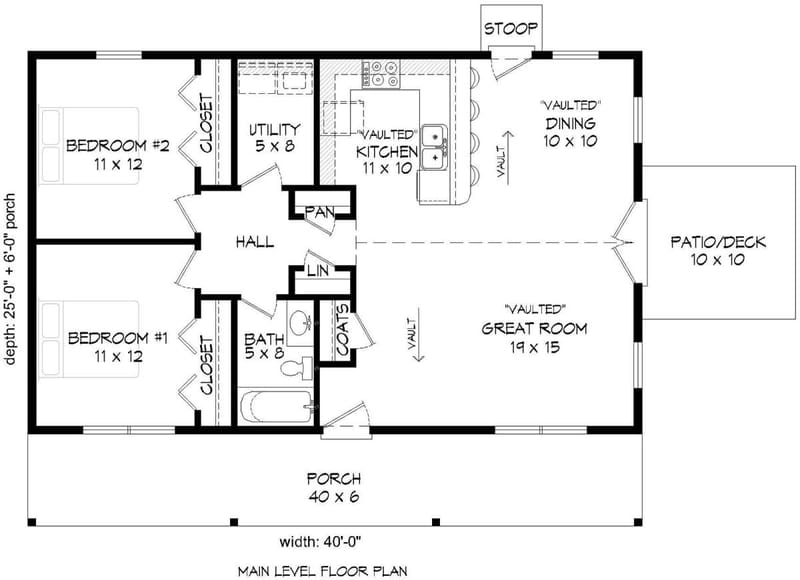
Key Layout Considerations
When planning a 3 bedroom 1000 sq ft house, layout becomes everything. The most effective designs often feature:
The average 3 bedroom home under 1000 sq ft typically includes a main living area, kitchen, dining space, two bathrooms, and three bedrooms. Some clever designs incorporate a study or guest room that can double as a home office or extra sleeping space.

Popular Design Styles
Several design approaches work beautifully for small 3 bedroom homes:
Modern Minimalist: Clean lines, neutral colors, and functional furniture create an airy feeling even in tight quarters. This style emphasizes quality over quantity.
Rustic Farmhouse: Warm wood tones and vintage elements bring character while maintaining practicality. Think exposed beams and shiplap walls.

Contemporary: Sleek finishes, large windows, and open spaces make the most of limited square footage. This approach uses light and reflection to enhance the sense of space.
Traditional: Classic elements like crown molding and built-in cabinetry offer timeless appeal. These homes often feature cozy corners and intimate gathering spaces.
Each style can be adapted to fit the 1000 sq ft constraint while still feeling comfortable and lived-in.
Smart Storage Solutions

Storage is perhaps the biggest challenge in small home design. Here are some strategies that make a huge difference:
Many successful 1000 sq ft homes incorporate at least one dedicated storage room or closet that can handle seasonal items and overflow clothing. The key is planning ahead for what you'll actually need to store.
Practical Room Arrangements
How you arrange the rooms matters more than you might think. Consider these common configurations:

Front-to-back layout: Bedrooms at the back, living areas in front. This creates a natural flow and keeps private spaces away from the entryway.
Left-right arrangement: Living areas on one side, bedrooms on the other. This works well for homes with a central hallway.
Open concept with defined zones: The kitchen, dining, and living areas flow together but remain distinct through furniture placement or slight changes in flooring.
Most effective 3 bedroom 1000 sq ft homes have:
Cost-Effective Design Tips
Building or renovating a 3 bedroom 1000 sq ft home doesn't have to break the bank. Here are ways to save money without sacrificing quality:
Remember that a well-designed small home can actually increase in value over time. Smart choices in materials and layout can make a 1000 sq ft house feel luxurious rather than cramped.
A 3 bedroom 1000 sq ft house plan represents more than just a size constraint - it's a design philosophy that prioritizes function over form. When thoughtfully planned, these homes can provide everything families need while remaining affordable to build and maintain. The key lies in understanding how to maximize space, choose wisely between features, and embrace the benefits of intentional living. Whether you're considering a new build or remodeling an existing structure, remember that the best small homes are those designed with both practicality and comfort in mind. With careful planning and creative thinking, a 1000 sq ft home can truly be the perfect place to call home.