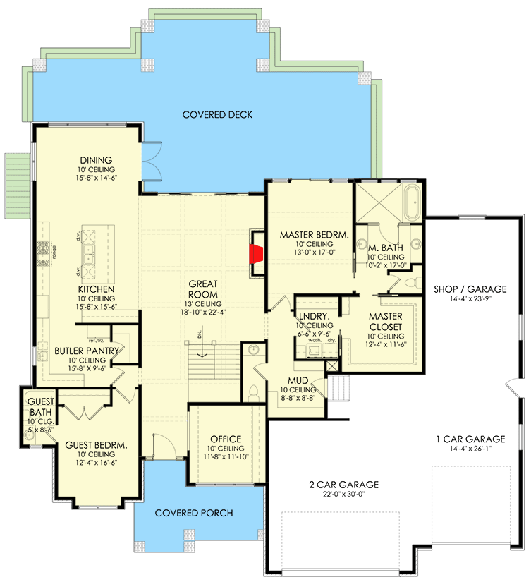
When you're planning a new home, size matters. A 2600 square foot house plan strikes the perfect balance between spacious comfort and manageable maintenance. It's large enough to accommodate family needs while remaining practical and cost-effective. Whether you're building from scratch or renovating, understanding how to maximize every square foot is crucial. This comprehensive guide will walk you through everything from basic layout considerations to smart design choices that make your 2600 square foot home truly special.
A 2600 square foot house plan isn't just about numbers on paper. It represents the space where memories are made, where families gather, and where daily life unfolds. This size offers incredible flexibility – enough room for a master suite, multiple bedrooms, a spacious kitchen, and perhaps even a home office or guest quarters. But choosing the right plan means thinking beyond square footage. What kind of lifestyle do you want? How do you entertain? What makes your family tick? These questions shape the perfect 2600 square foot layout.

Understanding the Right Layout for 2600 Square Feet
The magic of 2600 square feet lies in its versatility. Think of it as a canvas waiting for your personal touch. Most effective designs utilize open floor plans that flow naturally from living spaces to dining areas and kitchens. Consider how much space you actually need versus how much you think you want. Many homeowners find they overestimate their space needs by 20-30%. The key is intentional design. For example, a great room concept can combine living, dining, and kitchen areas into one seamless zone, making 2600 square feet feel more spacious than a traditional split-level approach. Think about traffic flow too – how people move through your home should feel effortless rather than cramped. A well-planned 2600 square foot house might feature a central hallway that connects all main areas, creating a logical path through your home.

Essential Room Distribution Strategies
How you distribute rooms across 2600 square feet makes all the difference. The standard approach often includes three to four bedrooms, a large kitchen, and a generous living area. But there's no one-size-fits-all solution. Some families prefer a master suite with separate sitting area, while others want a dedicated study or hobby room. Here's what typically works well:

The beauty of 2600 square feet is that you can customize these proportions. A family with young children might prioritize larger play areas, while empty nesters might focus more on entertainment spaces. Consider the lifestyle you want to support with your space allocation. Do you host regular dinner parties? Then your dining area needs to accommodate guests comfortably. Are you a home cook? Your kitchen should reflect that passion with adequate counter space and storage.
Kitchen Design Considerations

The kitchen is often called the heart of the home, and with 2600 square feet, you have plenty of room to make it truly special. Modern kitchen design emphasizes functionality combined with style. Look for island configurations that serve dual purposes – cooking space and casual dining. A 2600 square foot house allows for larger islands with seating for 4-6 people. You'll want to consider the work triangle principle: the relationship between refrigerator, sink, and stove should be efficient. In a 2600 square foot home, you can afford to have multiple zones – a formal dining area, a breakfast nook, and perhaps a casual family kitchen area. This flexibility helps you adapt to different social situations. Storage is another critical factor. With 2600 square feet, you can incorporate pantry spaces, mudrooms, and even a wine cellar if desired. The key is planning ahead for your specific cooking habits and family needs.
Bedroom and Bathroom Planning

Sleeping areas deserve special attention in any 2600 square foot plan. A master suite typically requires 400-500 square feet minimum to feel luxurious. This space should include a walk-in closet and a private bathroom with features like a soaking tub and separate shower. The other bedrooms can vary in size based on family needs. Children's rooms might be smaller but still functional, while guest rooms should offer comfortable sleeping arrangements. Bathrooms become particularly important when considering 2600 square feet. You could easily include two full bathrooms, plus a half bath for guests. Some designs incorporate a powder room near the entrance, and another in the main living area. Think about privacy too – bedrooms should be positioned away from high-traffic areas. A 2600 square foot house gives you the luxury of thoughtful placement for each bedroom and bathroom, allowing for optimal privacy and convenience.
Outdoor Space Integration
One of the biggest advantages of 2600 square feet is the ability to seamlessly connect indoor and outdoor living spaces. This size allows for large decks, patios, or even covered porches that extend your living area outdoors. Many 2600 square foot plans incorporate covered outdoor areas that can function as extended living spaces during pleasant weather. Consider how you want to use outdoor space – entertaining, gardening, or quiet relaxation. A 2600 square foot home might include a covered patio with dining area, a deck for lounging, and perhaps a small garden area. The key is ensuring these spaces flow naturally from your interior. Some homes feature large sliding doors that open completely to the outside, blurring the lines between indoor and outdoor. This integration enhances the feeling of spaciousness and creates versatile living options year-round.
Cost-Effective Design Tips
Building or remodeling a 2600 square foot home involves significant investment, but smart decisions can keep costs manageable. First, consider the overall layout efficiency – fewer hallways mean more usable space and lower construction costs. Opt for standard ceiling heights (8 feet) rather than vaulted ceilings unless absolutely necessary. Standard door sizes and window placements reduce custom fabrication costs. Energy-efficient features like proper insulation, double-pane windows, and strategic placement of windows for natural light can save money on heating and cooling bills. Think about materials carefully – quality hardwood floors, for instance, last longer and add value compared to cheaper alternatives. When budgeting, remember that 2600 square feet provides room for both luxury features and practical savings. You might choose to invest heavily in your kitchen and bathrooms while using more economical finishes elsewhere. The goal is maximizing value while staying within your financial comfort zone.
A 2600 square foot house plan offers tremendous opportunities to create a home that truly fits your lifestyle. Whether you're starting fresh or updating an existing space, the key is thoughtful planning and intentional design choices. Remember that square footage is just the beginning – it's how you use that space that makes the difference. Every bedroom, kitchen, and living area should serve a purpose in your daily routine. Take time to visualize how you want to live in your 2600 square foot home. Will you entertain frequently? Do you need quiet spaces for work or relaxation? These answers guide the best layout decisions. The most successful 2600 square foot houses are those designed around the actual needs and preferences of their inhabitants. With careful consideration of layout, room distribution, and practical features, your 2600 square foot dream home can be both beautiful and perfectly functional. The journey from blueprint to reality is exciting, and with the right approach, you'll end up with a space that brings joy every single day.